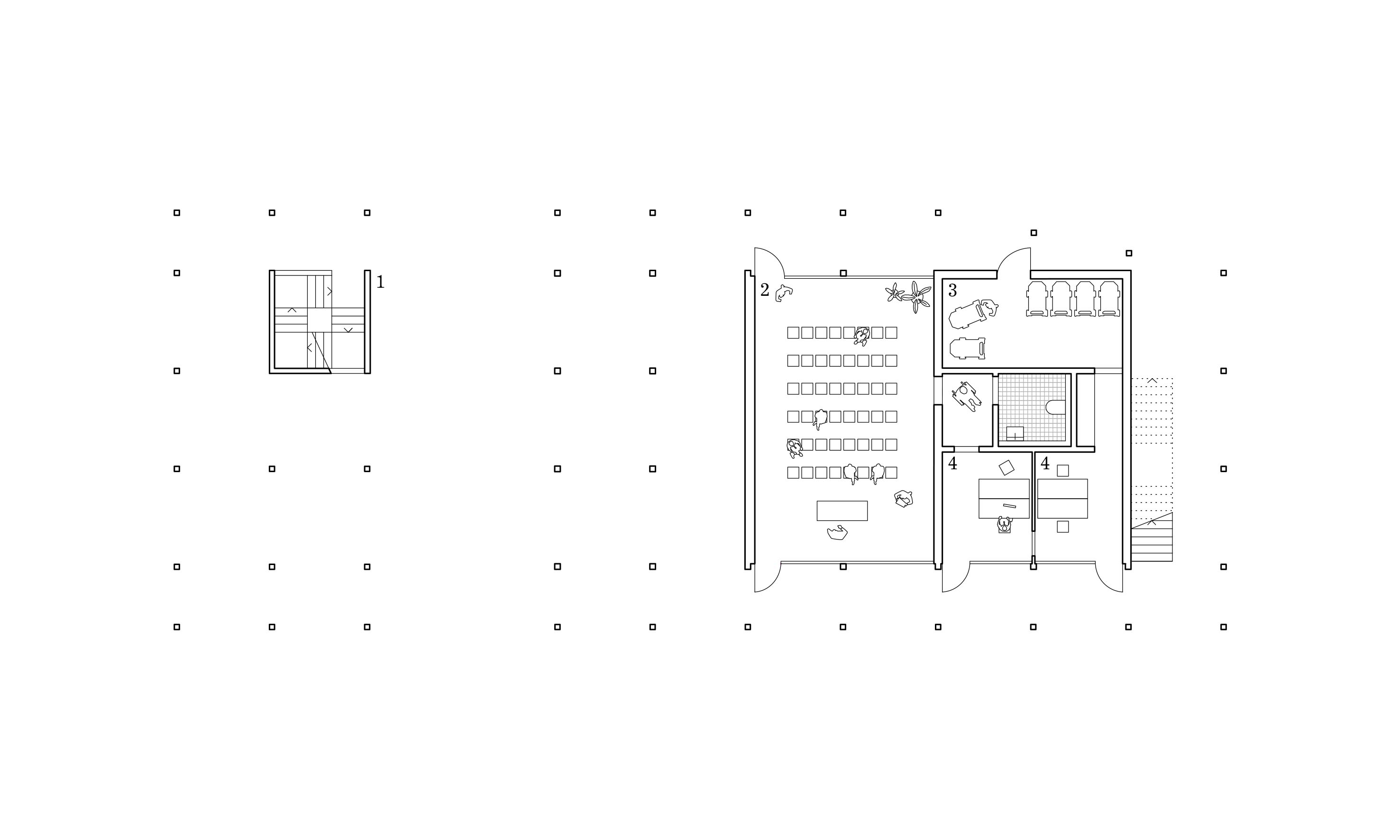
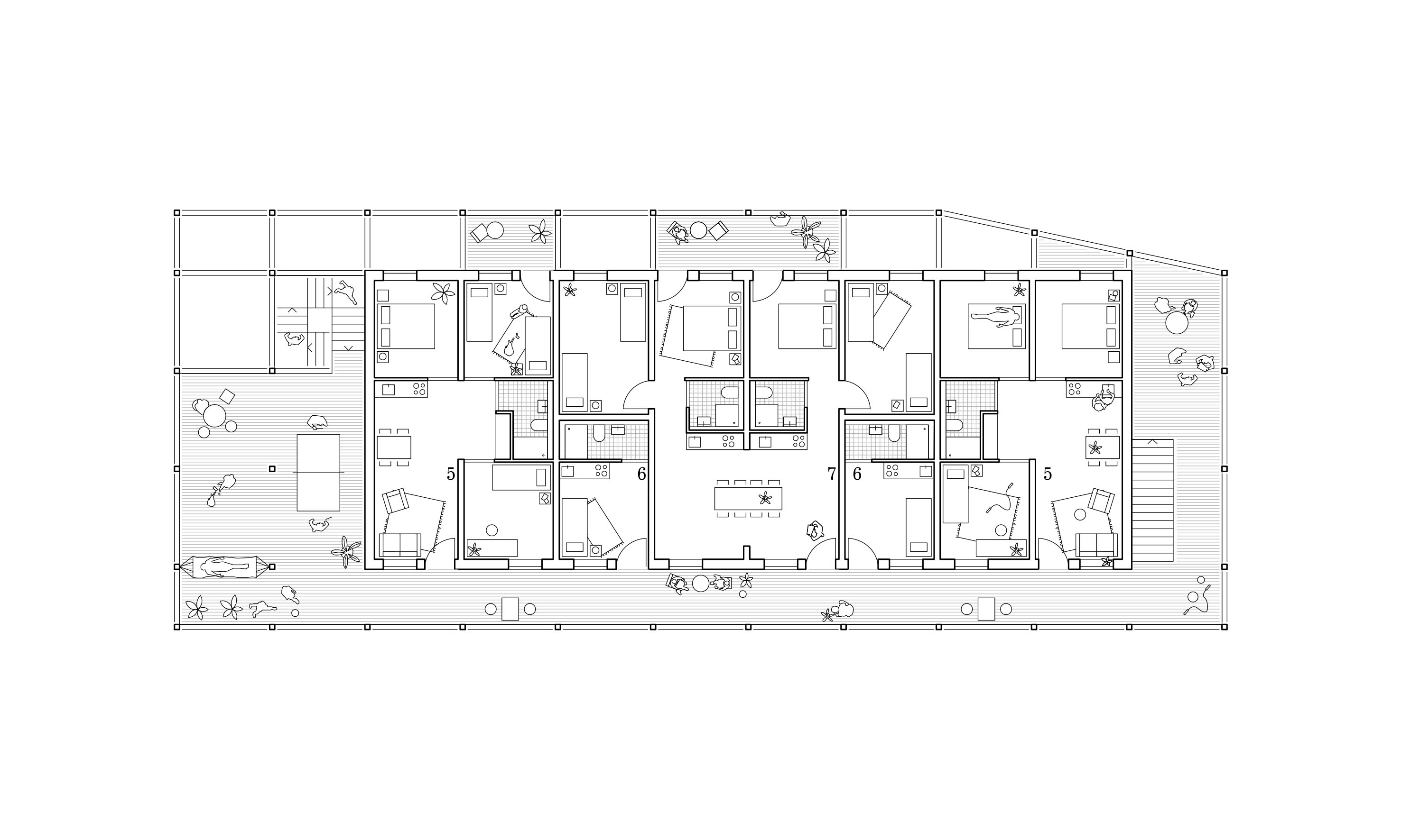
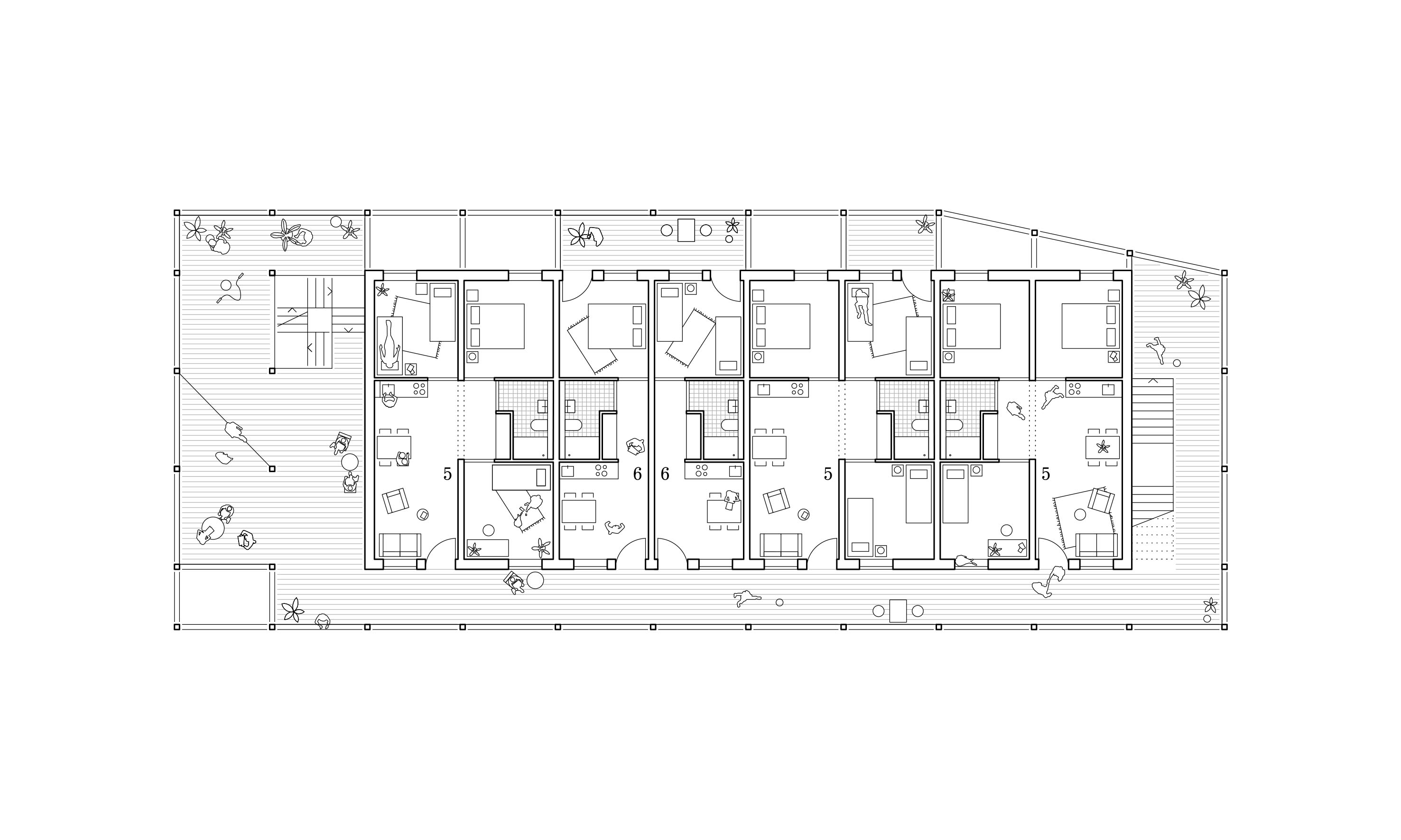
In Schorndorf im Remstal hat sich eine Wohnbaugenossenschaft gegründet, um so ihre Vision eines ökologischen und solidarischen Zusammenlebens wahrwerden zu lassen. Auf einem zentrumsnahen Grundstück in heterogenem Umfeld werden nachhaltige Wohngebäude mit 50 Wohneinheiten um eine ehemalige Hofstelle ergänzen. Vier neue, bis zu fünfgeschossige Wohnhäuser in Holzbauweise mit Strohballendämmung werden die heutige Obstbaumwiese säumen. Ob als Familie mit Kindern, älteres Paar oder als Wohngemeinschaft, ob als Mensch mit pflegerischem Unterstützungsbedarf oder als helfende Student:in – in der flexiblen Gebäudestruktur lassen sich unterschiedlichste Wohntypologien für die individuellen Lebensmodelle der Bewohner:innen realisieren.
Wettbewerb 2022, 1. Preis
Planung: 2023-2025 Ausführung 2026-2027
Standort: Schorndorf, Rems-Murr-Kreis
BGF/BRI: 5.004 m² / 13.296 m3
Bauherr: RemstalLeben eG
Team: Florian Kaiser, Guobin Shen, Kilian Juraschitz, Johannes Schreiner, Lisa Bohlmann, Florin Voh
In Schorndorf im Remstal hat sich eine Wohnbaugenossenschaft gegründet, um so ihre Vision eines ökologischen und solidarischen Zusammenlebens wahrwerden zu lassen. Auf einem zentrumsnahen Grundstück in heterogenem Umfeld werden nachhaltige Wohngebäude mit 50 Wohneinheiten um eine ehemalige Hofstelle ergänzen. Vier neue, bis zu fünfgeschossige Wohnhäuser in Holzbauweise mit Strohballendämmung werden die heutige Obstbaumwiese säumen. Ob als Familie mit Kindern, älteres Paar oder als Wohngemeinschaft, ob als Mensch mit pflegerischem Unterstützungsbedarf oder als helfende Student:in – in der flexiblen Gebäudestruktur lassen sich unterschiedlichste Wohntypologien für die individuellen Lebensmodelle der Bewohner:innen realisieren.
Wettbewerb 2022, 1. Preis
Planung: 2023-2025 Ausführung 2026-2027
Standort: Schorndorf, Rems-Murr-Kreis
BGF/BRI: 5.004 m² / 13.296 m3
Bauherr: RemstalLeben eG
Team: Florian Kaiser, Guobin Shen, Kilian Juraschitz, Johannes Schreiner, Lisa Bohlmann, Florin Voh
In Schorndorf im Remstal hat sich eine Wohnbaugenossenschaft gegründet, um so ihre Vision eines ökologischen und solidarischen Zusammenlebens wahrwerden zu lassen. Auf einem zentrumsnahen Grundstück in heterogenem Umfeld werden nachhaltige Wohngebäude mit 50 Wohneinheiten um eine ehemalige Hofstelle ergänzen. Vier neue, bis zu fünfgeschossige Wohnhäuser in Holzbauweise mit Strohballendämmung werden die heutige Obstbaumwiese säumen. Ob als Familie mit Kindern, älteres Paar oder als Wohngemeinschaft, ob als Mensch mit pflegerischem Unterstützungsbedarf oder als helfende Student:in – in der flexiblen Gebäudestruktur lassen sich unterschiedlichste Wohntypologien für die individuellen Lebensmodelle der Bewohner:innen realisieren.
Wettbewerb 2022, 1. Preis
Planung: 2023-2025 Ausführung 2026-2027
Standort: Schorndorf, Rems-Murr-Kreis
BGF/BRI: 5.004 m² / 13.296 m3
Bauherr: RemstalLeben eG
Team: Florian Kaiser, Guobin Shen, Kilian Juraschitz, Johannes Schreiner, Lisa Bohlmann, Florin Voh
In Schorndorf im Remstal hat sich eine Wohnbaugenossenschaft gegründet, um so ihre Vision eines ökologischen und solidarischen Zusammenlebens wahrwerden zu lassen. Auf einem zentrumsnahen Grundstück in heterogenem Umfeld werden nachhaltige Wohngebäude mit 50 Wohneinheiten um eine ehemalige Hofstelle ergänzen. Vier neue, bis zu fünfgeschossige Wohnhäuser in Holzbauweise mit Strohballendämmung werden die heutige Obstbaumwiese säumen. Ob als Familie mit Kindern, älteres Paar oder als Wohngemeinschaft, ob als Mensch mit pflegerischem Unterstützungsbedarf oder als helfende Student:in – in der flexiblen Gebäudestruktur lassen sich unterschiedlichste Wohntypologien für die individuellen Lebensmodelle der Bewohner:innen realisieren.
Wettbewerb 2022, 1. Preis
Planung: 2023-2025 Ausführung 2026-2027
Standort: Schorndorf, Rems-Murr-Kreis
BGF/BRI: 5.004 m² / 13.296 m3
Bauherr: RemstalLeben eG
Team: Florian Kaiser, Guobin Shen, Kilian Juraschitz, Johannes Schreiner, Lisa Bohlmann, Florin Voh
Die gesamte Gebäudehülle des Doppelhauses wird aus einem vorgefertigten Element, bestehend aus Baustroh und Lehmputz, ausgeführt. Diese Konstruktion aus lokalen und umweltschonenden Baustoffen erfüllt hervorragende Eigenschaften bezüglich der Dämmung und des Raumklimas. Um die Bodenplatte dieser empfindlichen Bauweise vor Wasser zu schützen, wird das Gebäude angehoben. Diese konstruktiv notwendige Aufständerung wird allerdings überhöht und geschosshoch ausgeführt. Somit entsteht ein offener Raum, der von den Bewohnern angeeignet werden kann und beispielsweise als Werkstatt oder als Sommerküche fungiert. Somit vergrößert sich das Gebäude im Sommer um ein gesamtes Geschoss. Die punktsymmetrische räumliche Verschränkung der beiden Doppelhaushälften reagiert auf Blickbezüge in der Umgebung, sowie die Orientierung zum Garten.
Planung: 2018-2019, Ausführung: 2020-2023
Standort: Keltergasse 5, 74397 Pfaffenhofen
BGF/BRI: 521 m² / 2.368 m3
Bauherr: privat
Team: Florian Kaiser, Guobin Shen, Matthias Stauch, Kilian Juraschitz, Leonie Stier, Patrick Schneider
Foto: Patrick Schneider
Die gesamte Gebäudehülle des Doppelhauses wird aus einem vorgefertigten Element, bestehend aus Baustroh und Lehmputz, ausgeführt. Diese Konstruktion aus lokalen und umweltschonenden Baustoffen erfüllt hervorragende Eigenschaften bezüglich der Dämmung und des Raumklimas. Um die Bodenplatte dieser empfindlichen Bauweise vor Wasser zu schützen, wird das Gebäude angehoben. Diese konstruktiv notwendige Aufständerung wird allerdings überhöht und geschosshoch ausgeführt. Somit entsteht ein offener Raum, der von den Bewohnern angeeignet werden kann und beispielsweise als Werkstatt oder als Sommerküche fungiert. Somit vergrößert sich das Gebäude im Sommer um ein gesamtes Geschoss. Die punktsymmetrische räumliche Verschränkung der beiden Doppelhaushälften reagiert auf Blickbezüge in der Umgebung, sowie die Orientierung zum Garten.
Planung: 2018-2019, Ausführung: 2020-2023
Standort: Keltergasse 5, 74397 Pfaffenhofen
BGF/BRI: 521 m² / 2.368 m3
Bauherr: privat
Team: Florian Kaiser, Guobin Shen, Matthias Stauch, Kilian Juraschitz, Leonie Stier, Patrick Schneider
Alfonso X el Sabio, Cantiga de Santa Maria, 1280
Die gesamte Gebäudehülle des Doppelhauses wird aus einem vorgefertigten Element, bestehend aus Baustroh und Lehmputz, ausgeführt. Diese Konstruktion aus lokalen und umweltschonenden Baustoffen erfüllt hervorragende Eigenschaften bezüglich der Dämmung und des Raumklimas. Um die Bodenplatte dieser empfindlichen Bauweise vor Wasser zu schützen, wird das Gebäude angehoben. Diese konstruktiv notwendige Aufständerung wird allerdings überhöht und geschosshoch ausgeführt. Somit entsteht ein offener Raum, der von den Bewohnern angeeignet werden kann und beispielsweise als Werkstatt oder als Sommerküche fungiert. Somit vergrößert sich das Gebäude im Sommer um ein gesamtes Geschoss. Die punktsymmetrische räumliche Verschränkung der beiden Doppelhaushälften reagiert auf Blickbezüge in der Umgebung, sowie die Orientierung zum Garten.
Planung: 2018-2019, Ausführung: 2020-2023
Standort: Keltergasse 5, 74397 Pfaffenhofen
BGF/BRI: 521 m² / 2.368 m3
Bauherr: privat
Team: Florian Kaiser, Guobin Shen, Matthias Stauch, Kilian Juraschitz, Leonie Stier, Patrick Schneider
Foto: Brigida González
Die gesamte Gebäudehülle des Doppelhauses wird aus einem vorgefertigten Element, bestehend aus Baustroh und Lehmputz, ausgeführt. Diese Konstruktion aus lokalen und umweltschonenden Baustoffen erfüllt hervorragende Eigenschaften bezüglich der Dämmung und des Raumklimas. Um die Bodenplatte dieser empfindlichen Bauweise vor Wasser zu schützen, wird das Gebäude angehoben. Diese konstruktiv notwendige Aufständerung wird allerdings überhöht und geschosshoch ausgeführt. Somit entsteht ein offener Raum, der von den Bewohnern angeeignet werden kann und beispielsweise als Werkstatt oder als Sommerküche fungiert. Somit vergrößert sich das Gebäude im Sommer um ein gesamtes Geschoss. Die punktsymmetrische räumliche Verschränkung der beiden Doppelhaushälften reagiert auf Blickbezüge in der Umgebung, sowie die Orientierung zum Garten.
Planung: 2018-2019, Ausführung: 2020-2023
Standort: Keltergasse 5, 74397 Pfaffenhofen
BGF/BRI: 521 m² / 2.368 m3
Bauherr: privat
Team: Florian Kaiser, Guobin Shen, Matthias Stauch, Kilian Juraschitz, Leonie Stier, Patrick Schneider
Die gesamte Gebäudehülle des Doppelhauses wird aus einem vorgefertigten Element, bestehend aus Baustroh und Lehmputz, ausgeführt. Diese Konstruktion aus lokalen und umweltschonenden Baustoffen erfüllt hervorragende Eigenschaften bezüglich der Dämmung und des Raumklimas. Um die Bodenplatte dieser empfindlichen Bauweise vor Wasser zu schützen, wird das Gebäude angehoben. Diese konstruktiv notwendige Aufständerung wird allerdings überhöht und geschosshoch ausgeführt. Somit entsteht ein offener Raum, der von den Bewohnern angeeignet werden kann und beispielsweise als Werkstatt oder als Sommerküche fungiert. Somit vergrößert sich das Gebäude im Sommer um ein gesamtes Geschoss. Die punktsymmetrische räumliche Verschränkung der beiden Doppelhaushälften reagiert auf Blickbezüge in der Umgebung, sowie die Orientierung zum Garten.
Planung: 2018-2019, Ausführung: 2020-2023
Standort: Keltergasse 5, 74397 Pfaffenhofen
BGF/BRI: 521 m² / 2.368 m3
Bauherr: privat
Team: Florian Kaiser, Guobin Shen, Matthias Stauch, Kilian Juraschitz, Leonie Stier, Patrick Schneider
Die gesamte Gebäudehülle des Doppelhauses wird aus einem vorgefertigten Element, bestehend aus Baustroh und Lehmputz, ausgeführt. Diese Konstruktion aus lokalen und umweltschonenden Baustoffen erfüllt hervorragende Eigenschaften bezüglich der Dämmung und des Raumklimas. Um die Bodenplatte dieser empfindlichen Bauweise vor Wasser zu schützen, wird das Gebäude angehoben. Diese konstruktiv notwendige Aufständerung wird allerdings überhöht und geschosshoch ausgeführt. Somit entsteht ein offener Raum, der von den Bewohnern angeeignet werden kann und beispielsweise als Werkstatt oder als Sommerküche fungiert. Somit vergrößert sich das Gebäude im Sommer um ein gesamtes Geschoss. Die punktsymmetrische räumliche Verschränkung der beiden Doppelhaushälften reagiert auf Blickbezüge in der Umgebung, sowie die Orientierung zum Garten.
Planung: 2018-2019, Ausführung: 2020-2023
Standort: Keltergasse 5, 74397 Pfaffenhofen
BGF/BRI: 521 m² / 2.368 m3
Bauherr: privat
Team: Florian Kaiser, Guobin Shen, Matthias Stauch, Kilian Juraschitz, Leonie Stier, Patrick Schneider
Die gesamte Gebäudehülle des Doppelhauses wird aus einem vorgefertigten Element, bestehend aus Baustroh und Lehmputz, ausgeführt. Diese Konstruktion aus lokalen und umweltschonenden Baustoffen erfüllt hervorragende Eigenschaften bezüglich der Dämmung und des Raumklimas. Um die Bodenplatte dieser empfindlichen Bauweise vor Wasser zu schützen, wird das Gebäude angehoben. Diese konstruktiv notwendige Aufständerung wird allerdings überhöht und geschosshoch ausgeführt. Somit entsteht ein offener Raum, der von den Bewohnern angeeignet werden kann und beispielsweise als Werkstatt oder als Sommerküche fungiert. Somit vergrößert sich das Gebäude im Sommer um ein gesamtes Geschoss. Die punktsymmetrische räumliche Verschränkung der beiden Doppelhaushälften reagiert auf Blickbezüge in der Umgebung, sowie die Orientierung zum Garten.
Planung: 2018-2019, Ausführung: 2020-2023
Standort: Keltergasse 5, 74397 Pfaffenhofen
BGF/BRI: 521 m² / 2.368 m3
Bauherr: privat
Team: Florian Kaiser, Guobin Shen, Matthias Stauch, Kilian Juraschitz, Leonie Stier, Patrick Schneider
Foto: Brigida González
Die gesamte Gebäudehülle des Doppelhauses wird aus einem vorgefertigten Element, bestehend aus Baustroh und Lehmputz, ausgeführt. Diese Konstruktion aus lokalen und umweltschonenden Baustoffen erfüllt hervorragende Eigenschaften bezüglich der Dämmung und des Raumklimas. Um die Bodenplatte dieser empfindlichen Bauweise vor Wasser zu schützen, wird das Gebäude angehoben. Diese konstruktiv notwendige Aufständerung wird allerdings überhöht und geschosshoch ausgeführt. Somit entsteht ein offener Raum, der von den Bewohnern angeeignet werden kann und beispielsweise als Werkstatt oder als Sommerküche fungiert. Somit vergrößert sich das Gebäude im Sommer um ein gesamtes Geschoss. Die punktsymmetrische räumliche Verschränkung der beiden Doppelhaushälften reagiert auf Blickbezüge in der Umgebung, sowie die Orientierung zum Garten.
Planung: 2018-2019, Ausführung: 2020-2023
Standort: Keltergasse 5, 74397 Pfaffenhofen
BGF/BRI: 521 m² / 2.368 m3
Bauherr: privat
Team: Florian Kaiser, Guobin Shen, Matthias Stauch, Kilian Juraschitz, Leonie Stier, Patrick Schneider
Foto: Brigida González
Die gesamte Gebäudehülle des Doppelhauses wird aus einem vorgefertigten Element, bestehend aus Baustroh und Lehmputz, ausgeführt. Diese Konstruktion aus lokalen und umweltschonenden Baustoffen erfüllt hervorragende Eigenschaften bezüglich der Dämmung und des Raumklimas. Um die Bodenplatte dieser empfindlichen Bauweise vor Wasser zu schützen, wird das Gebäude angehoben. Diese konstruktiv notwendige Aufständerung wird allerdings überhöht und geschosshoch ausgeführt. Somit entsteht ein offener Raum, der von den Bewohnern angeeignet werden kann und beispielsweise als Werkstatt oder als Sommerküche fungiert. Somit vergrößert sich das Gebäude im Sommer um ein gesamtes Geschoss. Die punktsymmetrische räumliche Verschränkung der beiden Doppelhaushälften reagiert auf Blickbezüge in der Umgebung, sowie die Orientierung zum Garten.
Planung: 2018-2019, Ausführung: 2020-2023
Standort: Keltergasse 5, 74397 Pfaffenhofen
BGF/BRI: 521 m² / 2.368 m3
Bauherr: privat
Team: Florian Kaiser, Guobin Shen, Matthias Stauch, Kilian Juraschitz, Leonie Stier, Patrick Schneider
Foto: Brigida González
Die gesamte Gebäudehülle des Doppelhauses wird aus einem vorgefertigten Element, bestehend aus Baustroh und Lehmputz, ausgeführt. Diese Konstruktion aus lokalen und umweltschonenden Baustoffen erfüllt hervorragende Eigenschaften bezüglich der Dämmung und des Raumklimas. Um die Bodenplatte dieser empfindlichen Bauweise vor Wasser zu schützen, wird das Gebäude angehoben. Diese konstruktiv notwendige Aufständerung wird allerdings überhöht und geschosshoch ausgeführt. Somit entsteht ein offener Raum, der von den Bewohnern angeeignet werden kann und beispielsweise als Werkstatt oder als Sommerküche fungiert. Somit vergrößert sich das Gebäude im Sommer um ein gesamtes Geschoss. Die punktsymmetrische räumliche Verschränkung der beiden Doppelhaushälften reagiert auf Blickbezüge in der Umgebung, sowie die Orientierung zum Garten.
Planung: 2018-2019, Ausführung: 2020-2023
Standort: Keltergasse 5, 74397 Pfaffenhofen
BGF/BRI: 521 m² / 2.368 m3
Bauherr: privat
Team: Florian Kaiser, Guobin Shen, Matthias Stauch, Kilian Juraschitz, Leonie Stier, Patrick Schneider
Foto: Brigida González
Die Turn- und Festhalle in Ingerkingen wurde in den 1960er Jahren erbaut und später mehrmals erweitert und umgebaut. Um den Anforderungen an eine zeitgenössische Einfeldhalle zu genügen wurde die Halle im südlichen und östlichen Bereich zurückgebaut und vergrößert. Um den Abriss auf ein Minimum zu reduzieren, wurden Fundamente und Bodenplatte, Decken und die massiven Wände im nördlichen Teil und der straßenseitige Bühnentrakt in die Planung integriert. So konnten insgesamt 60 Prozent der Baumasse erhalten werden. Dies konnte nur durch die Entwicklung eines innovativen Tragwerks realisiert werden. Ein einhüftiger Zweigelenkrahmen aus Brettschichtholz ist auf dem Achsraster der bestehenden Stahlbetonstützen ausgerichtet und leitet aufgrund seiner Geometrie lediglich einen Teil der Lasten in den Bestand ein.
Planung: 2020–2021, Ausführung: 2022–2024
Standort: Schlägweidestr. 3, 88433 Ingerkingen
BGF/BRI: 1584 m² / 7921 m3
Bauherr: Gemeinde Schemmerhofen
Team: Florian Kaiser, Guobin Shen, Kilian Juraschitz, Matthias Stauch, Tim Kölle, Patrick Schneider
Foto: Brigida González
Die Turn- und Festhalle in Ingerkingen wurde in den 1960er Jahren erbaut und später mehrmals erweitert und umgebaut. Um den Anforderungen an eine zeitgenössische Einfeldhalle zu genügen wurde die Halle im südlichen und östlichen Bereich zurückgebaut und vergrößert. Um den Abriss auf ein Minimum zu reduzieren, wurden Fundamente und Bodenplatte, Decken und die massiven Wände im nördlichen Teil und der straßenseitige Bühnentrakt in die Planung integriert. So konnten insgesamt 60 Prozent der Baumasse erhalten werden. Dies konnte nur durch die Entwicklung eines innovativen Tragwerks realisiert werden. Ein einhüftiger Zweigelenkrahmen aus Brettschichtholz ist auf dem Achsraster der bestehenden Stahlbetonstützen ausgerichtet und leitet aufgrund seiner Geometrie lediglich einen Teil der Lasten in den Bestand ein.
Planung: 2020–2021, Ausführung: 2022–2024
Standort: Schlägweidestr. 3, 88433 Ingerkingen
BGF/BRI: 1584 m² / 7921 m3
Bauherr: Gemeinde Schemmerhofen
Team: Florian Kaiser, Guobin Shen, Kilian Juraschitz, Matthias Stauch, Tim Kölle, Patrick Schneider
Foto: Brigida González
Die Turn- und Festhalle in Ingerkingen wurde in den 1960er Jahren erbaut und später mehrmals erweitert und umgebaut. Um den Anforderungen an eine zeitgenössische Einfeldhalle zu genügen wurde die Halle im südlichen und östlichen Bereich zurückgebaut und vergrößert. Um den Abriss auf ein Minimum zu reduzieren, wurden Fundamente und Bodenplatte, Decken und die massiven Wände im nördlichen Teil und der straßenseitige Bühnentrakt in die Planung integriert. So konnten insgesamt 60 Prozent der Baumasse erhalten werden. Dies konnte nur durch die Entwicklung eines innovativen Tragwerks realisiert werden. Ein einhüftiger Zweigelenkrahmen aus Brettschichtholz ist auf dem Achsraster der bestehenden Stahlbetonstützen ausgerichtet und leitet aufgrund seiner Geometrie lediglich einen Teil der Lasten in den Bestand ein.
Planung: 2020–2021, Ausführung: 2022–2024
Standort: Schlägweidestr. 3, 88433 Ingerkingen
BGF/BRI: 1584 m² / 7921 m3
Bauherr: Gemeinde Schemmerhofen
Team: Florian Kaiser, Guobin Shen, Kilian Juraschitz, Matthias Stauch, Tim Kölle, Patrick Schneider
Foto: Brigida González
Die Turn- und Festhalle in Ingerkingen wurde in den 1960er Jahren erbaut und später mehrmals erweitert und umgebaut. Um den Anforderungen an eine zeitgenössische Einfeldhalle zu genügen wurde die Halle im südlichen und östlichen Bereich zurückgebaut und vergrößert. Um den Abriss auf ein Minimum zu reduzieren, wurden Fundamente und Bodenplatte, Decken und die massiven Wände im nördlichen Teil und der straßenseitige Bühnentrakt in die Planung integriert. So konnten insgesamt 60 Prozent der Baumasse erhalten werden. Dies konnte nur durch die Entwicklung eines innovativen Tragwerks realisiert werden. Ein einhüftiger Zweigelenkrahmen aus Brettschichtholz ist auf dem Achsraster der bestehenden Stahlbetonstützen ausgerichtet und leitet aufgrund seiner Geometrie lediglich einen Teil der Lasten in den Bestand ein.
Planung: 2020–2021, Ausführung: 2022–2024
Standort: Schlägweidestr. 3, 88433 Ingerkingen
BGF/BRI: 1584 m² / 7921 m3
Bauherr: Gemeinde Schemmerhofen
Team: Florian Kaiser, Guobin Shen, Kilian Juraschitz, Matthias Stauch, Tim Kölle, Patrick Schneider
Foto: Brigida González
Die Turn- und Festhalle in Ingerkingen wurde in den 1960er Jahren erbaut und später mehrmals erweitert und umgebaut. Um den Anforderungen an eine zeitgenössische Einfeldhalle zu genügen wurde die Halle im südlichen und östlichen Bereich zurückgebaut und vergrößert. Um den Abriss auf ein Minimum zu reduzieren, wurden Fundamente und Bodenplatte, Decken und die massiven Wände im nördlichen Teil und der straßenseitige Bühnentrakt in die Planung integriert. So konnten insgesamt 60 Prozent der Baumasse erhalten werden. Dies konnte nur durch die Entwicklung eines innovativen Tragwerks realisiert werden. Ein einhüftiger Zweigelenkrahmen aus Brettschichtholz ist auf dem Achsraster der bestehenden Stahlbetonstützen ausgerichtet und leitet aufgrund seiner Geometrie lediglich einen Teil der Lasten in den Bestand ein.
Planung: 2020–2021, Ausführung: 2022–2024
Standort: Schlägweidestr. 3, 88433 Ingerkingen
BGF/BRI: 1584 m² / 7921 m3
Bauherr: Gemeinde Schemmerhofen
Team: Florian Kaiser, Guobin Shen, Kilian Juraschitz, Matthias Stauch, Tim Kölle, Patrick Schneider
Foto: Brigida González
Die Turn- und Festhalle in Ingerkingen wurde in den 1960er Jahren erbaut und später mehrmals erweitert und umgebaut. Um den Anforderungen an eine zeitgenössische Einfeldhalle zu genügen wurde die Halle im südlichen und östlichen Bereich zurückgebaut und vergrößert. Um den Abriss auf ein Minimum zu reduzieren, wurden Fundamente und Bodenplatte, Decken und die massiven Wände im nördlichen Teil und der straßenseitige Bühnentrakt in die Planung integriert. So konnten insgesamt 60 Prozent der Baumasse erhalten werden. Dies konnte nur durch die Entwicklung eines innovativen Tragwerks realisiert werden. Ein einhüftiger Zweigelenkrahmen aus Brettschichtholz ist auf dem Achsraster der bestehenden Stahlbetonstützen ausgerichtet und leitet aufgrund seiner Geometrie lediglich einen Teil der Lasten in den Bestand ein.
Planung: 2020–2021, Ausführung: 2022–2024
Standort: Schlägweidestr. 3, 88433 Ingerkingen
BGF/BRI: 1584 m² / 7921 m3
Bauherr: Gemeinde Schemmerhofen
Team: Florian Kaiser, Guobin Shen, Kilian Juraschitz, Matthias Stauch, Tim Kölle, Patrick Schneider
Foto: Brigida González
Die Turn- und Festhalle in Ingerkingen wurde in den 1960er Jahren erbaut und später mehrmals erweitert und umgebaut. Um den Anforderungen an eine zeitgenössische Einfeldhalle zu genügen wurde die Halle im südlichen und östlichen Bereich zurückgebaut und vergrößert. Um den Abriss auf ein Minimum zu reduzieren, wurden Fundamente und Bodenplatte, Decken und die massiven Wände im nördlichen Teil und der straßenseitige Bühnentrakt in die Planung integriert. So konnten insgesamt 60 Prozent der Baumasse erhalten werden. Dies konnte nur durch die Entwicklung eines innovativen Tragwerks realisiert werden. Ein einhüftiger Zweigelenkrahmen aus Brettschichtholz ist auf dem Achsraster der bestehenden Stahlbetonstützen ausgerichtet und leitet aufgrund seiner Geometrie lediglich einen Teil der Lasten in den Bestand ein.
Planung: 2020–2021, Ausführung: 2022–2024
Standort: Schlägweidestr. 3, 88433 Ingerkingen
BGF/BRI: 1584 m² / 7921 m3
Bauherr: Gemeinde Schemmerhofen
Team: Florian Kaiser, Guobin Shen, Kilian Juraschitz, Matthias Stauch, Tim Kölle, Patrick Schneider
Foto: Brigida González
Die Turn- und Festhalle in Ingerkingen wurde in den 1960er Jahren erbaut und später mehrmals erweitert und umgebaut. Um den Anforderungen an eine zeitgenössische Einfeldhalle zu genügen wurde die Halle im südlichen und östlichen Bereich zurückgebaut und vergrößert. Um den Abriss auf ein Minimum zu reduzieren, wurden Fundamente und Bodenplatte, Decken und die massiven Wände im nördlichen Teil und der straßenseitige Bühnentrakt in die Planung integriert. So konnten insgesamt 60 Prozent der Baumasse erhalten werden. Dies konnte nur durch die Entwicklung eines innovativen Tragwerks realisiert werden. Ein einhüftiger Zweigelenkrahmen aus Brettschichtholz ist auf dem Achsraster der bestehenden Stahlbetonstützen ausgerichtet und leitet aufgrund seiner Geometrie lediglich einen Teil der Lasten in den Bestand ein.
Planung: 2020–2021, Ausführung: 2022–2024
Standort: Schlägweidestr. 3, 88433 Ingerkingen
BGF/BRI: 1584 m² / 7921 m3
Bauherr: Gemeinde Schemmerhofen
Team: Florian Kaiser, Guobin Shen, Kilian Juraschitz, Matthias Stauch, Tim Kölle, Patrick Schneider
Foto: Brigida González
Die Turn- und Festhalle in Ingerkingen wurde in den 1960er Jahren erbaut und später mehrmals erweitert und umgebaut. Um den Anforderungen an eine zeitgenössische Einfeldhalle zu genügen wurde die Halle im südlichen und östlichen Bereich zurückgebaut und vergrößert. Um den Abriss auf ein Minimum zu reduzieren, wurden Fundamente und Bodenplatte, Decken und die massiven Wände im nördlichen Teil und der straßenseitige Bühnentrakt in die Planung integriert. So konnten insgesamt 60 Prozent der Baumasse erhalten werden. Dies konnte nur durch die Entwicklung eines innovativen Tragwerks realisiert werden. Ein einhüftiger Zweigelenkrahmen aus Brettschichtholz ist auf dem Achsraster der bestehenden Stahlbetonstützen ausgerichtet und leitet aufgrund seiner Geometrie lediglich einen Teil der Lasten in den Bestand ein.
Planung: 2020–2021, Ausführung: 2022–2024
Standort: Schlägweidestr. 3, 88433 Ingerkingen
BGF/BRI: 1584 m² / 7921 m3
Bauherr: Gemeinde Schemmerhofen
Team: Florian Kaiser, Guobin Shen, Kilian Juraschitz, Matthias Stauch, Tim Kölle, Patrick Schneider
Foto: Brigida González
Die Turn- und Festhalle in Ingerkingen wurde in den 1960er Jahren erbaut und später mehrmals erweitert und umgebaut. Um den Anforderungen an eine zeitgenössische Einfeldhalle zu genügen wurde die Halle im südlichen und östlichen Bereich zurückgebaut und vergrößert. Um den Abriss auf ein Minimum zu reduzieren, wurden Fundamente und Bodenplatte, Decken und die massiven Wände im nördlichen Teil und der straßenseitige Bühnentrakt in die Planung integriert. So konnten insgesamt 60 Prozent der Baumasse erhalten werden. Dies konnte nur durch die Entwicklung eines innovativen Tragwerks realisiert werden. Ein einhüftiger Zweigelenkrahmen aus Brettschichtholz ist auf dem Achsraster der bestehenden Stahlbetonstützen ausgerichtet und leitet aufgrund seiner Geometrie lediglich einen Teil der Lasten in den Bestand ein.
Planung: 2020–2021, Ausführung: 2022–2024
Standort: Schlägweidestr. 3, 88433 Ingerkingen
BGF/BRI: 1584 m² / 7921 m3
Bauherr: Gemeinde Schemmerhofen
Team: Florian Kaiser, Guobin Shen, Kilian Juraschitz, Matthias Stauch, Tim Kölle, Patrick Schneider
Foto: Brigida González
Die Turn- und Festhalle in Ingerkingen wurde in den 1960er Jahren erbaut und später mehrmals erweitert und umgebaut. Um den Anforderungen an eine zeitgenössische Einfeldhalle zu genügen wurde die Halle im südlichen und östlichen Bereich zurückgebaut und vergrößert. Um den Abriss auf ein Minimum zu reduzieren, wurden Fundamente und Bodenplatte, Decken und die massiven Wände im nördlichen Teil und der straßenseitige Bühnentrakt in die Planung integriert. So konnten insgesamt 60 Prozent der Baumasse erhalten werden. Dies konnte nur durch die Entwicklung eines innovativen Tragwerks realisiert werden. Ein einhüftiger Zweigelenkrahmen aus Brettschichtholz ist auf dem Achsraster der bestehenden Stahlbetonstützen ausgerichtet und leitet aufgrund seiner Geometrie lediglich einen Teil der Lasten in den Bestand ein.
Planung: 2020–2021, Ausführung: 2022–2024
Standort: Schlägweidestr. 3, 88433 Ingerkingen
BGF/BRI: 1584 m² / 7921 m3
Bauherr: Gemeinde Schemmerhofen
Team: Florian Kaiser, Guobin Shen, Kilian Juraschitz, Matthias Stauch, Tim Kölle, Patrick Schneider
Foto: Brigida González
Die Turn- und Festhalle in Ingerkingen wurde in den 1960er Jahren erbaut und später mehrmals erweitert und umgebaut. Um den Anforderungen an eine zeitgenössische Einfeldhalle zu genügen wurde die Halle im südlichen und östlichen Bereich zurückgebaut und vergrößert. Um den Abriss auf ein Minimum zu reduzieren, wurden Fundamente und Bodenplatte, Decken und die massiven Wände im nördlichen Teil und der straßenseitige Bühnentrakt in die Planung integriert. So konnten insgesamt 60 Prozent der Baumasse erhalten werden. Dies konnte nur durch die Entwicklung eines innovativen Tragwerks realisiert werden. Ein einhüftiger Zweigelenkrahmen aus Brettschichtholz ist auf dem Achsraster der bestehenden Stahlbetonstützen ausgerichtet und leitet aufgrund seiner Geometrie lediglich einen Teil der Lasten in den Bestand ein.
Planung: 2020–2021, Ausführung: 2022–2024
Standort: Schlägweidestr. 3, 88433 Ingerkingen
BGF/BRI: 1584 m² / 7921 m3
Bauherr: Gemeinde Schemmerhofen
Team: Florian Kaiser, Guobin Shen, Kilian Juraschitz, Matthias Stauch, Tim Kölle, Patrick Schneider
Foto: Brigida González
Die Turn- und Festhalle in Ingerkingen wurde in den 1960er Jahren erbaut und später mehrmals erweitert und umgebaut. Um den Anforderungen an eine zeitgenössische Einfeldhalle zu genügen wurde die Halle im südlichen und östlichen Bereich zurückgebaut und vergrößert. Um den Abriss auf ein Minimum zu reduzieren, wurden Fundamente und Bodenplatte, Decken und die massiven Wände im nördlichen Teil und der straßenseitige Bühnentrakt in die Planung integriert. So konnten insgesamt 60 Prozent der Baumasse erhalten werden. Dies konnte nur durch die Entwicklung eines innovativen Tragwerks realisiert werden. Ein einhüftiger Zweigelenkrahmen aus Brettschichtholz ist auf dem Achsraster der bestehenden Stahlbetonstützen ausgerichtet und leitet aufgrund seiner Geometrie lediglich einen Teil der Lasten in den Bestand ein.
Planung: 2020–2021, Ausführung: 2022–2024
Standort: Schlägweidestr. 3, 88433 Ingerkingen
BGF/BRI: 1584 m² / 7921 m3
Bauherr: Gemeinde Schemmerhofen
Team: Florian Kaiser, Guobin Shen, Kilian Juraschitz, Matthias Stauch, Tim Kölle, Patrick Schneider
Foto: Brigida González
Die Turn- und Festhalle in Ingerkingen wurde in den 1960er Jahren erbaut und später mehrmals erweitert und umgebaut. Um den Anforderungen an eine zeitgenössische Einfeldhalle zu genügen wurde die Halle im südlichen und östlichen Bereich zurückgebaut und vergrößert. Um den Abriss auf ein Minimum zu reduzieren, wurden Fundamente und Bodenplatte, Decken und die massiven Wände im nördlichen Teil und der straßenseitige Bühnentrakt in die Planung integriert. So konnten insgesamt 60 Prozent der Baumasse erhalten werden. Dies konnte nur durch die Entwicklung eines innovativen Tragwerks realisiert werden. Ein einhüftiger Zweigelenkrahmen aus Brettschichtholz ist auf dem Achsraster der bestehenden Stahlbetonstützen ausgerichtet und leitet aufgrund seiner Geometrie lediglich einen Teil der Lasten in den Bestand ein.
Planung: 2020–2021, Ausführung: 2022–2024
Standort: Schlägweidestr. 3, 88433 Ingerkingen
BGF/BRI: 1584 m² / 7921 m3
Bauherr: Gemeinde Schemmerhofen
Team: Florian Kaiser, Guobin Shen, Kilian Juraschitz, Matthias Stauch, Tim Kölle, Patrick Schneider
Foto: Brigida González
Die Turn- und Festhalle in Ingerkingen wurde in den 1960er Jahren erbaut und später mehrmals erweitert und umgebaut. Um den Anforderungen an eine zeitgenössische Einfeldhalle zu genügen wurde die Halle im südlichen und östlichen Bereich zurückgebaut und vergrößert. Um den Abriss auf ein Minimum zu reduzieren, wurden Fundamente und Bodenplatte, Decken und die massiven Wände im nördlichen Teil und der straßenseitige Bühnentrakt in die Planung integriert. So konnten insgesamt 60 Prozent der Baumasse erhalten werden. Dies konnte nur durch die Entwicklung eines innovativen Tragwerks realisiert werden. Ein einhüftiger Zweigelenkrahmen aus Brettschichtholz ist auf dem Achsraster der bestehenden Stahlbetonstützen ausgerichtet und leitet aufgrund seiner Geometrie lediglich einen Teil der Lasten in den Bestand ein.
Planung: 2020–2021, Ausführung: 2022–2024
Standort: Schlägweidestr. 3, 88433 Ingerkingen
BGF/BRI: 1584 m² / 7921 m3
Bauherr: Gemeinde Schemmerhofen
Team: Florian Kaiser, Guobin Shen, Kilian Juraschitz, Matthias Stauch, Tim Kölle, Patrick Schneider
Foto: Brigida González
Die Turn- und Festhalle in Ingerkingen wurde in den 1960er Jahren erbaut und später mehrmals erweitert und umgebaut. Um den Anforderungen an eine zeitgenössische Einfeldhalle zu genügen wurde die Halle im südlichen und östlichen Bereich zurückgebaut und vergrößert. Um den Abriss auf ein Minimum zu reduzieren, wurden Fundamente und Bodenplatte, Decken und die massiven Wände im nördlichen Teil und der straßenseitige Bühnentrakt in die Planung integriert. So konnten insgesamt 60 Prozent der Baumasse erhalten werden. Dies konnte nur durch die Entwicklung eines innovativen Tragwerks realisiert werden. Ein einhüftiger Zweigelenkrahmen aus Brettschichtholz ist auf dem Achsraster der bestehenden Stahlbetonstützen ausgerichtet und leitet aufgrund seiner Geometrie lediglich einen Teil der Lasten in den Bestand ein.
Planung: 2020–2021, Ausführung: 2022–2024
Standort: Schlägweidestr. 3, 88433 Ingerkingen
BGF/BRI: 1584 m² / 7921 m3
Bauherr: Gemeinde Schemmerhofen
Team: Florian Kaiser, Guobin Shen, Kilian Juraschitz, Matthias Stauch, Tim Kölle, Patrick Schneider
Foto: Brigida González
Die Turn- und Festhalle in Ingerkingen wurde in den 1960er Jahren erbaut und später mehrmals erweitert und umgebaut. Um den Anforderungen an eine zeitgenössische Einfeldhalle zu genügen wurde die Halle im südlichen und östlichen Bereich zurückgebaut und vergrößert. Um den Abriss auf ein Minimum zu reduzieren, wurden Fundamente und Bodenplatte, Decken und die massiven Wände im nördlichen Teil und der straßenseitige Bühnentrakt in die Planung integriert. So konnten insgesamt 60 Prozent der Baumasse erhalten werden. Dies konnte nur durch die Entwicklung eines innovativen Tragwerks realisiert werden. Ein einhüftiger Zweigelenkrahmen aus Brettschichtholz ist auf dem Achsraster der bestehenden Stahlbetonstützen ausgerichtet und leitet aufgrund seiner Geometrie lediglich einen Teil der Lasten in den Bestand ein.
Planung: 2020–2021, Ausführung: 2022–2024
Standort: Schlägweidestr. 3, 88433 Ingerkingen
BGF/BRI: 1584 m² / 7921 m3
Bauherr: Gemeinde Schemmerhofen
Team: Florian Kaiser, Guobin Shen, Kilian Juraschitz, Matthias Stauch, Tim Kölle, Patrick Schneider
Die Turn- und Festhalle in Ingerkingen wurde in den 1960er Jahren erbaut und später mehrmals erweitert und umgebaut. Um den Anforderungen an eine zeitgenössische Einfeldhalle zu genügen wurde die Halle im südlichen und östlichen Bereich zurückgebaut und vergrößert. Um den Abriss auf ein Minimum zu reduzieren, wurden Fundamente und Bodenplatte, Decken und die massiven Wände im nördlichen Teil und der straßenseitige Bühnentrakt in die Planung integriert. So konnten insgesamt 60 Prozent der Baumasse erhalten werden. Dies konnte nur durch die Entwicklung eines innovativen Tragwerks realisiert werden. Ein einhüftiger Zweigelenkrahmen aus Brettschichtholz ist auf dem Achsraster der bestehenden Stahlbetonstützen ausgerichtet und leitet aufgrund seiner Geometrie lediglich einen Teil der Lasten in den Bestand ein.
Planung: 2020–2021, Ausführung: 2022–2024
Standort: Schlägweidestr. 3, 88433 Ingerkingen
BGF/BRI: 1584 m² / 7921 m3
Bauherr: Gemeinde Schemmerhofen
Team: Florian Kaiser, Guobin Shen, Kilian Juraschitz, Matthias Stauch, Tim Kölle, Patrick Schneider
Foto: Brigida González
Die Turn- und Festhalle in Ingerkingen wurde in den 1960er Jahren erbaut und später mehrmals erweitert und umgebaut. Um den Anforderungen an eine zeitgenössische Einfeldhalle zu genügen wurde die Halle im südlichen und östlichen Bereich zurückgebaut und vergrößert. Um den Abriss auf ein Minimum zu reduzieren, wurden Fundamente und Bodenplatte, Decken und die massiven Wände im nördlichen Teil und der straßenseitige Bühnentrakt in die Planung integriert. So konnten insgesamt 60 Prozent der Baumasse erhalten werden. Dies konnte nur durch die Entwicklung eines innovativen Tragwerks realisiert werden. Ein einhüftiger Zweigelenkrahmen aus Brettschichtholz ist auf dem Achsraster der bestehenden Stahlbetonstützen ausgerichtet und leitet aufgrund seiner Geometrie lediglich einen Teil der Lasten in den Bestand ein.
Planung: 2020–2021, Ausführung: 2022–2024
Standort: Schlägweidestr. 3, 88433 Ingerkingen
BGF/BRI: 1584 m² / 7921 m3
Bauherr: Gemeinde Schemmerhofen
Team: Florian Kaiser, Guobin Shen, Kilian Juraschitz, Matthias Stauch, Tim Kölle, Patrick Schneider
Architekt*innen versuchen meist, fertige Häuser, also in sich schlüssige Baukunstwerke für die Ewigkeit zu erschaffen. Doch hält dieser Anspruch der Realität stand? Sollte das überhaupt der Anspruch sein? Schließlich kann ohnehin nicht ausgeschlossen werden, dass sich das Bauwerk nach Fertigstellung verändert. Inspiriert durch Referenzen aus Baugeschichte, Kunst und Anthropologie hat das junge Atelier Kaiser Shen zu Beginn seiner Praxis verschiedene Thesen entwickelt und diese anhand von eigenen Projekten überprüft. Zentral wird die Frage erörtert, wie sich Bauwerke in ihrer Lebensdauer aufgrund von äußeren Einflüssen verändern und was dieser Wandel für die Permanenz in der Architektur und für die Raumidee bedeutet.
Florian Kaiser & Guobin Shen: Unfertige Häuser 未完的建築
Herausgeber: Edition Axel Menges, Stuttgart
128 Seiten, 140 x 200 mm, Softcover, Deutsch / Chinesisch
Erscheinungsdatum 29.06.2022
Euro 19.90; ISBN: 978-3-86905-031-7
Die in den 1960er Jahren erbaute Michael-Friedrich-Wild Grundschule besticht durch eine ungewöhnliche Grundrisskonfiguration. So befinden sich im ersten Obergeschoss des aufgeständerten Schulbaus, ringförmig um Aula und Innenhof angeordnet, alle schulischen Nutzungen. Zudem leiten zwei turmartige Treppenhäuser in das zweite und dritte Obergeschoss und erschließen dort als ,Zweispänner’ jeweils zwei Klassenzimmer. Bei der Erweiterung in Holzhybridbauweise werden diese beiden Treppenhäuser aufgegriffen und deren Zwischenpodeste in eine großzügige einläufige Treppe integriert. Die Grundrisstypologie ändert sich somit grundlegend und bildet das neue Herz der Schule, in dem überraschende Blickbeziehungen entstehen. Für die neue Mensa und den Mehrzweckraum wird das freie Erdgeschoss ausgebaut.
Wettbewerb 2022: 1. Preis
Planung: 2023-2024, Ausführung: 2025-2027
Standort: Goethestraße 22, 79379 Müllheim
BGF/BRI: 2254 m² / 8081 m3
Bauherr: Stadt Müllheim
Team: Florian Kaiser, Guobin Shen, Johannes Schreiner, Paul-Christian Wagner, Nadja Probst
Die in den 1960er Jahren erbaute Michael-Friedrich-Wild Grundschule besticht durch eine ungewöhnliche Grundrisskonfiguration. So befinden sich im ersten Obergeschoss des aufgeständerten Schulbaus, ringförmig um Aula und Innenhof angeordnet, alle schulischen Nutzungen. Zudem leiten zwei turmartige Treppenhäuser in das zweite und dritte Obergeschoss und erschließen dort als ,Zweispänner’ jeweils zwei Klassenzimmer. Bei der Erweiterung in Holzhybridbauweise werden diese beiden Treppenhäuser aufgegriffen und deren Zwischenpodeste in eine großzügige einläufige Treppe integriert. Die Grundrisstypologie ändert sich somit grundlegend und bildet das neue Herz der Schule, in dem überraschende Blickbeziehungen entstehen. Für die neue Mensa und den Mehrzweckraum wird das freie Erdgeschoss ausgebaut.
Wettbewerb 2022: 1. Preis
Planung: 2023-2024, Ausführung: 2025-2027
Standort: Goethestraße 22, 79379 Müllheim
BGF/BRI: 2254 m² / 8081 m3
Bauherr: Stadt Müllheim
Team: Florian Kaiser, Guobin Shen, Johannes Schreiner, Paul-Christian Wagner, Nadja Probst
Die in den 1960er Jahren erbaute Michael-Friedrich-Wild Grundschule besticht durch eine ungewöhnliche Grundrisskonfiguration. So befinden sich im ersten Obergeschoss des aufgeständerten Schulbaus, ringförmig um Aula und Innenhof angeordnet, alle schulischen Nutzungen. Zudem leiten zwei turmartige Treppenhäuser in das zweite und dritte Obergeschoss und erschließen dort als ,Zweispänner’ jeweils zwei Klassenzimmer. Bei der Erweiterung in Holzhybridbauweise werden diese beiden Treppenhäuser aufgegriffen und deren Zwischenpodeste in eine großzügige einläufige Treppe integriert. Die Grundrisstypologie ändert sich somit grundlegend und bildet das neue Herz der Schule, in dem überraschende Blickbeziehungen entstehen. Für die neue Mensa und den Mehrzweckraum wird das freie Erdgeschoss ausgebaut.
Wettbewerb 2022: 1. Preis
Planung: 2023-2024, Ausführung: 2025-2027
Standort: Goethestraße 22, 79379 Müllheim
BGF/BRI: 2254 m² / 8081 m3
Bauherr: Stadt Müllheim
Team: Florian Kaiser, Guobin Shen, Johannes Schreiner, Paul-Christian Wagner, Nadja Probst
Die in den 1960er Jahren erbaute Michael-Friedrich-Wild Grundschule besticht durch eine ungewöhnliche Grundrisskonfiguration. So befinden sich im ersten Obergeschoss des aufgeständerten Schulbaus, ringförmig um Aula und Innenhof angeordnet, alle schulischen Nutzungen. Zudem leiten zwei turmartige Treppenhäuser in das zweite und dritte Obergeschoss und erschließen dort als ,Zweispänner’ jeweils zwei Klassenzimmer. Bei der Erweiterung in Holzhybridbauweise werden diese beiden Treppenhäuser aufgegriffen und deren Zwischenpodeste in eine großzügige einläufige Treppe integriert. Die Grundrisstypologie ändert sich somit grundlegend und bildet das neue Herz der Schule, in dem überraschende Blickbeziehungen entstehen. Für die neue Mensa und den Mehrzweckraum wird das freie Erdgeschoss ausgebaut.
Wettbewerb 2022: 1. Preis
Planung: 2023-2024, Ausführung: 2025-2027
Standort: Goethestraße 22, 79379 Müllheim
BGF/BRI: 2254 m² / 8081 m3
Bauherr: Stadt Müllheim
Team: Florian Kaiser, Guobin Shen, Johannes Schreiner, Paul-Christian Wagner, Nadja Probst
Die in den 1960er Jahren erbaute Michael-Friedrich-Wild Grundschule besticht durch eine ungewöhnliche Grundrisskonfiguration. So befinden sich im ersten Obergeschoss des aufgeständerten Schulbaus, ringförmig um Aula und Innenhof angeordnet, alle schulischen Nutzungen. Zudem leiten zwei turmartige Treppenhäuser in das zweite und dritte Obergeschoss und erschließen dort als ,Zweispänner’ jeweils zwei Klassenzimmer. Bei der Erweiterung in Holzhybridbauweise werden diese beiden Treppenhäuser aufgegriffen und deren Zwischenpodeste in eine großzügige einläufige Treppe integriert. Die Grundrisstypologie ändert sich somit grundlegend und bildet das neue Herz der Schule, in dem überraschende Blickbeziehungen entstehen. Für die neue Mensa und den Mehrzweckraum wird das freie Erdgeschoss ausgebaut.
Wettbewerb 2022: 1. Preis
Planung: 2023-2024, Ausführung: 2025-2027
Standort: Goethestraße 22, 79379 Müllheim
BGF/BRI: 2254 m² / 8081 m3
Bauherr: Stadt Müllheim
Team: Florian Kaiser, Guobin Shen, Johannes Schreiner, Paul-Christian Wagner, Nadja Probst
In der kleinen Gemeinde Schönaich in Baden-Württemberg wurde ein Modellgebäude für bezahlbaren Wohnraum und Geflüchtete in innovativer Holzbauweise errichtet. Die Idee des Wohnheims basiert auf einer anspruchsvollen Gestaltung, die zukünftige Veränderungen zulässt und durch diese gar bereichert wird. Dabei bildet ein klar gerasterter Grundriss mit tragenden Brettsperrholz-Wandscheiben und ein umschließendes Gerüst die Überlagerung mehrerer Raumprogramme ab und ermöglicht somit eine fluide Umnutzung des Gebäudes. Somit konnten sowohl die vorgeschriebene Wohnfläche pro geflüchtete Person von 7 Quadratmetern als auch die Richtwerte für sozial geförderten Wohnraum eingehalten werden. Durch einfache Umnutzung, hohe Vorfertigung und flexible Strukturen ist das Gebäude als langfristig anpassbares, „unfertiges“ Haus angelegt.
Planung: 2019-2021, Ausführung: 2022-2025
Standort: Im Hasenbühl, 71101 Schönaich
BGF/BRI: 1751 m² / 5909 m3
Bauherr: Gemeinde Schönaich
Team: Florian Kaiser, Guobin Shen, Matthias Stauch, Tim Kölle, Yanghao Shu
Foto: Brigida González
In der kleinen Gemeinde Schönaich in Baden-Württemberg wurde ein Modellgebäude für bezahlbaren Wohnraum und Geflüchtete in innovativer Holzbauweise errichtet. Die Idee des Wohnheims basiert auf einer anspruchsvollen Gestaltung, die zukünftige Veränderungen zulässt und durch diese gar bereichert wird. Dabei bildet ein klar gerasterter Grundriss mit tragenden Brettsperrholz-Wandscheiben und ein umschließendes Gerüst die Überlagerung mehrerer Raumprogramme ab und ermöglicht somit eine fluide Umnutzung des Gebäudes. Somit konnten sowohl die vorgeschriebene Wohnfläche pro geflüchtete Person von 7 Quadratmetern als auch die Richtwerte für sozial geförderten Wohnraum eingehalten werden. Durch einfache Umnutzung, hohe Vorfertigung und flexible Strukturen ist das Gebäude als langfristig anpassbares, „unfertiges“ Haus angelegt.
Planung: 2019-2021, Ausführung: 2022-2025
Standort: Im Hasenbühl, 71101 Schönaich
BGF/BRI: 1751 m² / 5909 m3
Bauherr: Gemeinde Schönaich
Team: Florian Kaiser, Guobin Shen, Matthias Stauch, Tim Kölle, Yanghao Shu
Foto: Brigida González
In der kleinen Gemeinde Schönaich in Baden-Württemberg wurde ein Modellgebäude für bezahlbaren Wohnraum und Geflüchtete in innovativer Holzbauweise errichtet. Die Idee des Wohnheims basiert auf einer anspruchsvollen Gestaltung, die zukünftige Veränderungen zulässt und durch diese gar bereichert wird. Dabei bildet ein klar gerasterter Grundriss mit tragenden Brettsperrholz-Wandscheiben und ein umschließendes Gerüst die Überlagerung mehrerer Raumprogramme ab und ermöglicht somit eine fluide Umnutzung des Gebäudes. Somit konnten sowohl die vorgeschriebene Wohnfläche pro geflüchtete Person von 7 Quadratmetern als auch die Richtwerte für sozial geförderten Wohnraum eingehalten werden. Durch einfache Umnutzung, hohe Vorfertigung und flexible Strukturen ist das Gebäude als langfristig anpassbares, „unfertiges“ Haus angelegt.
Planung: 2019-2021, Ausführung: 2022-2025
Standort: Im Hasenbühl, 71101 Schönaich
BGF/BRI: 1751 m² / 5909 m3
Bauherr: Gemeinde Schönaich
Team: Florian Kaiser, Guobin Shen, Matthias Stauch, Tim Kölle, Yanghao Shu
Foto: Brigida González
In der kleinen Gemeinde Schönaich in Baden-Württemberg wurde ein Modellgebäude für bezahlbaren Wohnraum und Geflüchtete in innovativer Holzbauweise errichtet. Die Idee des Wohnheims basiert auf einer anspruchsvollen Gestaltung, die zukünftige Veränderungen zulässt und durch diese gar bereichert wird. Dabei bildet ein klar gerasterter Grundriss mit tragenden Brettsperrholz-Wandscheiben und ein umschließendes Gerüst die Überlagerung mehrerer Raumprogramme ab und ermöglicht somit eine fluide Umnutzung des Gebäudes. Somit konnten sowohl die vorgeschriebene Wohnfläche pro geflüchtete Person von 7 Quadratmetern als auch die Richtwerte für sozial geförderten Wohnraum eingehalten werden. Durch einfache Umnutzung, hohe Vorfertigung und flexible Strukturen ist das Gebäude als langfristig anpassbares, „unfertiges“ Haus angelegt.
Planung: 2019-2021, Ausführung: 2022-2025
Standort: Im Hasenbühl, 71101 Schönaich
BGF/BRI: 1751 m² / 5909 m3
Bauherr: Gemeinde Schönaich
Team: Florian Kaiser, Guobin Shen, Matthias Stauch, Tim Kölle, Yanghao Shu
Foto: Brigida González
In der kleinen Gemeinde Schönaich in Baden-Württemberg wurde ein Modellgebäude für bezahlbaren Wohnraum und Geflüchtete in innovativer Holzbauweise errichtet. Die Idee des Wohnheims basiert auf einer anspruchsvollen Gestaltung, die zukünftige Veränderungen zulässt und durch diese gar bereichert wird. Dabei bildet ein klar gerasterter Grundriss mit tragenden Brettsperrholz-Wandscheiben und ein umschließendes Gerüst die Überlagerung mehrerer Raumprogramme ab und ermöglicht somit eine fluide Umnutzung des Gebäudes. Somit konnten sowohl die vorgeschriebene Wohnfläche pro geflüchtete Person von 7 Quadratmetern als auch die Richtwerte für sozial geförderten Wohnraum eingehalten werden. Durch einfache Umnutzung, hohe Vorfertigung und flexible Strukturen ist das Gebäude als langfristig anpassbares, „unfertiges“ Haus angelegt.
Planung: 2019-2021, Ausführung: 2022-2025
Standort: Im Hasenbühl, 71101 Schönaich
BGF/BRI: 1751 m² / 5909 m3
Bauherr: Gemeinde Schönaich
Team: Florian Kaiser, Guobin Shen, Matthias Stauch, Tim Kölle, Yanghao Shu
Foto: Brigida González
In der kleinen Gemeinde Schönaich in Baden-Württemberg wurde ein Modellgebäude für bezahlbaren Wohnraum und Geflüchtete in innovativer Holzbauweise errichtet. Die Idee des Wohnheims basiert auf einer anspruchsvollen Gestaltung, die zukünftige Veränderungen zulässt und durch diese gar bereichert wird. Dabei bildet ein klar gerasterter Grundriss mit tragenden Brettsperrholz-Wandscheiben und ein umschließendes Gerüst die Überlagerung mehrerer Raumprogramme ab und ermöglicht somit eine fluide Umnutzung des Gebäudes. Somit konnten sowohl die vorgeschriebene Wohnfläche pro geflüchtete Person von 7 Quadratmetern als auch die Richtwerte für sozial geförderten Wohnraum eingehalten werden. Durch einfache Umnutzung, hohe Vorfertigung und flexible Strukturen ist das Gebäude als langfristig anpassbares, „unfertiges“ Haus angelegt.
Planung: 2019-2021, Ausführung: 2022-2025
Standort: Im Hasenbühl, 71101 Schönaich
BGF/BRI: 1751 m² / 5909 m3
Bauherr: Gemeinde Schönaich
Team: Florian Kaiser, Guobin Shen, Matthias Stauch, Tim Kölle, Yanghao Shu
Foto: Brigida González
In der kleinen Gemeinde Schönaich in Baden-Württemberg wurde ein Modellgebäude für bezahlbaren Wohnraum und Geflüchtete in innovativer Holzbauweise errichtet. Die Idee des Wohnheims basiert auf einer anspruchsvollen Gestaltung, die zukünftige Veränderungen zulässt und durch diese gar bereichert wird. Dabei bildet ein klar gerasterter Grundriss mit tragenden Brettsperrholz-Wandscheiben und ein umschließendes Gerüst die Überlagerung mehrerer Raumprogramme ab und ermöglicht somit eine fluide Umnutzung des Gebäudes. Somit konnten sowohl die vorgeschriebene Wohnfläche pro geflüchtete Person von 7 Quadratmetern als auch die Richtwerte für sozial geförderten Wohnraum eingehalten werden. Durch einfache Umnutzung, hohe Vorfertigung und flexible Strukturen ist das Gebäude als langfristig anpassbares, „unfertiges“ Haus angelegt.
Planung: 2019-2021, Ausführung: 2022-2025
Standort: Im Hasenbühl, 71101 Schönaich
BGF/BRI: 1751 m² / 5909 m3
Bauherr: Gemeinde Schönaich
Team: Florian Kaiser, Guobin Shen, Matthias Stauch, Tim Kölle, Yanghao Shu
Foto: Brigida González
In der kleinen Gemeinde Schönaich in Baden-Württemberg wurde ein Modellgebäude für bezahlbaren Wohnraum und Geflüchtete in innovativer Holzbauweise errichtet. Die Idee des Wohnheims basiert auf einer anspruchsvollen Gestaltung, die zukünftige Veränderungen zulässt und durch diese gar bereichert wird. Dabei bildet ein klar gerasterter Grundriss mit tragenden Brettsperrholz-Wandscheiben und ein umschließendes Gerüst die Überlagerung mehrerer Raumprogramme ab und ermöglicht somit eine fluide Umnutzung des Gebäudes. Somit konnten sowohl die vorgeschriebene Wohnfläche pro geflüchtete Person von 7 Quadratmetern als auch die Richtwerte für sozial geförderten Wohnraum eingehalten werden. Durch einfache Umnutzung, hohe Vorfertigung und flexible Strukturen ist das Gebäude als langfristig anpassbares, „unfertiges“ Haus angelegt.
Planung: 2019-2021, Ausführung: 2022-2025
Standort: Im Hasenbühl, 71101 Schönaich
BGF/BRI: 1751 m² / 5909 m3
Bauherr: Gemeinde Schönaich
Team: Florian Kaiser, Guobin Shen, Matthias Stauch, Tim Kölle, Yanghao Shu
Foto: Brigida González
In der kleinen Gemeinde Schönaich in Baden-Württemberg wurde ein Modellgebäude für bezahlbaren Wohnraum und Geflüchtete in innovativer Holzbauweise errichtet. Die Idee des Wohnheims basiert auf einer anspruchsvollen Gestaltung, die zukünftige Veränderungen zulässt und durch diese gar bereichert wird. Dabei bildet ein klar gerasterter Grundriss mit tragenden Brettsperrholz-Wandscheiben und ein umschließendes Gerüst die Überlagerung mehrerer Raumprogramme ab und ermöglicht somit eine fluide Umnutzung des Gebäudes. Somit konnten sowohl die vorgeschriebene Wohnfläche pro geflüchtete Person von 7 Quadratmetern als auch die Richtwerte für sozial geförderten Wohnraum eingehalten werden. Durch einfache Umnutzung, hohe Vorfertigung und flexible Strukturen ist das Gebäude als langfristig anpassbares, „unfertiges“ Haus angelegt.
Planung: 2019-2021, Ausführung: 2022-2025
Standort: Im Hasenbühl, 71101 Schönaich
BGF/BRI: 1751 m² / 5909 m3
Bauherr: Gemeinde Schönaich
Team: Florian Kaiser, Guobin Shen, Matthias Stauch, Tim Kölle, Yanghao Shu
Foto: Brigida González
In der kleinen Gemeinde Schönaich in Baden-Württemberg wurde ein Modellgebäude für bezahlbaren Wohnraum und Geflüchtete in innovativer Holzbauweise errichtet. Die Idee des Wohnheims basiert auf einer anspruchsvollen Gestaltung, die zukünftige Veränderungen zulässt und durch diese gar bereichert wird. Dabei bildet ein klar gerasterter Grundriss mit tragenden Brettsperrholz-Wandscheiben und ein umschließendes Gerüst die Überlagerung mehrerer Raumprogramme ab und ermöglicht somit eine fluide Umnutzung des Gebäudes. Somit konnten sowohl die vorgeschriebene Wohnfläche pro geflüchtete Person von 7 Quadratmetern als auch die Richtwerte für sozial geförderten Wohnraum eingehalten werden. Durch einfache Umnutzung, hohe Vorfertigung und flexible Strukturen ist das Gebäude als langfristig anpassbares, „unfertiges“ Haus angelegt.
Planung: 2019-2021, Ausführung: 2022-2025
Standort: Im Hasenbühl, 71101 Schönaich
BGF/BRI: 1751 m² / 5909 m3
Bauherr: Gemeinde Schönaich
Team: Florian Kaiser, Guobin Shen, Matthias Stauch, Tim Kölle, Yanghao Shu
Foto: Brigida González
In der kleinen Gemeinde Schönaich in Baden-Württemberg wurde ein Modellgebäude für bezahlbaren Wohnraum und Geflüchtete in innovativer Holzbauweise errichtet. Die Idee des Wohnheims basiert auf einer anspruchsvollen Gestaltung, die zukünftige Veränderungen zulässt und durch diese gar bereichert wird. Dabei bildet ein klar gerasterter Grundriss mit tragenden Brettsperrholz-Wandscheiben und ein umschließendes Gerüst die Überlagerung mehrerer Raumprogramme ab und ermöglicht somit eine fluide Umnutzung des Gebäudes. Somit konnten sowohl die vorgeschriebene Wohnfläche pro geflüchtete Person von 7 Quadratmetern als auch die Richtwerte für sozial geförderten Wohnraum eingehalten werden. Durch einfache Umnutzung, hohe Vorfertigung und flexible Strukturen ist das Gebäude als langfristig anpassbares, „unfertiges“ Haus angelegt.
Planung: 2019-2021, Ausführung: 2022-2025
Standort: Im Hasenbühl, 71101 Schönaich
BGF/BRI: 1751 m² / 5909 m3
Bauherr: Gemeinde Schönaich
Team: Florian Kaiser, Guobin Shen, Matthias Stauch, Tim Kölle, Yanghao Shu
Foto: Brigida González
In der kleinen Gemeinde Schönaich in Baden-Württemberg wurde ein Modellgebäude für bezahlbaren Wohnraum und Geflüchtete in innovativer Holzbauweise errichtet. Die Idee des Wohnheims basiert auf einer anspruchsvollen Gestaltung, die zukünftige Veränderungen zulässt und durch diese gar bereichert wird. Dabei bildet ein klar gerasterter Grundriss mit tragenden Brettsperrholz-Wandscheiben und ein umschließendes Gerüst die Überlagerung mehrerer Raumprogramme ab und ermöglicht somit eine fluide Umnutzung des Gebäudes. Somit konnten sowohl die vorgeschriebene Wohnfläche pro geflüchtete Person von 7 Quadratmetern als auch die Richtwerte für sozial geförderten Wohnraum eingehalten werden. Durch einfache Umnutzung, hohe Vorfertigung und flexible Strukturen ist das Gebäude als langfristig anpassbares, „unfertiges“ Haus angelegt.
Planung: 2019-2021, Ausführung: 2022-2025
Standort: Im Hasenbühl, 71101 Schönaich
BGF/BRI: 1751 m² / 5909 m3
Bauherr: Gemeinde Schönaich
Team: Florian Kaiser, Guobin Shen, Matthias Stauch, Tim Kölle, Yanghao Shu
Foto: Brigida González
In der kleinen Gemeinde Schönaich in Baden-Württemberg wurde ein Modellgebäude für bezahlbaren Wohnraum und Geflüchtete in innovativer Holzbauweise errichtet. Die Idee des Wohnheims basiert auf einer anspruchsvollen Gestaltung, die zukünftige Veränderungen zulässt und durch diese gar bereichert wird. Dabei bildet ein klar gerasterter Grundriss mit tragenden Brettsperrholz-Wandscheiben und ein umschließendes Gerüst die Überlagerung mehrerer Raumprogramme ab und ermöglicht somit eine fluide Umnutzung des Gebäudes. Somit konnten sowohl die vorgeschriebene Wohnfläche pro geflüchtete Person von 7 Quadratmetern als auch die Richtwerte für sozial geförderten Wohnraum eingehalten werden. Durch einfache Umnutzung, hohe Vorfertigung und flexible Strukturen ist das Gebäude als langfristig anpassbares, „unfertiges“ Haus angelegt.
Planung: 2019-2021, Ausführung: 2022-2025
Standort: Im Hasenbühl, 71101 Schönaich
BGF/BRI: 1751 m² / 5909 m3
Bauherr: Gemeinde Schönaich
Team: Florian Kaiser, Guobin Shen, Matthias Stauch, Tim Kölle, Yanghao Shu
Foto: Brigida González
In der kleinen Gemeinde Schönaich in Baden-Württemberg wurde ein Modellgebäude für bezahlbaren Wohnraum und Geflüchtete in innovativer Holzbauweise errichtet. Die Idee des Wohnheims basiert auf einer anspruchsvollen Gestaltung, die zukünftige Veränderungen zulässt und durch diese gar bereichert wird. Dabei bildet ein klar gerasterter Grundriss mit tragenden Brettsperrholz-Wandscheiben und ein umschließendes Gerüst die Überlagerung mehrerer Raumprogramme ab und ermöglicht somit eine fluide Umnutzung des Gebäudes. Somit konnten sowohl die vorgeschriebene Wohnfläche pro geflüchtete Person von 7 Quadratmetern als auch die Richtwerte für sozial geförderten Wohnraum eingehalten werden. Durch einfache Umnutzung, hohe Vorfertigung und flexible Strukturen ist das Gebäude als langfristig anpassbares, „unfertiges“ Haus angelegt.
Planung: 2019-2021, Ausführung: 2022-2025
Standort: Im Hasenbühl, 71101 Schönaich
BGF/BRI: 1751 m² / 5909 m3
Bauherr: Gemeinde Schönaich
Team: Florian Kaiser, Guobin Shen, Matthias Stauch, Tim Kölle, Yanghao Shu
Foto: Brigida González
In der kleinen Gemeinde Schönaich in Baden-Württemberg wurde ein Modellgebäude für bezahlbaren Wohnraum und Geflüchtete in innovativer Holzbauweise errichtet. Die Idee des Wohnheims basiert auf einer anspruchsvollen Gestaltung, die zukünftige Veränderungen zulässt und durch diese gar bereichert wird. Dabei bildet ein klar gerasterter Grundriss mit tragenden Brettsperrholz-Wandscheiben und ein umschließendes Gerüst die Überlagerung mehrerer Raumprogramme ab und ermöglicht somit eine fluide Umnutzung des Gebäudes. Somit konnten sowohl die vorgeschriebene Wohnfläche pro geflüchtete Person von 7 Quadratmetern als auch die Richtwerte für sozial geförderten Wohnraum eingehalten werden. Durch einfache Umnutzung, hohe Vorfertigung und flexible Strukturen ist das Gebäude als langfristig anpassbares, „unfertiges“ Haus angelegt.
Planung: 2019-2021, Ausführung: 2022-2025
Standort: Im Hasenbühl, 71101 Schönaich
BGF/BRI: 1751 m² / 5909 m3
Bauherr: Gemeinde Schönaich
Team: Florian Kaiser, Guobin Shen, Matthias Stauch, Tim Kölle, Yanghao Shu
Foto: Brigida González
In der kleinen Gemeinde Schönaich in Baden-Württemberg wurde ein Modellgebäude für bezahlbaren Wohnraum und Geflüchtete in innovativer Holzbauweise errichtet. Die Idee des Wohnheims basiert auf einer anspruchsvollen Gestaltung, die zukünftige Veränderungen zulässt und durch diese gar bereichert wird. Dabei bildet ein klar gerasterter Grundriss mit tragenden Brettsperrholz-Wandscheiben und ein umschließendes Gerüst die Überlagerung mehrerer Raumprogramme ab und ermöglicht somit eine fluide Umnutzung des Gebäudes. Somit konnten sowohl die vorgeschriebene Wohnfläche pro geflüchtete Person von 7 Quadratmetern als auch die Richtwerte für sozial geförderten Wohnraum eingehalten werden. Durch einfache Umnutzung, hohe Vorfertigung und flexible Strukturen ist das Gebäude als langfristig anpassbares, „unfertiges“ Haus angelegt.
Planung: 2019-2021, Ausführung: 2022-2025
Standort: Im Hasenbühl, 71101 Schönaich
BGF/BRI: 1751 m² / 5909 m3
Bauherr: Gemeinde Schönaich
Team: Florian Kaiser, Guobin Shen, Matthias Stauch, Tim Kölle, Yanghao Shu
Foto: Brigida González
In der kleinen Gemeinde Schönaich in Baden-Württemberg wurde ein Modellgebäude für bezahlbaren Wohnraum und Geflüchtete in innovativer Holzbauweise errichtet. Die Idee des Wohnheims basiert auf einer anspruchsvollen Gestaltung, die zukünftige Veränderungen zulässt und durch diese gar bereichert wird. Dabei bildet ein klar gerasterter Grundriss mit tragenden Brettsperrholz-Wandscheiben und ein umschließendes Gerüst die Überlagerung mehrerer Raumprogramme ab und ermöglicht somit eine fluide Umnutzung des Gebäudes. Somit konnten sowohl die vorgeschriebene Wohnfläche pro geflüchtete Person von 7 Quadratmetern als auch die Richtwerte für sozial geförderten Wohnraum eingehalten werden. Durch einfache Umnutzung, hohe Vorfertigung und flexible Strukturen ist das Gebäude als langfristig anpassbares, „unfertiges“ Haus angelegt.
Planung: 2019-2021, Ausführung: 2022-2025
Standort: Im Hasenbühl, 71101 Schönaich
BGF/BRI: 1751 m² / 5909 m3
Bauherr: Gemeinde Schönaich
Team: Florian Kaiser, Guobin Shen, Matthias Stauch, Tim Kölle, Yanghao Shu
Foto: Brigida González
In der kleinen Gemeinde Schönaich in Baden-Württemberg wurde ein Modellgebäude für bezahlbaren Wohnraum und Geflüchtete in innovativer Holzbauweise errichtet. Die Idee des Wohnheims basiert auf einer anspruchsvollen Gestaltung, die zukünftige Veränderungen zulässt und durch diese gar bereichert wird. Dabei bildet ein klar gerasterter Grundriss mit tragenden Brettsperrholz-Wandscheiben und ein umschließendes Gerüst die Überlagerung mehrerer Raumprogramme ab und ermöglicht somit eine fluide Umnutzung des Gebäudes. Somit konnten sowohl die vorgeschriebene Wohnfläche pro geflüchtete Person von 7 Quadratmetern als auch die Richtwerte für sozial geförderten Wohnraum eingehalten werden. Durch einfache Umnutzung, hohe Vorfertigung und flexible Strukturen ist das Gebäude als langfristig anpassbares, „unfertiges“ Haus angelegt.
Planung: 2019-2021, Ausführung: 2022-2025
Standort: Im Hasenbühl, 71101 Schönaich
BGF/BRI: 1751 m² / 5909 m3
Bauherr: Gemeinde Schönaich
Team: Florian Kaiser, Guobin Shen, Matthias Stauch, Tim Kölle, Yanghao Shu
Foto: Brigida González
In der kleinen Gemeinde Schönaich in Baden-Württemberg wurde ein Modellgebäude für bezahlbaren Wohnraum und Geflüchtete in innovativer Holzbauweise errichtet. Die Idee des Wohnheims basiert auf einer anspruchsvollen Gestaltung, die zukünftige Veränderungen zulässt und durch diese gar bereichert wird. Dabei bildet ein klar gerasterter Grundriss mit tragenden Brettsperrholz-Wandscheiben und ein umschließendes Gerüst die Überlagerung mehrerer Raumprogramme ab und ermöglicht somit eine fluide Umnutzung des Gebäudes. Somit konnten sowohl die vorgeschriebene Wohnfläche pro geflüchtete Person von 7 Quadratmetern als auch die Richtwerte für sozial geförderten Wohnraum eingehalten werden. Durch einfache Umnutzung, hohe Vorfertigung und flexible Strukturen ist das Gebäude als langfristig anpassbares, „unfertiges“ Haus angelegt.
Planung: 2019-2021, Ausführung: 2022-2025
Standort: Im Hasenbühl, 71101 Schönaich
BGF/BRI: 1751 m² / 5909 m3
Bauherr: Gemeinde Schönaich
Team: Florian Kaiser, Guobin Shen, Matthias Stauch, Tim Kölle, Yanghao Shu
Die Christuskirche in Waiblingen wurde 1927 erbaut und zwischenzeitlich mehrfach erweitert und umgebaut. Mit Blick auf das 100-jährige Jubiläum soll nun der Kirchenraum saniert werden. Dabei wird der Bestand größtenteils erhalten und behutsam mit wenigen Maßnahmen ergänzt. Die energetische Sanierung basiert auf einem absoluten Low-Tech-Konzept und bei der Materialwahl wird auf nachwachsende Baustoffe mit reversiblen Fügungen zurückgegriffen.
Planung: 2024–2025, Ausführung: 2026–2027
Standort: Bismarckstraße 1, 71332 Waiblingen
BGF/BRI: 1140 m² / 5079 m3
Bauherr: Evangelisch-methodistische Kirche Waiblingen
Team: Florian Kaiser, Kilian Juraschitz, Emilia Evertz, Liska Langensteiner, Arisa Stiebritz
Modellfoto: Patrick Schneider
Die Christuskirche in Waiblingen wurde 1927 erbaut und zwischenzeitlich mehrfach erweitert und umgebaut. Mit Blick auf das 100-jährige Jubiläum soll nun der Kirchenraum saniert werden. Dabei wird der Bestand größtenteils erhalten und behutsam mit wenigen Maßnahmen ergänzt. Die energetische Sanierung basiert auf einem absoluten Low-Tech-Konzept und bei der Materialwahl wird auf nachwachsende Baustoffe mit reversiblen Fügungen zurückgegriffen.
Planung: 2024–2025, Ausführung: 2026–2027
Standort: Bismarckstraße 1, 71332 Waiblingen
BGF/BRI: 1140 m² / 5079 m3
Bauherr: Evangelisch-methodistische Kirche Waiblingen
Team: Florian Kaiser, Kilian Juraschitz, Emilia Evertz, Liska Langensteiner, Arisa Stiebritz
Die Christuskirche in Waiblingen wurde 1927 erbaut und zwischenzeitlich mehrfach erweitert und umgebaut. Mit Blick auf das 100-jährige Jubiläum soll nun der Kirchenraum saniert werden. Dabei wird der Bestand größtenteils erhalten und behutsam mit wenigen Maßnahmen ergänzt. Die energetische Sanierung basiert auf einem absoluten Low-Tech-Konzept und bei der Materialwahl wird auf nachwachsende Baustoffe mit reversiblen Fügungen zurückgegriffen.
Planung: 2024–2025, Ausführung: 2026–2027
Standort: Bismarckstraße 1, 71332 Waiblingen
BGF/BRI: 1140 m² / 5079 m3
Bauherr: Evangelisch-methodistische Kirche Waiblingen
Team: Florian Kaiser, Kilian Juraschitz, Emilia Evertz, Liska Langensteiner, Arisa Stiebritz
Modellfoto: Patrick Schneider
Das heterogen anmutende EnBW-Areal in Stuttgart-Stöckach hat seine Wurzeln in der industriellen Moderne und erfuhr ab den 1950er Jahren ständige Erweiterungs- und Umbaumaßnahmen. In einer prozesshaften Umgestaltung wurden die identitätsstiftenden Bestandsgebäude sorgfältig kategorisiert und auf eine spätere Umnutzung bewertet. Der Bestand wird behutsam durch Neubauten ergänzt oder wo möglich in Holzbauweise aufgestockt. An anderer Stelle bilden radikale doppelgeschossige Einschnitte im Erdgeschoss neue Zugänge in das zuvor hermetisch abgeriegelte Quartier. Die Entwurfshaltung beim Wettbewerbsbeitrag des Stöckach-Areals verfolgt somit weniger eine Ideologie der Heroisierung des Bestandes, sondern vielmehr eine pragmatische und dennoch radikale Integration der vorgefundenen Bausubstanz und somit die Kontinuität der Stadtgeschichte.
Wettbewerb 2019, 2. Preis
Standort: Hackstraße / Heinrich-Baumann-Straße, 70190 Stuttgart
BGF/BRI: 111.736 m² / 275.335 m3
Bauherr: EnBW Energie Baden-Württemberg AG
Team: Florian Kaiser, Guobin Shen, Kilian Juraschitz, Yannic Schröder, Esther Rodriguez, Ilter Ünal, Sergi Egea Bohn
Beratung nachhaltige Stadtplanung: Prof. Dr. Helmut Bott
Das heterogen anmutende EnBW-Areal in Stuttgart-Stöckach hat seine Wurzeln in der industriellen Moderne und erfuhr ab den 1950er Jahren ständige Erweiterungs- und Umbaumaßnahmen. In einer prozesshaften Umgestaltung wurden die identitätsstiftenden Bestandsgebäude sorgfältig kategorisiert und auf eine spätere Umnutzung bewertet. Der Bestand wird behutsam durch Neubauten ergänzt oder wo möglich in Holzbauweise aufgestockt. An anderer Stelle bilden radikale doppelgeschossige Einschnitte im Erdgeschoss neue Zugänge in das zuvor hermetisch abgeriegelte Quartier. Die Entwurfshaltung beim Wettbewerbsbeitrag des Stöckach-Areals verfolgt somit weniger eine Ideologie der Heroisierung des Bestandes, sondern vielmehr eine pragmatische und dennoch radikale Integration der vorgefundenen Bausubstanz und somit die Kontinuität der Stadtgeschichte.
Wettbewerb 2019, 2. Preis
Standort: Hackstraße / Heinrich-Baumann-Straße, 70190 Stuttgart
BGF/BRI: 111.736 m² / 275.335 m3
Bauherr: EnBW Energie Baden-Württemberg AG
Team: Florian Kaiser, Guobin Shen, Kilian Juraschitz, Yannic Schröder, Esther Rodriguez, Ilter Ünal, Sergi Egea Bohn
Beratung nachhaltige Stadtplanung: Prof. Dr. Helmut Bott
Visualisierung: April Studios
Das heterogen anmutende EnBW-Areal in Stuttgart-Stöckach hat seine Wurzeln in der industriellen Moderne und erfuhr ab den 1950er Jahren ständige Erweiterungs- und Umbaumaßnahmen. In einer prozesshaften Umgestaltung wurden die identitätsstiftenden Bestandsgebäude sorgfältig kategorisiert und auf eine spätere Umnutzung bewertet. Der Bestand wird behutsam durch Neubauten ergänzt oder wo möglich in Holzbauweise aufgestockt. An anderer Stelle bilden radikale doppelgeschossige Einschnitte im Erdgeschoss neue Zugänge in das zuvor hermetisch abgeriegelte Quartier. Die Entwurfshaltung beim Wettbewerbsbeitrag des Stöckach-Areals verfolgt somit weniger eine Ideologie der Heroisierung des Bestandes, sondern vielmehr eine pragmatische und dennoch radikale Integration der vorgefundenen Bausubstanz und somit die Kontinuität der Stadtgeschichte.
Wettbewerb 2019, 2. Preis
Standort: Hackstraße / Heinrich-Baumann-Straße, 70190 Stuttgart
BGF/BRI: 111.736 m² / 275.335 m3
Bauherr: EnBW Energie Baden-Württemberg AG
Team: Florian Kaiser, Guobin Shen, Kilian Juraschitz, Yannic Schröder, Esther Rodriguez, Ilter Ünal, Sergi Egea Bohn
Beratung nachhaltige Stadtplanung: Prof. Dr. Helmut Bott
Um auf immer knapper werdenden Wohnraum zu reagieren, werden beim Haus B neue Wohntypologien untersucht. Hierbei ist das Ziel, die individuelle Wohnfläche radikal zu reduzieren und gleichzeitig durch Gemeinschaftsflächen höhere Wohnqualität zu erreichen. Die beiden Mehrfamilienhäuser teilen sich eine gemeinsame außenliegende Erschließung, wodurch einerseits alle Geschosse barrierefrei erreichbar sind und andererseits ein offener Begegnungs- und Kommunikationsraum entsteht. Die Dachform bildet parallel die Topografie nach und bindet beide Häuser zusammen. Gemeinschaft entsteht und wird nach außen hin sichtbar.
Planung: 2019-2021 Ausführung 2021-2025
Standort: 73776 Altbach
BGF/BRI: 2100 m² / 4900 m3
Bauherr: Privat
Team: Florian Kaiser, Guobin Shen, Mattias Stauch, Esther Rodriguez
Um auf immer knapper werdenden Wohnraum zu reagieren, werden beim Haus B neue Wohntypologien untersucht. Hierbei ist das Ziel, die individuelle Wohnfläche radikal zu reduzieren und gleichzeitig durch Gemeinschaftsflächen höhere Wohnqualität zu erreichen. Die beiden Mehrfamilienhäuser teilen sich eine gemeinsame außenliegende Erschließung, wodurch einerseits alle Geschosse barrierefrei erreichbar sind und andererseits ein offener Begegnungs- und Kommunikationsraum entsteht. Die Dachform bildet parallel die Topografie nach und bindet beide Häuser zusammen. Gemeinschaft entsteht und wird nach außen hin sichtbar.
Planung: 2019-2021 Ausführung 2021-2025
Standort: 73776 Altbach
BGF/BRI: 2100 m² / 4900 m3
Bauherr: Privat
Team: Florian Kaiser, Guobin Shen, Mattias Stauch, Esther Rodriguez
Ein Mikrohaus in der Stadt? Das klingt nach einer schönen Idee, funktioniert jedoch leider in der Realität nicht. Die bisherigen Mikrohäuser können nur dann überleben, wenn sie von der umliegenden Landschaft profitieren. Beispielsweise auf einer grünen Wiese oder direkt am See. Innerhalb einer gewissen städtischen Dichte geht die Wohnqualität des herkömmlichen Mikrohauses verloren. Nicht so beim Mikrohofhaus. Zwar wird der thermisch gedämmte Raum auf ein absolutes Minimum von 7,5 m² reduziert, dafür besitzt es einen großen Wohngarten, der das Haus großzügig wirken lässt. Der Raum wird optisch bis zur Hofmauer wahrgenommen. Bei gutem Wetter verschmilzt das Haus bei geöffneten Türen mit dem Garten, dessen Brunnen eine wirksame Akustikmaßnahme gegen den Straßenlärm darstellt.
Wettbewerb 2017, 1. Preis
Realisierung 2018
Standort: Sternkreuzung Ludwigsburg
NUF: 7,3 m², inkl. Hof 35m²
Bauherr: Stadt Ludwigsburg
Team: Florian Kaiser, Guobin Shen, Hans-Christian Bäcker
Preise: Architizer A+Award: Shortlist; Raumpioniere: Wohnen auf kleinstem Raum, 2017: 1. Preis
Veröffentlichungen: Amber Sayah: Architekturstadt Stuttgart (ISBN-13: 978-3763028030), ArchDaily 18.04.2018, DBZ, 7/8 2018, AIT 7/8 2018, Baumeister 28.05.2018, L’Architecture d’Aujourd’hui 08/2018, Stuttgarter Zeitung 30.11.2017, LKZ 22.03.2018, MD 01/ 2018, LKZ 27.11.2017
Fotos: Nicolai Rapp
Ein Mikrohaus in der Stadt? Das klingt nach einer schönen Idee, funktioniert jedoch leider in der Realität nicht. Die bisherigen Mikrohäuser können nur dann überleben, wenn sie von der umliegenden Landschaft profitieren. Beispielsweise auf einer grünen Wiese oder direkt am See. Innerhalb einer gewissen städtischen Dichte geht die Wohnqualität des herkömmlichen Mikrohauses verloren. Nicht so beim Mikrohofhaus. Zwar wird der thermisch gedämmte Raum auf ein absolutes Minimum von 7,5 m² reduziert, dafür besitzt es einen großen Wohngarten, der das Haus großzügig wirken lässt. Der Raum wird optisch bis zur Hofmauer wahrgenommen. Bei gutem Wetter verschmilzt das Haus bei geöffneten Türen mit dem Garten, dessen Brunnen eine wirksame Akustikmaßnahme gegen den Straßenlärm darstellt.
Wettbewerb 2017, 1. Preis
Realisierung 2018
Standort: Sternkreuzung Ludwigsburg
NUF: 7,3 m², inkl. Hof 35m²
Bauherr: Stadt Ludwigsburg
Team: Florian Kaiser, Guobin Shen, Hans-Christian Bäcker
Preise: Architizer A+Award: Shortlist; Raumpioniere: Wohnen auf kleinstem Raum, 2017: 1. Preis
Veröffentlichungen: Amber Sayah: Architekturstadt Stuttgart (ISBN-13: 978-3763028030), ArchDaily 18.04.2018, DBZ, 7/8 2018, AIT 7/8 2018, Baumeister 28.05.2018, L’Architecture d’Aujourd’hui 08/2018, Stuttgarter Zeitung 30.11.2017, LKZ 22.03.2018, MD 01/ 2018, LKZ 27.11.2017
Fotos: Nicolai Rapp
Ein Mikrohaus in der Stadt? Das klingt nach einer schönen Idee, funktioniert jedoch leider in der Realität nicht. Die bisherigen Mikrohäuser können nur dann überleben, wenn sie von der umliegenden Landschaft profitieren. Beispielsweise auf einer grünen Wiese oder direkt am See. Innerhalb einer gewissen städtischen Dichte geht die Wohnqualität des herkömmlichen Mikrohauses verloren. Nicht so beim Mikrohofhaus. Zwar wird der thermisch gedämmte Raum auf ein absolutes Minimum von 7,5 m² reduziert, dafür besitzt es einen großen Wohngarten, der das Haus großzügig wirken lässt. Der Raum wird optisch bis zur Hofmauer wahrgenommen. Bei gutem Wetter verschmilzt das Haus bei geöffneten Türen mit dem Garten, dessen Brunnen eine wirksame Akustikmaßnahme gegen den Straßenlärm darstellt.
Wettbewerb 2017, 1. Preis
Realisierung 2018
Standort: Sternkreuzung Ludwigsburg
NUF: 7,3 m², inkl. Hof 35m²
Bauherr: Stadt Ludwigsburg
Team: Florian Kaiser, Guobin Shen, Hans-Christian Bäcker
Preise: Architizer A+Award: Shortlist; Raumpioniere: Wohnen auf kleinstem Raum, 2017: 1. Preis
Veröffentlichungen: Amber Sayah: Architekturstadt Stuttgart (ISBN-13: 978-3763028030), ArchDaily 18.04.2018, DBZ, 7/8 2018, AIT 7/8 2018, Baumeister 28.05.2018, L’Architecture d’Aujourd’hui 08/2018, Stuttgarter Zeitung 30.11.2017, LKZ 22.03.2018, MD 01/ 2018, LKZ 27.11.2017
Fotos: Nicolai Rapp
Ein Mikrohaus in der Stadt? Das klingt nach einer schönen Idee, funktioniert jedoch leider in der Realität nicht. Die bisherigen Mikrohäuser können nur dann überleben, wenn sie von der umliegenden Landschaft profitieren. Beispielsweise auf einer grünen Wiese oder direkt am See. Innerhalb einer gewissen städtischen Dichte geht die Wohnqualität des herkömmlichen Mikrohauses verloren. Nicht so beim Mikrohofhaus. Zwar wird der thermisch gedämmte Raum auf ein absolutes Minimum von 7,5 m² reduziert, dafür besitzt es einen großen Wohngarten, der das Haus großzügig wirken lässt. Der Raum wird optisch bis zur Hofmauer wahrgenommen. Bei gutem Wetter verschmilzt das Haus bei geöffneten Türen mit dem Garten, dessen Brunnen eine wirksame Akustikmaßnahme gegen den Straßenlärm darstellt.
Wettbewerb 2017, 1. Preis
Realisierung 2018
Standort: Sternkreuzung Ludwigsburg
NUF: 7,3 m², inkl. Hof 35m²
Bauherr: Stadt Ludwigsburg
Team: Florian Kaiser, Guobin Shen, Hans-Christian Bäcker
Preise: Architizer A+Award: Shortlist; Raumpioniere: Wohnen auf kleinstem Raum, 2017: 1. Preis
Veröffentlichungen: Amber Sayah: Architekturstadt Stuttgart (ISBN-13: 978-3763028030), ArchDaily 18.04.2018, DBZ, 7/8 2018, AIT 7/8 2018, Baumeister 28.05.2018, L’Architecture d’Aujourd’hui 08/2018, Stuttgarter Zeitung 30.11.2017, LKZ 22.03.2018, MD 01/ 2018, LKZ 27.11.2017
Fotos: Nicolai Rapp
Ein Mikrohaus in der Stadt? Das klingt nach einer schönen Idee, funktioniert jedoch leider in der Realität nicht. Die bisherigen Mikrohäuser können nur dann überleben, wenn sie von der umliegenden Landschaft profitieren. Beispielsweise auf einer grünen Wiese oder direkt am See. Innerhalb einer gewissen städtischen Dichte geht die Wohnqualität des herkömmlichen Mikrohauses verloren. Nicht so beim Mikrohofhaus. Zwar wird der thermisch gedämmte Raum auf ein absolutes Minimum von 7,5 m² reduziert, dafür besitzt es einen großen Wohngarten, der das Haus großzügig wirken lässt. Der Raum wird optisch bis zur Hofmauer wahrgenommen. Bei gutem Wetter verschmilzt das Haus bei geöffneten Türen mit dem Garten, dessen Brunnen eine wirksame Akustikmaßnahme gegen den Straßenlärm darstellt.
Wettbewerb 2017, 1. Preis
Realisierung 2018
Standort: Sternkreuzung Ludwigsburg
NUF: 7,3 m², inkl. Hof 35m²
Bauherr: Stadt Ludwigsburg
Team: Florian Kaiser, Guobin Shen, Hans-Christian Bäcker
Preise: Architizer A+Award: Shortlist; Raumpioniere: Wohnen auf kleinstem Raum, 2017: 1. Preis
Veröffentlichungen: Amber Sayah: Architekturstadt Stuttgart (ISBN-13: 978-3763028030), ArchDaily 18.04.2018, DBZ, 7/8 2018, AIT 7/8 2018, Baumeister 28.05.2018, L’Architecture d’Aujourd’hui 08/2018, Stuttgarter Zeitung 30.11.2017, LKZ 22.03.2018, MD 01/ 2018, LKZ 27.11.2017
Fotos: Nicolai Rapp
Ein Mikrohaus in der Stadt? Das klingt nach einer schönen Idee, funktioniert jedoch leider in der Realität nicht. Die bisherigen Mikrohäuser können nur dann überleben, wenn sie von der umliegenden Landschaft profitieren. Beispielsweise auf einer grünen Wiese oder direkt am See. Innerhalb einer gewissen städtischen Dichte geht die Wohnqualität des herkömmlichen Mikrohauses verloren. Nicht so beim Mikrohofhaus. Zwar wird der thermisch gedämmte Raum auf ein absolutes Minimum von 7,5 m² reduziert, dafür besitzt es einen großen Wohngarten, der das Haus großzügig wirken lässt. Der Raum wird optisch bis zur Hofmauer wahrgenommen. Bei gutem Wetter verschmilzt das Haus bei geöffneten Türen mit dem Garten, dessen Brunnen eine wirksame Akustikmaßnahme gegen den Straßenlärm darstellt.
Wettbewerb 2017, 1. Preis
Realisierung 2018
Standort: Sternkreuzung Ludwigsburg
NUF: 7,3 m², inkl. Hof 35m²
Bauherr: Stadt Ludwigsburg
Team: Florian Kaiser, Guobin Shen, Hans-Christian Bäcker
Preise: Architizer A+Award: Shortlist; Raumpioniere: Wohnen auf kleinstem Raum, 2017: 1. Preis
Veröffentlichungen: Amber Sayah: Architekturstadt Stuttgart (ISBN-13: 978-3763028030), ArchDaily 18.04.2018, DBZ, 7/8 2018, AIT 7/8 2018, Baumeister 28.05.2018, L’Architecture d’Aujourd’hui 08/2018, Stuttgarter Zeitung 30.11.2017, LKZ 22.03.2018, MD 01/ 2018, LKZ 27.11.2017
Fotos: Nicolai Rapp
Ein Mikrohaus in der Stadt? Das klingt nach einer schönen Idee, funktioniert jedoch leider in der Realität nicht. Die bisherigen Mikrohäuser können nur dann überleben, wenn sie von der umliegenden Landschaft profitieren. Beispielsweise auf einer grünen Wiese oder direkt am See. Innerhalb einer gewissen städtischen Dichte geht die Wohnqualität des herkömmlichen Mikrohauses verloren. Nicht so beim Mikrohofhaus. Zwar wird der thermisch gedämmte Raum auf ein absolutes Minimum von 7,5 m² reduziert, dafür besitzt es einen großen Wohngarten, der das Haus großzügig wirken lässt. Der Raum wird optisch bis zur Hofmauer wahrgenommen. Bei gutem Wetter verschmilzt das Haus bei geöffneten Türen mit dem Garten, dessen Brunnen eine wirksame Akustikmaßnahme gegen den Straßenlärm darstellt.
Wettbewerb 2017, 1. Preis
Realisierung 2018
Standort: Sternkreuzung Ludwigsburg
NUF: 7,3 m², inkl. Hof 35m²
Bauherr: Stadt Ludwigsburg
Team: Florian Kaiser, Guobin Shen, Hans-Christian Bäcker
Preise: Architizer A+Award: Shortlist; Raumpioniere: Wohnen auf kleinstem Raum, 2017: 1. Preis
Veröffentlichungen: Amber Sayah: Architekturstadt Stuttgart (ISBN-13: 978-3763028030), ArchDaily 18.04.2018, DBZ, 7/8 2018, AIT 7/8 2018, Baumeister 28.05.2018, L’Architecture d’Aujourd’hui 08/2018, Stuttgarter Zeitung 30.11.2017, LKZ 22.03.2018, MD 01/ 2018, LKZ 27.11.2017
Fotos: Nicolai Rapp
Ein Mikrohaus in der Stadt? Das klingt nach einer schönen Idee, funktioniert jedoch leider in der Realität nicht. Die bisherigen Mikrohäuser können nur dann überleben, wenn sie von der umliegenden Landschaft profitieren. Beispielsweise auf einer grünen Wiese oder direkt am See. Innerhalb einer gewissen städtischen Dichte geht die Wohnqualität des herkömmlichen Mikrohauses verloren. Nicht so beim Mikrohofhaus. Zwar wird der thermisch gedämmte Raum auf ein absolutes Minimum von 7,5 m² reduziert, dafür besitzt es einen großen Wohngarten, der das Haus großzügig wirken lässt. Der Raum wird optisch bis zur Hofmauer wahrgenommen. Bei gutem Wetter verschmilzt das Haus bei geöffneten Türen mit dem Garten, dessen Brunnen eine wirksame Akustikmaßnahme gegen den Straßenlärm darstellt.
Wettbewerb 2017, 1. Preis
Realisierung 2018
Standort: Sternkreuzung Ludwigsburg
NUF: 7,3 m², inkl. Hof 35m²
Bauherr: Stadt Ludwigsburg
Team: Florian Kaiser, Guobin Shen, Hans-Christian Bäcker
Preise: Architizer A+Award: Shortlist; Raumpioniere: Wohnen auf kleinstem Raum, 2017: 1. Preis
Veröffentlichungen: Amber Sayah: Architekturstadt Stuttgart (ISBN-13: 978-3763028030), ArchDaily 18.04.2018, DBZ, 7/8 2018, AIT 7/8 2018, Baumeister 28.05.2018, L’Architecture d’Aujourd’hui 08/2018, Stuttgarter Zeitung 30.11.2017, LKZ 22.03.2018, MD 01/ 2018, LKZ 27.11.2017
Fotos: Nicolai Rapp
Ein Mikrohaus in der Stadt? Das klingt nach einer schönen Idee, funktioniert jedoch leider in der Realität nicht. Die bisherigen Mikrohäuser können nur dann überleben, wenn sie von der umliegenden Landschaft profitieren. Beispielsweise auf einer grünen Wiese oder direkt am See. Innerhalb einer gewissen städtischen Dichte geht die Wohnqualität des herkömmlichen Mikrohauses verloren. Nicht so beim Mikrohofhaus. Zwar wird der thermisch gedämmte Raum auf ein absolutes Minimum von 7,5 m² reduziert, dafür besitzt es einen großen Wohngarten, der das Haus großzügig wirken lässt. Der Raum wird optisch bis zur Hofmauer wahrgenommen. Bei gutem Wetter verschmilzt das Haus bei geöffneten Türen mit dem Garten, dessen Brunnen eine wirksame Akustikmaßnahme gegen den Straßenlärm darstellt.
Wettbewerb 2017, 1. Preis
Realisierung 2018
Standort: Sternkreuzung Ludwigsburg
NUF: 7,3 m², inkl. Hof 35m²
Bauherr: Stadt Ludwigsburg
Team: Florian Kaiser, Guobin Shen, Hans-Christian Bäcker
Preise: Architizer A+Award: Shortlist; Raumpioniere: Wohnen auf kleinstem Raum, 2017: 1. Preis
Veröffentlichungen: Amber Sayah: Architekturstadt Stuttgart (ISBN-13: 978-3763028030), ArchDaily 18.04.2018, DBZ, 7/8 2018, AIT 7/8 2018, Baumeister 28.05.2018, L’Architecture d’Aujourd’hui 08/2018, Stuttgarter Zeitung 30.11.2017, LKZ 22.03.2018, MD 01/ 2018, LKZ 27.11.2017
Fotos: Nicolai Rapp
Ein Mikrohaus in der Stadt? Das klingt nach einer schönen Idee, funktioniert jedoch leider in der Realität nicht. Die bisherigen Mikrohäuser können nur dann überleben, wenn sie von der umliegenden Landschaft profitieren. Beispielsweise auf einer grünen Wiese oder direkt am See. Innerhalb einer gewissen städtischen Dichte geht die Wohnqualität des herkömmlichen Mikrohauses verloren. Nicht so beim Mikrohofhaus. Zwar wird der thermisch gedämmte Raum auf ein absolutes Minimum von 7,5 m² reduziert, dafür besitzt es einen großen Wohngarten, der das Haus großzügig wirken lässt. Der Raum wird optisch bis zur Hofmauer wahrgenommen. Bei gutem Wetter verschmilzt das Haus bei geöffneten Türen mit dem Garten, dessen Brunnen eine wirksame Akustikmaßnahme gegen den Straßenlärm darstellt.
Wettbewerb 2017, 1. Preis
Realisierung 2018
Standort: Sternkreuzung Ludwigsburg
NUF: 7,3 m², inkl. Hof 35m²
Bauherr: Stadt Ludwigsburg
Team: Florian Kaiser, Guobin Shen, Hans-Christian Bäcker
Preise: Architizer A+Award: Shortlist; Raumpioniere: Wohnen auf kleinstem Raum, 2017: 1. Preis
Veröffentlichungen: Amber Sayah: Architekturstadt Stuttgart (ISBN-13: 978-3763028030), ArchDaily 18.04.2018, DBZ, 7/8 2018, AIT 7/8 2018, Baumeister 28.05.2018, L’Architecture d’Aujourd’hui 08/2018, Stuttgarter Zeitung 30.11.2017, LKZ 22.03.2018, MD 01/ 2018, LKZ 27.11.2017
Fotos: Nicolai Rapp
Zusammen mit dem Stadtteilzentrum Michaelsplatz sollte das Wettbewerbsgebiet mit dem Hochhaus an der Kreuzung Schillerstraße / Mühlstraße als Knotenpunkt ausgebildet werden und neue Aufenthaltsmöglichkeiten für die Bewohner bieten. Durch Sanierung des Bestandsbaus erhält neben der thermischen Ertüchtigung auch eine neue Fassade. Umlaufende Balkone werten nicht nur die individuellen Wohnungen auf, sondern geben dem Turm auch ein neues Gesicht. Die besondere architektonische Ausformulierung des Obergeschosses schließt den Turm elegant ab.
Bei der Ertüchtigung bietet sich auch die Möglichkeit die Wohngrundrisse zu optimieren, um den neuen Anforderungen an zeitgenössischem Wohnen gerecht zu werden. Durch diese behutsamen Eingriffe erhalten die Grundrisse eine klare Struktur und eine größere Flexibilität und Vielfältigkeit an Wohntypologien. Die Verdrehung des umlaufenden Balkons im Vergleich zum Bestandsbau bietet vielzählige Vorteile. Einerseits entstehen so in jeder Wohneinheit unterschiedlich tiefe Balkone und andererseits kann so das Fluchttreppenhaus elegant integriert werden.
Europan 14 Wettbewerb 2017, 1. Preis
Planung: 2018 –
Standort: Aschaffenburg „Damm“, Mühlstraße
Projektgebiet: ca. 3,3 ha
BGF: 9500m²
Bauherr: GBW Gruppe
Team: Guobin Shen, Kilian Juraschitz
Veröffentlichungen: Bauwelt 1/2018
Zusammen mit dem Stadtteilzentrum Michaelsplatz sollte das Wettbewerbsgebiet mit dem Hochhaus an der Kreuzung Schillerstraße / Mühlstraße als Knotenpunkt ausgebildet werden und neue Aufenthaltsmöglichkeiten für die Bewohner bieten. Durch Sanierung des Bestandsbaus erhält neben der thermischen Ertüchtigung auch eine neue Fassade. Umlaufende Balkone werten nicht nur die individuellen Wohnungen auf, sondern geben dem Turm auch ein neues Gesicht. Die besondere architektonische Ausformulierung des Obergeschosses schließt den Turm elegant ab.
Bei der Ertüchtigung bietet sich auch die Möglichkeit die Wohngrundrisse zu optimieren, um den neuen Anforderungen an zeitgenössischem Wohnen gerecht zu werden. Durch diese behutsamen Eingriffe erhalten die Grundrisse eine klare Struktur und eine größere Flexibilität und Vielfältigkeit an Wohntypologien. Die Verdrehung des umlaufenden Balkons im Vergleich zum Bestandsbau bietet vielzählige Vorteile. Einerseits entstehen so in jeder Wohneinheit unterschiedlich tiefe Balkone und andererseits kann so das Fluchttreppenhaus elegant integriert werden.
Europan 14 Wettbewerb 2017, 1. Preis
Planung: 2018 –
Standort: Aschaffenburg „Damm“, Mühlstraße
Projektgebiet: ca. 3,3 ha
BGF: 9500m²
Bauherr: GBW Gruppe
Team: Guobin Shen, Kilian Juraschitz
Veröffentlichungen: Bauwelt 1/2018
Zusammen mit dem Stadtteilzentrum Michaelsplatz sollte das Wettbewerbsgebiet mit dem Hochhaus an der Kreuzung Schillerstraße / Mühlstraße als Knotenpunkt ausgebildet werden und neue Aufenthaltsmöglichkeiten für die Bewohner bieten. Durch Sanierung des Bestandsbaus erhält neben der thermischen Ertüchtigung auch eine neue Fassade. Umlaufende Balkone werten nicht nur die individuellen Wohnungen auf, sondern geben dem Turm auch ein neues Gesicht. Die besondere architektonische Ausformulierung des Obergeschosses schließt den Turm elegant ab.
Bei der Ertüchtigung bietet sich auch die Möglichkeit die Wohngrundrisse zu optimieren, um den neuen Anforderungen an zeitgenössischem Wohnen gerecht zu werden. Durch diese behutsamen Eingriffe erhalten die Grundrisse eine klare Struktur und eine größere Flexibilität und Vielfältigkeit an Wohntypologien. Die Verdrehung des umlaufenden Balkons im Vergleich zum Bestandsbau bietet vielzählige Vorteile. Einerseits entstehen so in jeder Wohneinheit unterschiedlich tiefe Balkone und andererseits kann so das Fluchttreppenhaus elegant integriert werden.
Europan 14 Wettbewerb 2017, 1. Preis
Planung: 2018 –
Standort: Aschaffenburg „Damm“, Mühlstraße
Projektgebiet: ca. 3,3 ha
BGF: 9500m²
Bauherr: GBW Gruppe
Team: Guobin Shen, Kilian Juraschitz
Veröffentlichungen: Bauwelt 1/2018
Zusammen mit dem Stadtteilzentrum Michaelsplatz sollte das Wettbewerbsgebiet mit dem Hochhaus an der Kreuzung Schillerstraße / Mühlstraße als Knotenpunkt ausgebildet werden und neue Aufenthaltsmöglichkeiten für die Bewohner bieten. Durch Sanierung des Bestandsbaus erhält neben der thermischen Ertüchtigung auch eine neue Fassade. Umlaufende Balkone werten nicht nur die individuellen Wohnungen auf, sondern geben dem Turm auch ein neues Gesicht. Die besondere architektonische Ausformulierung des Obergeschosses schließt den Turm elegant ab.
Bei der Ertüchtigung bietet sich auch die Möglichkeit die Wohngrundrisse zu optimieren, um den neuen Anforderungen an zeitgenössischem Wohnen gerecht zu werden. Durch diese behutsamen Eingriffe erhalten die Grundrisse eine klare Struktur und eine größere Flexibilität und Vielfältigkeit an Wohntypologien. Die Verdrehung des umlaufenden Balkons im Vergleich zum Bestandsbau bietet vielzählige Vorteile. Einerseits entstehen so in jeder Wohneinheit unterschiedlich tiefe Balkone und andererseits kann so das Fluchttreppenhaus elegant integriert werden.
Europan 14 Wettbewerb 2017, 1. Preis
Planung: 2018 –
Standort: Aschaffenburg „Damm“, Mühlstraße
Projektgebiet: ca. 3,3 ha
BGF: 9500m²
Bauherr: GBW Gruppe
Team: Guobin Shen, Kilian Juraschitz
Veröffentlichungen: Bauwelt 1/2018
Künstler unbekannt, Kuriositätenbox des Kaisers Qianlong, Qing-Dynastie
Das experimentelle Projekt lotet die Grenze zwischen einem Wohnhaus und einer zweckbefreiten Skulptur aus. Dazu wird auf eine thermische Hülle und feste Installationen verzichtet. Dennoch kann in der Wohnskulptur temporär gelebt und gearbeitet werden. Die Räume bieten eine größtmögliche Pluralität: Introvertierte, nach Innen gerichtete Räume, stehen im Kontrast zu extrovertierten Räumen mit Blick in den Garten. Die Belichtung erfolgt zenital von oben, seitlich oder von unten. Die Skulptur wurde auf einer Grundfläche von 5,7 x 5,7 Metern entwickelt, ist jedoch in der Größe frei skalierbar.
Planung: 2020, Ausführung: 2021
Standort: Rudolf-Breitscheid-Straße 47, 14482 Potsdam
BGF/BRI: 32 m² / 82 m3
Bauherr: Felix & Tobias Dippner
Team: Florian Kaiser, Guobin Shen, Yanghao Shu, Liwen Zhu
Das experimentelle Projekt lotet die Grenze zwischen einem Wohnhaus und einer zweckbefreiten Skulptur aus. Dazu wird auf eine thermische Hülle und feste Installationen verzichtet. Dennoch kann in der Wohnskulptur temporär gelebt und gearbeitet werden. Die Räume bieten eine größtmögliche Pluralität: Introvertierte, nach Innen gerichtete Räume, stehen im Kontrast zu extrovertierten Räumen mit Blick in den Garten. Die Belichtung erfolgt zenital von oben, seitlich oder von unten. Die Skulptur wurde auf einer Grundfläche von 5,7 x 5,7 Metern entwickelt, ist jedoch in der Größe frei skalierbar.
Planung: 2020, Ausführung: 2021
Standort: Rudolf-Breitscheid-Straße 47, 14482 Potsdam
BGF/BRI: 32 m² / 82 m3
Bauherr: Felix & Tobias Dippner
Team: Florian Kaiser, Guobin Shen, Yanghao Shu, Liwen Zhu
Lehmhaus, Achmas, Marokko
Räuberhöhle, Wuyi-Gebirge, China
Der Doppelkindergarten und die Tagesschule bilden gemeinsam ein 2-geschossiges pavillonartiges Gebäude. Im Obergeschoss befindet sich ausschließlich die Tagesschule, die um einen gemeinsamen Hof angeordnet ist und bildet somit eine eigene Welt. Durch die zusätzliche Belichtung über den Hof erhalten alle Aufenthaltsräume Licht von zwei Seiten. Entweder vom Hof und der außenliegenden Fassade, oder bei den Eckräumen über zwei Fassadenseiten. Der Hof dient nicht nur als Aussenschulzimmer für die kleineren Kinder, sondern auch als Verbindung zu den Außenanlagen im Erdgeschoss. Durch eine großzügige einläufige Treppe gelangt man direkt auf das Erdniveau. Durch geschickte Anordnung sind die Aufenthaltsräume flexibel teilbar und auch optimal miteinander verbunden. Die Schiebetüröffnungen entlang der Fassade liegen exakt gegenüber und bilden eine Enfilade. Im Gebäude ergeben sich somit vielfältige Rundläufe in der Erschließung sowie weite Ausblicke in die Landschaft.
Wettbewerb 2018
Standort: Solothurn, Schweiz
BGF/BRI: 1319 m² / 5014 m3
Bauherr: Stadt Solothurn
Team: Florian Kaiser, Guobin Shen,
Zuzana Chupacova, Kaina Hu
Visualisierung: Hans-Christian Bäcker, Tuan Nguyen
Landschaftsarchitektur: Markus S. Herthneck
Der Doppelkindergarten und die Tagesschule bilden gemeinsam ein 2-geschossiges pavillonartiges Gebäude. Im Obergeschoss befindet sich ausschließlich die Tagesschule, die um einen gemeinsamen Hof angeordnet ist und bildet somit eine eigene Welt. Durch die zusätzliche Belichtung über den Hof erhalten alle Aufenthaltsräume Licht von zwei Seiten. Entweder vom Hof und der außenliegenden Fassade, oder bei den Eckräumen über zwei Fassadenseiten. Der Hof dient nicht nur als Aussenschulzimmer für die kleineren Kinder, sondern auch als Verbindung zu den Außenanlagen im Erdgeschoss. Durch eine großzügige einläufige Treppe gelangt man direkt auf das Erdniveau. Durch geschickte Anordnung sind die Aufenthaltsräume flexibel teilbar und auch optimal miteinander verbunden. Die Schiebetüröffnungen entlang der Fassade liegen exakt gegenüber und bilden eine Enfilade. Im Gebäude ergeben sich somit vielfältige Rundläufe in der Erschließung sowie weite Ausblicke in die Landschaft.
Wettbewerb 2018
Standort: Solothurn, Schweiz
BGF/BRI: 1319 m² / 5014 m3
Bauherr: Stadt Solothurn
Team: Florian Kaiser, Guobin Shen,
Zuzana Chupacova, Kaina Hu
Visualisierung: Hans-Christian Bäcker, Tuan Nguyen
Landschaftsarchitektur: Markus S. Herthneck
Der Doppelkindergarten und die Tagesschule bilden gemeinsam ein 2-geschossiges pavillonartiges Gebäude. Im Obergeschoss befindet sich ausschließlich die Tagesschule, die um einen gemeinsamen Hof angeordnet ist und bildet somit eine eigene Welt. Durch die zusätzliche Belichtung über den Hof erhalten alle Aufenthaltsräume Licht von zwei Seiten. Entweder vom Hof und der außenliegenden Fassade, oder bei den Eckräumen über zwei Fassadenseiten. Der Hof dient nicht nur als Aussenschulzimmer für die kleineren Kinder, sondern auch als Verbindung zu den Außenanlagen im Erdgeschoss. Durch eine großzügige einläufige Treppe gelangt man direkt auf das Erdniveau. Durch geschickte Anordnung sind die Aufenthaltsräume flexibel teilbar und auch optimal miteinander verbunden. Die Schiebetüröffnungen entlang der Fassade liegen exakt gegenüber und bilden eine Enfilade. Im Gebäude ergeben sich somit vielfältige Rundläufe in der Erschließung sowie weite Ausblicke in die Landschaft.
Wettbewerb 2018
Standort: Solothurn, Schweiz
BGF/BRI: 1319 m² / 5014 m3
Bauherr: Stadt Solothurn
Team: Florian Kaiser, Guobin Shen,
Zuzana Chupacova, Kaina Hu
Visualisierung: Hans-Christian Bäcker, Tuan Nguyen
Landschaftsarchitektur: Markus S. Herthneck
Uffizien, Florenz
Sommerpalast, Peking
Der Verkaufsraum der Seeapotheke ist vierseitig in Eichenholz ausgekleidet und vermittelt somit das warme, geborgene Gefühl einer Jahrhunderte alten Apotheke. Gleichwohl ist der gesamte Raum klar geometrisch gegliedert und lebt von einem Wechselspiel aus Symmetrie und Asymmetrie. Die rahmenlosen Fenster lassen die Grenze zwischen Innen und Außen verschwimmen und so den Raum größer wirken. Ein großzügiges Sitzfenster lädt zum Verweilen ein. Besonderes Augenmerk beim Entwurf wurde auf die Abläufe innerhalb der Apotheke gelegt. So hat der Kunde vom Verkaufsraum aus durch ein Fenster direkten Blickkontakt ins Labor.
Planung: 2012-2013
Ausführung: 2013
Standort: Hauptstr. 8, 78351 Ludwigshafen
NUF: 200 m² davon 75 m² Verkaufsfläche
Bauherr: Pinelopi Argiti
Team: Florian Kaiser, Guobin Shen
Bauleitung: Ariel Wagner
Wuyi-Gebirge, China
Lehmhaus, Lamkatra, Marokko
Fujian Tulou, China
In Schorndorf im Remstal hat sich eine Wohnbaugenossenschaft gegründet, um so ihre Vision eines ökologischen und solidarischen Zusammenlebens wahrwerden zu lassen. Auf einem zentrumsnahen Grundstück in heterogenem Umfeld werden nachhaltige Wohngebäude mit 50 Wohneinheiten um eine ehemalige Hofstelle ergänzen. Vier neue, bis zu fünfgeschossige Wohnhäuser in Holzbauweise mit Strohballendämmung werden die heutige Obstbaumwiese säumen. Ob als Familie mit Kindern, älteres Paar oder als Wohngemeinschaft, ob als Mensch mit pflegerischem Unterstützungsbedarf oder als helfende Student:in – in der flexiblen Gebäudestruktur lassen sich unterschiedlichste Wohntypologien für die individuellen Lebensmodelle der Bewohner:innen realisieren.
Wettbewerb 2022, 1. Preis
Planung: 2023-2025 Ausführung 2026-2027
Standort: Schorndorf, Rems-Murr-Kreis
BGF/BRI: 5.004 m² / 13.296 m3
Bauherr: RemstalLeben eG
Team: Florian Kaiser, Guobin Shen, Kilian Juraschitz, Johannes Schreiner, Lisa Bohlmann, Florin Voh
In Schorndorf im Remstal hat sich eine Wohnbaugenossenschaft gegründet, um so ihre Vision eines ökologischen und solidarischen Zusammenlebens wahrwerden zu lassen. Auf einem zentrumsnahen Grundstück in heterogenem Umfeld werden nachhaltige Wohngebäude mit 50 Wohneinheiten um eine ehemalige Hofstelle ergänzen. Vier neue, bis zu fünfgeschossige Wohnhäuser in Holzbauweise mit Strohballendämmung werden die heutige Obstbaumwiese säumen. Ob als Familie mit Kindern, älteres Paar oder als Wohngemeinschaft, ob als Mensch mit pflegerischem Unterstützungsbedarf oder als helfende Student:in – in der flexiblen Gebäudestruktur lassen sich unterschiedlichste Wohntypologien für die individuellen Lebensmodelle der Bewohner:innen realisieren.
Wettbewerb 2022, 1. Preis
Planung: 2023-2025 Ausführung 2026-2027
Standort: Schorndorf, Rems-Murr-Kreis
BGF/BRI: 5.004 m² / 13.296 m3
Bauherr: RemstalLeben eG
Team: Florian Kaiser, Guobin Shen, Kilian Juraschitz, Johannes Schreiner, Lisa Bohlmann, Florin Voh
In Schorndorf im Remstal hat sich eine Wohnbaugenossenschaft gegründet, um so ihre Vision eines ökologischen und solidarischen Zusammenlebens wahrwerden zu lassen. Auf einem zentrumsnahen Grundstück in heterogenem Umfeld werden nachhaltige Wohngebäude mit 50 Wohneinheiten um eine ehemalige Hofstelle ergänzen. Vier neue, bis zu fünfgeschossige Wohnhäuser in Holzbauweise mit Strohballendämmung werden die heutige Obstbaumwiese säumen. Ob als Familie mit Kindern, älteres Paar oder als Wohngemeinschaft, ob als Mensch mit pflegerischem Unterstützungsbedarf oder als helfende Student:in – in der flexiblen Gebäudestruktur lassen sich unterschiedlichste Wohntypologien für die individuellen Lebensmodelle der Bewohner:innen realisieren.
Wettbewerb 2022, 1. Preis
Planung: 2023-2025 Ausführung 2026-2027
Standort: Schorndorf, Rems-Murr-Kreis
BGF/BRI: 5.004 m² / 13.296 m3
Bauherr: RemstalLeben eG
Team: Florian Kaiser, Guobin Shen, Kilian Juraschitz, Johannes Schreiner, Lisa Bohlmann, Florin Voh
In Schorndorf im Remstal hat sich eine Wohnbaugenossenschaft gegründet, um so ihre Vision eines ökologischen und solidarischen Zusammenlebens wahrwerden zu lassen. Auf einem zentrumsnahen Grundstück in heterogenem Umfeld werden nachhaltige Wohngebäude mit 50 Wohneinheiten um eine ehemalige Hofstelle ergänzen. Vier neue, bis zu fünfgeschossige Wohnhäuser in Holzbauweise mit Strohballendämmung werden die heutige Obstbaumwiese säumen. Ob als Familie mit Kindern, älteres Paar oder als Wohngemeinschaft, ob als Mensch mit pflegerischem Unterstützungsbedarf oder als helfende Student:in – in der flexiblen Gebäudestruktur lassen sich unterschiedlichste Wohntypologien für die individuellen Lebensmodelle der Bewohner:innen realisieren.
Wettbewerb 2022, 1. Preis
Planung: 2023-2025 Ausführung 2026-2027
Standort: Schorndorf, Rems-Murr-Kreis
BGF/BRI: 5.004 m² / 13.296 m3
Bauherr: RemstalLeben eG
Team: Florian Kaiser, Guobin Shen, Kilian Juraschitz, Johannes Schreiner, Lisa Bohlmann, Florin Voh
Die gesamte Gebäudehülle des Doppelhauses wird aus einem vorgefertigten Element, bestehend aus Baustroh und Lehmputz, ausgeführt. Diese Konstruktion aus lokalen und umweltschonenden Baustoffen erfüllt hervorragende Eigenschaften bezüglich der Dämmung und des Raumklimas. Um die Bodenplatte dieser empfindlichen Bauweise vor Wasser zu schützen, wird das Gebäude angehoben. Diese konstruktiv notwendige Aufständerung wird allerdings überhöht und geschosshoch ausgeführt. Somit entsteht ein offener Raum, der von den Bewohnern angeeignet werden kann und beispielsweise als Werkstatt oder als Sommerküche fungiert. Somit vergrößert sich das Gebäude im Sommer um ein gesamtes Geschoss. Die punktsymmetrische räumliche Verschränkung der beiden Doppelhaushälften reagiert auf Blickbezüge in der Umgebung, sowie die Orientierung zum Garten.
Planung: 2018-2019, Ausführung: 2020-2023
Standort: Keltergasse 5, 74397 Pfaffenhofen
BGF/BRI: 521 m² / 2.368 m3
Bauherr: privat
Team: Florian Kaiser, Guobin Shen, Matthias Stauch, Kilian Juraschitz, Leonie Stier, Patrick Schneider
Foto: Patrick Schneider
Die gesamte Gebäudehülle des Doppelhauses wird aus einem vorgefertigten Element, bestehend aus Baustroh und Lehmputz, ausgeführt. Diese Konstruktion aus lokalen und umweltschonenden Baustoffen erfüllt hervorragende Eigenschaften bezüglich der Dämmung und des Raumklimas. Um die Bodenplatte dieser empfindlichen Bauweise vor Wasser zu schützen, wird das Gebäude angehoben. Diese konstruktiv notwendige Aufständerung wird allerdings überhöht und geschosshoch ausgeführt. Somit entsteht ein offener Raum, der von den Bewohnern angeeignet werden kann und beispielsweise als Werkstatt oder als Sommerküche fungiert. Somit vergrößert sich das Gebäude im Sommer um ein gesamtes Geschoss. Die punktsymmetrische räumliche Verschränkung der beiden Doppelhaushälften reagiert auf Blickbezüge in der Umgebung, sowie die Orientierung zum Garten.
Planung: 2018-2019, Ausführung: 2020-2023
Standort: Keltergasse 5, 74397 Pfaffenhofen
BGF/BRI: 521 m² / 2.368 m3
Bauherr: privat
Team: Florian Kaiser, Guobin Shen, Matthias Stauch, Kilian Juraschitz, Leonie Stier, Patrick Schneider
Alfonso X el Sabio, Cantiga de Santa Maria, 1280
Die gesamte Gebäudehülle des Doppelhauses wird aus einem vorgefertigten Element, bestehend aus Baustroh und Lehmputz, ausgeführt. Diese Konstruktion aus lokalen und umweltschonenden Baustoffen erfüllt hervorragende Eigenschaften bezüglich der Dämmung und des Raumklimas. Um die Bodenplatte dieser empfindlichen Bauweise vor Wasser zu schützen, wird das Gebäude angehoben. Diese konstruktiv notwendige Aufständerung wird allerdings überhöht und geschosshoch ausgeführt. Somit entsteht ein offener Raum, der von den Bewohnern angeeignet werden kann und beispielsweise als Werkstatt oder als Sommerküche fungiert. Somit vergrößert sich das Gebäude im Sommer um ein gesamtes Geschoss. Die punktsymmetrische räumliche Verschränkung der beiden Doppelhaushälften reagiert auf Blickbezüge in der Umgebung, sowie die Orientierung zum Garten.
Planung: 2018-2019, Ausführung: 2020-2023
Standort: Keltergasse 5, 74397 Pfaffenhofen
BGF/BRI: 521 m² / 2.368 m3
Bauherr: privat
Team: Florian Kaiser, Guobin Shen, Matthias Stauch, Kilian Juraschitz, Leonie Stier, Patrick Schneider
Foto: Brigida González
Die gesamte Gebäudehülle des Doppelhauses wird aus einem vorgefertigten Element, bestehend aus Baustroh und Lehmputz, ausgeführt. Diese Konstruktion aus lokalen und umweltschonenden Baustoffen erfüllt hervorragende Eigenschaften bezüglich der Dämmung und des Raumklimas. Um die Bodenplatte dieser empfindlichen Bauweise vor Wasser zu schützen, wird das Gebäude angehoben. Diese konstruktiv notwendige Aufständerung wird allerdings überhöht und geschosshoch ausgeführt. Somit entsteht ein offener Raum, der von den Bewohnern angeeignet werden kann und beispielsweise als Werkstatt oder als Sommerküche fungiert. Somit vergrößert sich das Gebäude im Sommer um ein gesamtes Geschoss. Die punktsymmetrische räumliche Verschränkung der beiden Doppelhaushälften reagiert auf Blickbezüge in der Umgebung, sowie die Orientierung zum Garten.
Planung: 2018-2019, Ausführung: 2020-2023
Standort: Keltergasse 5, 74397 Pfaffenhofen
BGF/BRI: 521 m² / 2.368 m3
Bauherr: privat
Team: Florian Kaiser, Guobin Shen, Matthias Stauch, Kilian Juraschitz, Leonie Stier, Patrick Schneider
Die gesamte Gebäudehülle des Doppelhauses wird aus einem vorgefertigten Element, bestehend aus Baustroh und Lehmputz, ausgeführt. Diese Konstruktion aus lokalen und umweltschonenden Baustoffen erfüllt hervorragende Eigenschaften bezüglich der Dämmung und des Raumklimas. Um die Bodenplatte dieser empfindlichen Bauweise vor Wasser zu schützen, wird das Gebäude angehoben. Diese konstruktiv notwendige Aufständerung wird allerdings überhöht und geschosshoch ausgeführt. Somit entsteht ein offener Raum, der von den Bewohnern angeeignet werden kann und beispielsweise als Werkstatt oder als Sommerküche fungiert. Somit vergrößert sich das Gebäude im Sommer um ein gesamtes Geschoss. Die punktsymmetrische räumliche Verschränkung der beiden Doppelhaushälften reagiert auf Blickbezüge in der Umgebung, sowie die Orientierung zum Garten.
Planung: 2018-2019, Ausführung: 2020-2023
Standort: Keltergasse 5, 74397 Pfaffenhofen
BGF/BRI: 521 m² / 2.368 m3
Bauherr: privat
Team: Florian Kaiser, Guobin Shen, Matthias Stauch, Kilian Juraschitz, Leonie Stier, Patrick Schneider
Die gesamte Gebäudehülle des Doppelhauses wird aus einem vorgefertigten Element, bestehend aus Baustroh und Lehmputz, ausgeführt. Diese Konstruktion aus lokalen und umweltschonenden Baustoffen erfüllt hervorragende Eigenschaften bezüglich der Dämmung und des Raumklimas. Um die Bodenplatte dieser empfindlichen Bauweise vor Wasser zu schützen, wird das Gebäude angehoben. Diese konstruktiv notwendige Aufständerung wird allerdings überhöht und geschosshoch ausgeführt. Somit entsteht ein offener Raum, der von den Bewohnern angeeignet werden kann und beispielsweise als Werkstatt oder als Sommerküche fungiert. Somit vergrößert sich das Gebäude im Sommer um ein gesamtes Geschoss. Die punktsymmetrische räumliche Verschränkung der beiden Doppelhaushälften reagiert auf Blickbezüge in der Umgebung, sowie die Orientierung zum Garten.
Planung: 2018-2019, Ausführung: 2020-2023
Standort: Keltergasse 5, 74397 Pfaffenhofen
BGF/BRI: 521 m² / 2.368 m3
Bauherr: privat
Team: Florian Kaiser, Guobin Shen, Matthias Stauch, Kilian Juraschitz, Leonie Stier, Patrick Schneider
Die gesamte Gebäudehülle des Doppelhauses wird aus einem vorgefertigten Element, bestehend aus Baustroh und Lehmputz, ausgeführt. Diese Konstruktion aus lokalen und umweltschonenden Baustoffen erfüllt hervorragende Eigenschaften bezüglich der Dämmung und des Raumklimas. Um die Bodenplatte dieser empfindlichen Bauweise vor Wasser zu schützen, wird das Gebäude angehoben. Diese konstruktiv notwendige Aufständerung wird allerdings überhöht und geschosshoch ausgeführt. Somit entsteht ein offener Raum, der von den Bewohnern angeeignet werden kann und beispielsweise als Werkstatt oder als Sommerküche fungiert. Somit vergrößert sich das Gebäude im Sommer um ein gesamtes Geschoss. Die punktsymmetrische räumliche Verschränkung der beiden Doppelhaushälften reagiert auf Blickbezüge in der Umgebung, sowie die Orientierung zum Garten.
Planung: 2018-2019, Ausführung: 2020-2023
Standort: Keltergasse 5, 74397 Pfaffenhofen
BGF/BRI: 521 m² / 2.368 m3
Bauherr: privat
Team: Florian Kaiser, Guobin Shen, Matthias Stauch, Kilian Juraschitz, Leonie Stier, Patrick Schneider
Foto: Brigida González
Die gesamte Gebäudehülle des Doppelhauses wird aus einem vorgefertigten Element, bestehend aus Baustroh und Lehmputz, ausgeführt. Diese Konstruktion aus lokalen und umweltschonenden Baustoffen erfüllt hervorragende Eigenschaften bezüglich der Dämmung und des Raumklimas. Um die Bodenplatte dieser empfindlichen Bauweise vor Wasser zu schützen, wird das Gebäude angehoben. Diese konstruktiv notwendige Aufständerung wird allerdings überhöht und geschosshoch ausgeführt. Somit entsteht ein offener Raum, der von den Bewohnern angeeignet werden kann und beispielsweise als Werkstatt oder als Sommerküche fungiert. Somit vergrößert sich das Gebäude im Sommer um ein gesamtes Geschoss. Die punktsymmetrische räumliche Verschränkung der beiden Doppelhaushälften reagiert auf Blickbezüge in der Umgebung, sowie die Orientierung zum Garten.
Planung: 2018-2019, Ausführung: 2020-2023
Standort: Keltergasse 5, 74397 Pfaffenhofen
BGF/BRI: 521 m² / 2.368 m3
Bauherr: privat
Team: Florian Kaiser, Guobin Shen, Matthias Stauch, Kilian Juraschitz, Leonie Stier, Patrick Schneider
Foto: Brigida González
Die gesamte Gebäudehülle des Doppelhauses wird aus einem vorgefertigten Element, bestehend aus Baustroh und Lehmputz, ausgeführt. Diese Konstruktion aus lokalen und umweltschonenden Baustoffen erfüllt hervorragende Eigenschaften bezüglich der Dämmung und des Raumklimas. Um die Bodenplatte dieser empfindlichen Bauweise vor Wasser zu schützen, wird das Gebäude angehoben. Diese konstruktiv notwendige Aufständerung wird allerdings überhöht und geschosshoch ausgeführt. Somit entsteht ein offener Raum, der von den Bewohnern angeeignet werden kann und beispielsweise als Werkstatt oder als Sommerküche fungiert. Somit vergrößert sich das Gebäude im Sommer um ein gesamtes Geschoss. Die punktsymmetrische räumliche Verschränkung der beiden Doppelhaushälften reagiert auf Blickbezüge in der Umgebung, sowie die Orientierung zum Garten.
Planung: 2018-2019, Ausführung: 2020-2023
Standort: Keltergasse 5, 74397 Pfaffenhofen
BGF/BRI: 521 m² / 2.368 m3
Bauherr: privat
Team: Florian Kaiser, Guobin Shen, Matthias Stauch, Kilian Juraschitz, Leonie Stier, Patrick Schneider
Foto: Brigida González
Die gesamte Gebäudehülle des Doppelhauses wird aus einem vorgefertigten Element, bestehend aus Baustroh und Lehmputz, ausgeführt. Diese Konstruktion aus lokalen und umweltschonenden Baustoffen erfüllt hervorragende Eigenschaften bezüglich der Dämmung und des Raumklimas. Um die Bodenplatte dieser empfindlichen Bauweise vor Wasser zu schützen, wird das Gebäude angehoben. Diese konstruktiv notwendige Aufständerung wird allerdings überhöht und geschosshoch ausgeführt. Somit entsteht ein offener Raum, der von den Bewohnern angeeignet werden kann und beispielsweise als Werkstatt oder als Sommerküche fungiert. Somit vergrößert sich das Gebäude im Sommer um ein gesamtes Geschoss. Die punktsymmetrische räumliche Verschränkung der beiden Doppelhaushälften reagiert auf Blickbezüge in der Umgebung, sowie die Orientierung zum Garten.
Planung: 2018-2019, Ausführung: 2020-2023
Standort: Keltergasse 5, 74397 Pfaffenhofen
BGF/BRI: 521 m² / 2.368 m3
Bauherr: privat
Team: Florian Kaiser, Guobin Shen, Matthias Stauch, Kilian Juraschitz, Leonie Stier, Patrick Schneider
Foto: Brigida González
Die Turn- und Festhalle in Ingerkingen wurde in den 1960er Jahren erbaut und später mehrmals erweitert und umgebaut. Um den Anforderungen an eine zeitgenössische Einfeldhalle zu genügen wurde die Halle im südlichen und östlichen Bereich zurückgebaut und vergrößert. Um den Abriss auf ein Minimum zu reduzieren, wurden Fundamente und Bodenplatte, Decken und die massiven Wände im nördlichen Teil und der straßenseitige Bühnentrakt in die Planung integriert. So konnten insgesamt 60 Prozent der Baumasse erhalten werden. Dies konnte nur durch die Entwicklung eines innovativen Tragwerks realisiert werden. Ein einhüftiger Zweigelenkrahmen aus Brettschichtholz ist auf dem Achsraster der bestehenden Stahlbetonstützen ausgerichtet und leitet aufgrund seiner Geometrie lediglich einen Teil der Lasten in den Bestand ein.
Planung: 2020–2021, Ausführung: 2022–2024
Standort: Schlägweidestr. 3, 88433 Ingerkingen
BGF/BRI: 1584 m² / 7921 m3
Bauherr: Gemeinde Schemmerhofen
Team: Florian Kaiser, Guobin Shen, Kilian Juraschitz, Matthias Stauch, Tim Kölle, Patrick Schneider
Foto: Brigida González
Die Turn- und Festhalle in Ingerkingen wurde in den 1960er Jahren erbaut und später mehrmals erweitert und umgebaut. Um den Anforderungen an eine zeitgenössische Einfeldhalle zu genügen wurde die Halle im südlichen und östlichen Bereich zurückgebaut und vergrößert. Um den Abriss auf ein Minimum zu reduzieren, wurden Fundamente und Bodenplatte, Decken und die massiven Wände im nördlichen Teil und der straßenseitige Bühnentrakt in die Planung integriert. So konnten insgesamt 60 Prozent der Baumasse erhalten werden. Dies konnte nur durch die Entwicklung eines innovativen Tragwerks realisiert werden. Ein einhüftiger Zweigelenkrahmen aus Brettschichtholz ist auf dem Achsraster der bestehenden Stahlbetonstützen ausgerichtet und leitet aufgrund seiner Geometrie lediglich einen Teil der Lasten in den Bestand ein.
Planung: 2020–2021, Ausführung: 2022–2024
Standort: Schlägweidestr. 3, 88433 Ingerkingen
BGF/BRI: 1584 m² / 7921 m3
Bauherr: Gemeinde Schemmerhofen
Team: Florian Kaiser, Guobin Shen, Kilian Juraschitz, Matthias Stauch, Tim Kölle, Patrick Schneider
Foto: Brigida González
Die Turn- und Festhalle in Ingerkingen wurde in den 1960er Jahren erbaut und später mehrmals erweitert und umgebaut. Um den Anforderungen an eine zeitgenössische Einfeldhalle zu genügen wurde die Halle im südlichen und östlichen Bereich zurückgebaut und vergrößert. Um den Abriss auf ein Minimum zu reduzieren, wurden Fundamente und Bodenplatte, Decken und die massiven Wände im nördlichen Teil und der straßenseitige Bühnentrakt in die Planung integriert. So konnten insgesamt 60 Prozent der Baumasse erhalten werden. Dies konnte nur durch die Entwicklung eines innovativen Tragwerks realisiert werden. Ein einhüftiger Zweigelenkrahmen aus Brettschichtholz ist auf dem Achsraster der bestehenden Stahlbetonstützen ausgerichtet und leitet aufgrund seiner Geometrie lediglich einen Teil der Lasten in den Bestand ein.
Planung: 2020–2021, Ausführung: 2022–2024
Standort: Schlägweidestr. 3, 88433 Ingerkingen
BGF/BRI: 1584 m² / 7921 m3
Bauherr: Gemeinde Schemmerhofen
Team: Florian Kaiser, Guobin Shen, Kilian Juraschitz, Matthias Stauch, Tim Kölle, Patrick Schneider
Foto: Brigida González
Die Turn- und Festhalle in Ingerkingen wurde in den 1960er Jahren erbaut und später mehrmals erweitert und umgebaut. Um den Anforderungen an eine zeitgenössische Einfeldhalle zu genügen wurde die Halle im südlichen und östlichen Bereich zurückgebaut und vergrößert. Um den Abriss auf ein Minimum zu reduzieren, wurden Fundamente und Bodenplatte, Decken und die massiven Wände im nördlichen Teil und der straßenseitige Bühnentrakt in die Planung integriert. So konnten insgesamt 60 Prozent der Baumasse erhalten werden. Dies konnte nur durch die Entwicklung eines innovativen Tragwerks realisiert werden. Ein einhüftiger Zweigelenkrahmen aus Brettschichtholz ist auf dem Achsraster der bestehenden Stahlbetonstützen ausgerichtet und leitet aufgrund seiner Geometrie lediglich einen Teil der Lasten in den Bestand ein.
Planung: 2020–2021, Ausführung: 2022–2024
Standort: Schlägweidestr. 3, 88433 Ingerkingen
BGF/BRI: 1584 m² / 7921 m3
Bauherr: Gemeinde Schemmerhofen
Team: Florian Kaiser, Guobin Shen, Kilian Juraschitz, Matthias Stauch, Tim Kölle, Patrick Schneider
Foto: Brigida González
Die Turn- und Festhalle in Ingerkingen wurde in den 1960er Jahren erbaut und später mehrmals erweitert und umgebaut. Um den Anforderungen an eine zeitgenössische Einfeldhalle zu genügen wurde die Halle im südlichen und östlichen Bereich zurückgebaut und vergrößert. Um den Abriss auf ein Minimum zu reduzieren, wurden Fundamente und Bodenplatte, Decken und die massiven Wände im nördlichen Teil und der straßenseitige Bühnentrakt in die Planung integriert. So konnten insgesamt 60 Prozent der Baumasse erhalten werden. Dies konnte nur durch die Entwicklung eines innovativen Tragwerks realisiert werden. Ein einhüftiger Zweigelenkrahmen aus Brettschichtholz ist auf dem Achsraster der bestehenden Stahlbetonstützen ausgerichtet und leitet aufgrund seiner Geometrie lediglich einen Teil der Lasten in den Bestand ein.
Planung: 2020–2021, Ausführung: 2022–2024
Standort: Schlägweidestr. 3, 88433 Ingerkingen
BGF/BRI: 1584 m² / 7921 m3
Bauherr: Gemeinde Schemmerhofen
Team: Florian Kaiser, Guobin Shen, Kilian Juraschitz, Matthias Stauch, Tim Kölle, Patrick Schneider
Foto: Brigida González
Die Turn- und Festhalle in Ingerkingen wurde in den 1960er Jahren erbaut und später mehrmals erweitert und umgebaut. Um den Anforderungen an eine zeitgenössische Einfeldhalle zu genügen wurde die Halle im südlichen und östlichen Bereich zurückgebaut und vergrößert. Um den Abriss auf ein Minimum zu reduzieren, wurden Fundamente und Bodenplatte, Decken und die massiven Wände im nördlichen Teil und der straßenseitige Bühnentrakt in die Planung integriert. So konnten insgesamt 60 Prozent der Baumasse erhalten werden. Dies konnte nur durch die Entwicklung eines innovativen Tragwerks realisiert werden. Ein einhüftiger Zweigelenkrahmen aus Brettschichtholz ist auf dem Achsraster der bestehenden Stahlbetonstützen ausgerichtet und leitet aufgrund seiner Geometrie lediglich einen Teil der Lasten in den Bestand ein.
Planung: 2020–2021, Ausführung: 2022–2024
Standort: Schlägweidestr. 3, 88433 Ingerkingen
BGF/BRI: 1584 m² / 7921 m3
Bauherr: Gemeinde Schemmerhofen
Team: Florian Kaiser, Guobin Shen, Kilian Juraschitz, Matthias Stauch, Tim Kölle, Patrick Schneider
Foto: Brigida González
Die Turn- und Festhalle in Ingerkingen wurde in den 1960er Jahren erbaut und später mehrmals erweitert und umgebaut. Um den Anforderungen an eine zeitgenössische Einfeldhalle zu genügen wurde die Halle im südlichen und östlichen Bereich zurückgebaut und vergrößert. Um den Abriss auf ein Minimum zu reduzieren, wurden Fundamente und Bodenplatte, Decken und die massiven Wände im nördlichen Teil und der straßenseitige Bühnentrakt in die Planung integriert. So konnten insgesamt 60 Prozent der Baumasse erhalten werden. Dies konnte nur durch die Entwicklung eines innovativen Tragwerks realisiert werden. Ein einhüftiger Zweigelenkrahmen aus Brettschichtholz ist auf dem Achsraster der bestehenden Stahlbetonstützen ausgerichtet und leitet aufgrund seiner Geometrie lediglich einen Teil der Lasten in den Bestand ein.
Planung: 2020–2021, Ausführung: 2022–2024
Standort: Schlägweidestr. 3, 88433 Ingerkingen
BGF/BRI: 1584 m² / 7921 m3
Bauherr: Gemeinde Schemmerhofen
Team: Florian Kaiser, Guobin Shen, Kilian Juraschitz, Matthias Stauch, Tim Kölle, Patrick Schneider
Foto: Brigida González
Die Turn- und Festhalle in Ingerkingen wurde in den 1960er Jahren erbaut und später mehrmals erweitert und umgebaut. Um den Anforderungen an eine zeitgenössische Einfeldhalle zu genügen wurde die Halle im südlichen und östlichen Bereich zurückgebaut und vergrößert. Um den Abriss auf ein Minimum zu reduzieren, wurden Fundamente und Bodenplatte, Decken und die massiven Wände im nördlichen Teil und der straßenseitige Bühnentrakt in die Planung integriert. So konnten insgesamt 60 Prozent der Baumasse erhalten werden. Dies konnte nur durch die Entwicklung eines innovativen Tragwerks realisiert werden. Ein einhüftiger Zweigelenkrahmen aus Brettschichtholz ist auf dem Achsraster der bestehenden Stahlbetonstützen ausgerichtet und leitet aufgrund seiner Geometrie lediglich einen Teil der Lasten in den Bestand ein.
Planung: 2020–2021, Ausführung: 2022–2024
Standort: Schlägweidestr. 3, 88433 Ingerkingen
BGF/BRI: 1584 m² / 7921 m3
Bauherr: Gemeinde Schemmerhofen
Team: Florian Kaiser, Guobin Shen, Kilian Juraschitz, Matthias Stauch, Tim Kölle, Patrick Schneider
Foto: Brigida González
Die Turn- und Festhalle in Ingerkingen wurde in den 1960er Jahren erbaut und später mehrmals erweitert und umgebaut. Um den Anforderungen an eine zeitgenössische Einfeldhalle zu genügen wurde die Halle im südlichen und östlichen Bereich zurückgebaut und vergrößert. Um den Abriss auf ein Minimum zu reduzieren, wurden Fundamente und Bodenplatte, Decken und die massiven Wände im nördlichen Teil und der straßenseitige Bühnentrakt in die Planung integriert. So konnten insgesamt 60 Prozent der Baumasse erhalten werden. Dies konnte nur durch die Entwicklung eines innovativen Tragwerks realisiert werden. Ein einhüftiger Zweigelenkrahmen aus Brettschichtholz ist auf dem Achsraster der bestehenden Stahlbetonstützen ausgerichtet und leitet aufgrund seiner Geometrie lediglich einen Teil der Lasten in den Bestand ein.
Planung: 2020–2021, Ausführung: 2022–2024
Standort: Schlägweidestr. 3, 88433 Ingerkingen
BGF/BRI: 1584 m² / 7921 m3
Bauherr: Gemeinde Schemmerhofen
Team: Florian Kaiser, Guobin Shen, Kilian Juraschitz, Matthias Stauch, Tim Kölle, Patrick Schneider
Foto: Brigida González
Die Turn- und Festhalle in Ingerkingen wurde in den 1960er Jahren erbaut und später mehrmals erweitert und umgebaut. Um den Anforderungen an eine zeitgenössische Einfeldhalle zu genügen wurde die Halle im südlichen und östlichen Bereich zurückgebaut und vergrößert. Um den Abriss auf ein Minimum zu reduzieren, wurden Fundamente und Bodenplatte, Decken und die massiven Wände im nördlichen Teil und der straßenseitige Bühnentrakt in die Planung integriert. So konnten insgesamt 60 Prozent der Baumasse erhalten werden. Dies konnte nur durch die Entwicklung eines innovativen Tragwerks realisiert werden. Ein einhüftiger Zweigelenkrahmen aus Brettschichtholz ist auf dem Achsraster der bestehenden Stahlbetonstützen ausgerichtet und leitet aufgrund seiner Geometrie lediglich einen Teil der Lasten in den Bestand ein.
Planung: 2020–2021, Ausführung: 2022–2024
Standort: Schlägweidestr. 3, 88433 Ingerkingen
BGF/BRI: 1584 m² / 7921 m3
Bauherr: Gemeinde Schemmerhofen
Team: Florian Kaiser, Guobin Shen, Kilian Juraschitz, Matthias Stauch, Tim Kölle, Patrick Schneider
Foto: Brigida González
Die Turn- und Festhalle in Ingerkingen wurde in den 1960er Jahren erbaut und später mehrmals erweitert und umgebaut. Um den Anforderungen an eine zeitgenössische Einfeldhalle zu genügen wurde die Halle im südlichen und östlichen Bereich zurückgebaut und vergrößert. Um den Abriss auf ein Minimum zu reduzieren, wurden Fundamente und Bodenplatte, Decken und die massiven Wände im nördlichen Teil und der straßenseitige Bühnentrakt in die Planung integriert. So konnten insgesamt 60 Prozent der Baumasse erhalten werden. Dies konnte nur durch die Entwicklung eines innovativen Tragwerks realisiert werden. Ein einhüftiger Zweigelenkrahmen aus Brettschichtholz ist auf dem Achsraster der bestehenden Stahlbetonstützen ausgerichtet und leitet aufgrund seiner Geometrie lediglich einen Teil der Lasten in den Bestand ein.
Planung: 2020–2021, Ausführung: 2022–2024
Standort: Schlägweidestr. 3, 88433 Ingerkingen
BGF/BRI: 1584 m² / 7921 m3
Bauherr: Gemeinde Schemmerhofen
Team: Florian Kaiser, Guobin Shen, Kilian Juraschitz, Matthias Stauch, Tim Kölle, Patrick Schneider
Foto: Brigida González
Die Turn- und Festhalle in Ingerkingen wurde in den 1960er Jahren erbaut und später mehrmals erweitert und umgebaut. Um den Anforderungen an eine zeitgenössische Einfeldhalle zu genügen wurde die Halle im südlichen und östlichen Bereich zurückgebaut und vergrößert. Um den Abriss auf ein Minimum zu reduzieren, wurden Fundamente und Bodenplatte, Decken und die massiven Wände im nördlichen Teil und der straßenseitige Bühnentrakt in die Planung integriert. So konnten insgesamt 60 Prozent der Baumasse erhalten werden. Dies konnte nur durch die Entwicklung eines innovativen Tragwerks realisiert werden. Ein einhüftiger Zweigelenkrahmen aus Brettschichtholz ist auf dem Achsraster der bestehenden Stahlbetonstützen ausgerichtet und leitet aufgrund seiner Geometrie lediglich einen Teil der Lasten in den Bestand ein.
Planung: 2020–2021, Ausführung: 2022–2024
Standort: Schlägweidestr. 3, 88433 Ingerkingen
BGF/BRI: 1584 m² / 7921 m3
Bauherr: Gemeinde Schemmerhofen
Team: Florian Kaiser, Guobin Shen, Kilian Juraschitz, Matthias Stauch, Tim Kölle, Patrick Schneider
Foto: Brigida González
Die Turn- und Festhalle in Ingerkingen wurde in den 1960er Jahren erbaut und später mehrmals erweitert und umgebaut. Um den Anforderungen an eine zeitgenössische Einfeldhalle zu genügen wurde die Halle im südlichen und östlichen Bereich zurückgebaut und vergrößert. Um den Abriss auf ein Minimum zu reduzieren, wurden Fundamente und Bodenplatte, Decken und die massiven Wände im nördlichen Teil und der straßenseitige Bühnentrakt in die Planung integriert. So konnten insgesamt 60 Prozent der Baumasse erhalten werden. Dies konnte nur durch die Entwicklung eines innovativen Tragwerks realisiert werden. Ein einhüftiger Zweigelenkrahmen aus Brettschichtholz ist auf dem Achsraster der bestehenden Stahlbetonstützen ausgerichtet und leitet aufgrund seiner Geometrie lediglich einen Teil der Lasten in den Bestand ein.
Planung: 2020–2021, Ausführung: 2022–2024
Standort: Schlägweidestr. 3, 88433 Ingerkingen
BGF/BRI: 1584 m² / 7921 m3
Bauherr: Gemeinde Schemmerhofen
Team: Florian Kaiser, Guobin Shen, Kilian Juraschitz, Matthias Stauch, Tim Kölle, Patrick Schneider
Foto: Brigida González
Die Turn- und Festhalle in Ingerkingen wurde in den 1960er Jahren erbaut und später mehrmals erweitert und umgebaut. Um den Anforderungen an eine zeitgenössische Einfeldhalle zu genügen wurde die Halle im südlichen und östlichen Bereich zurückgebaut und vergrößert. Um den Abriss auf ein Minimum zu reduzieren, wurden Fundamente und Bodenplatte, Decken und die massiven Wände im nördlichen Teil und der straßenseitige Bühnentrakt in die Planung integriert. So konnten insgesamt 60 Prozent der Baumasse erhalten werden. Dies konnte nur durch die Entwicklung eines innovativen Tragwerks realisiert werden. Ein einhüftiger Zweigelenkrahmen aus Brettschichtholz ist auf dem Achsraster der bestehenden Stahlbetonstützen ausgerichtet und leitet aufgrund seiner Geometrie lediglich einen Teil der Lasten in den Bestand ein.
Planung: 2020–2021, Ausführung: 2022–2024
Standort: Schlägweidestr. 3, 88433 Ingerkingen
BGF/BRI: 1584 m² / 7921 m3
Bauherr: Gemeinde Schemmerhofen
Team: Florian Kaiser, Guobin Shen, Kilian Juraschitz, Matthias Stauch, Tim Kölle, Patrick Schneider
Foto: Brigida González
Die Turn- und Festhalle in Ingerkingen wurde in den 1960er Jahren erbaut und später mehrmals erweitert und umgebaut. Um den Anforderungen an eine zeitgenössische Einfeldhalle zu genügen wurde die Halle im südlichen und östlichen Bereich zurückgebaut und vergrößert. Um den Abriss auf ein Minimum zu reduzieren, wurden Fundamente und Bodenplatte, Decken und die massiven Wände im nördlichen Teil und der straßenseitige Bühnentrakt in die Planung integriert. So konnten insgesamt 60 Prozent der Baumasse erhalten werden. Dies konnte nur durch die Entwicklung eines innovativen Tragwerks realisiert werden. Ein einhüftiger Zweigelenkrahmen aus Brettschichtholz ist auf dem Achsraster der bestehenden Stahlbetonstützen ausgerichtet und leitet aufgrund seiner Geometrie lediglich einen Teil der Lasten in den Bestand ein.
Planung: 2020–2021, Ausführung: 2022–2024
Standort: Schlägweidestr. 3, 88433 Ingerkingen
BGF/BRI: 1584 m² / 7921 m3
Bauherr: Gemeinde Schemmerhofen
Team: Florian Kaiser, Guobin Shen, Kilian Juraschitz, Matthias Stauch, Tim Kölle, Patrick Schneider
Foto: Brigida González
Die Turn- und Festhalle in Ingerkingen wurde in den 1960er Jahren erbaut und später mehrmals erweitert und umgebaut. Um den Anforderungen an eine zeitgenössische Einfeldhalle zu genügen wurde die Halle im südlichen und östlichen Bereich zurückgebaut und vergrößert. Um den Abriss auf ein Minimum zu reduzieren, wurden Fundamente und Bodenplatte, Decken und die massiven Wände im nördlichen Teil und der straßenseitige Bühnentrakt in die Planung integriert. So konnten insgesamt 60 Prozent der Baumasse erhalten werden. Dies konnte nur durch die Entwicklung eines innovativen Tragwerks realisiert werden. Ein einhüftiger Zweigelenkrahmen aus Brettschichtholz ist auf dem Achsraster der bestehenden Stahlbetonstützen ausgerichtet und leitet aufgrund seiner Geometrie lediglich einen Teil der Lasten in den Bestand ein.
Planung: 2020–2021, Ausführung: 2022–2024
Standort: Schlägweidestr. 3, 88433 Ingerkingen
BGF/BRI: 1584 m² / 7921 m3
Bauherr: Gemeinde Schemmerhofen
Team: Florian Kaiser, Guobin Shen, Kilian Juraschitz, Matthias Stauch, Tim Kölle, Patrick Schneider
Foto: Brigida González
Die Turn- und Festhalle in Ingerkingen wurde in den 1960er Jahren erbaut und später mehrmals erweitert und umgebaut. Um den Anforderungen an eine zeitgenössische Einfeldhalle zu genügen wurde die Halle im südlichen und östlichen Bereich zurückgebaut und vergrößert. Um den Abriss auf ein Minimum zu reduzieren, wurden Fundamente und Bodenplatte, Decken und die massiven Wände im nördlichen Teil und der straßenseitige Bühnentrakt in die Planung integriert. So konnten insgesamt 60 Prozent der Baumasse erhalten werden. Dies konnte nur durch die Entwicklung eines innovativen Tragwerks realisiert werden. Ein einhüftiger Zweigelenkrahmen aus Brettschichtholz ist auf dem Achsraster der bestehenden Stahlbetonstützen ausgerichtet und leitet aufgrund seiner Geometrie lediglich einen Teil der Lasten in den Bestand ein.
Planung: 2020–2021, Ausführung: 2022–2024
Standort: Schlägweidestr. 3, 88433 Ingerkingen
BGF/BRI: 1584 m² / 7921 m3
Bauherr: Gemeinde Schemmerhofen
Team: Florian Kaiser, Guobin Shen, Kilian Juraschitz, Matthias Stauch, Tim Kölle, Patrick Schneider
Die Turn- und Festhalle in Ingerkingen wurde in den 1960er Jahren erbaut und später mehrmals erweitert und umgebaut. Um den Anforderungen an eine zeitgenössische Einfeldhalle zu genügen wurde die Halle im südlichen und östlichen Bereich zurückgebaut und vergrößert. Um den Abriss auf ein Minimum zu reduzieren, wurden Fundamente und Bodenplatte, Decken und die massiven Wände im nördlichen Teil und der straßenseitige Bühnentrakt in die Planung integriert. So konnten insgesamt 60 Prozent der Baumasse erhalten werden. Dies konnte nur durch die Entwicklung eines innovativen Tragwerks realisiert werden. Ein einhüftiger Zweigelenkrahmen aus Brettschichtholz ist auf dem Achsraster der bestehenden Stahlbetonstützen ausgerichtet und leitet aufgrund seiner Geometrie lediglich einen Teil der Lasten in den Bestand ein.
Planung: 2020–2021, Ausführung: 2022–2024
Standort: Schlägweidestr. 3, 88433 Ingerkingen
BGF/BRI: 1584 m² / 7921 m3
Bauherr: Gemeinde Schemmerhofen
Team: Florian Kaiser, Guobin Shen, Kilian Juraschitz, Matthias Stauch, Tim Kölle, Patrick Schneider
Foto: Brigida González
Die Turn- und Festhalle in Ingerkingen wurde in den 1960er Jahren erbaut und später mehrmals erweitert und umgebaut. Um den Anforderungen an eine zeitgenössische Einfeldhalle zu genügen wurde die Halle im südlichen und östlichen Bereich zurückgebaut und vergrößert. Um den Abriss auf ein Minimum zu reduzieren, wurden Fundamente und Bodenplatte, Decken und die massiven Wände im nördlichen Teil und der straßenseitige Bühnentrakt in die Planung integriert. So konnten insgesamt 60 Prozent der Baumasse erhalten werden. Dies konnte nur durch die Entwicklung eines innovativen Tragwerks realisiert werden. Ein einhüftiger Zweigelenkrahmen aus Brettschichtholz ist auf dem Achsraster der bestehenden Stahlbetonstützen ausgerichtet und leitet aufgrund seiner Geometrie lediglich einen Teil der Lasten in den Bestand ein.
Planung: 2020–2021, Ausführung: 2022–2024
Standort: Schlägweidestr. 3, 88433 Ingerkingen
BGF/BRI: 1584 m² / 7921 m3
Bauherr: Gemeinde Schemmerhofen
Team: Florian Kaiser, Guobin Shen, Kilian Juraschitz, Matthias Stauch, Tim Kölle, Patrick Schneider
Architekt*innen versuchen meist, fertige Häuser, also in sich schlüssige Baukunstwerke für die Ewigkeit zu erschaffen. Doch hält dieser Anspruch der Realität stand? Sollte das überhaupt der Anspruch sein? Schließlich kann ohnehin nicht ausgeschlossen werden, dass sich das Bauwerk nach Fertigstellung verändert. Inspiriert durch Referenzen aus Baugeschichte, Kunst und Anthropologie hat das junge Atelier Kaiser Shen zu Beginn seiner Praxis verschiedene Thesen entwickelt und diese anhand von eigenen Projekten überprüft. Zentral wird die Frage erörtert, wie sich Bauwerke in ihrer Lebensdauer aufgrund von äußeren Einflüssen verändern und was dieser Wandel für die Permanenz in der Architektur und für die Raumidee bedeutet.
Florian Kaiser & Guobin Shen: Unfertige Häuser 未完的建築
Herausgeber: Edition Axel Menges, Stuttgart
128 Seiten, 140 x 200 mm, Softcover, Deutsch / Chinesisch
Erscheinungsdatum 29.06.2022
Euro 19.90; ISBN: 978-3-86905-031-7
Die in den 1960er Jahren erbaute Michael-Friedrich-Wild Grundschule besticht durch eine ungewöhnliche Grundrisskonfiguration. So befinden sich im ersten Obergeschoss des aufgeständerten Schulbaus, ringförmig um Aula und Innenhof angeordnet, alle schulischen Nutzungen. Zudem leiten zwei turmartige Treppenhäuser in das zweite und dritte Obergeschoss und erschließen dort als ,Zweispänner’ jeweils zwei Klassenzimmer. Bei der Erweiterung in Holzhybridbauweise werden diese beiden Treppenhäuser aufgegriffen und deren Zwischenpodeste in eine großzügige einläufige Treppe integriert. Die Grundrisstypologie ändert sich somit grundlegend und bildet das neue Herz der Schule, in dem überraschende Blickbeziehungen entstehen. Für die neue Mensa und den Mehrzweckraum wird das freie Erdgeschoss ausgebaut.
Wettbewerb 2022: 1. Preis
Planung: 2023-2024, Ausführung: 2025-2027
Standort: Goethestraße 22, 79379 Müllheim
BGF/BRI: 2254 m² / 8081 m3
Bauherr: Stadt Müllheim
Team: Florian Kaiser, Guobin Shen, Johannes Schreiner, Paul-Christian Wagner, Nadja Probst
Die in den 1960er Jahren erbaute Michael-Friedrich-Wild Grundschule besticht durch eine ungewöhnliche Grundrisskonfiguration. So befinden sich im ersten Obergeschoss des aufgeständerten Schulbaus, ringförmig um Aula und Innenhof angeordnet, alle schulischen Nutzungen. Zudem leiten zwei turmartige Treppenhäuser in das zweite und dritte Obergeschoss und erschließen dort als ,Zweispänner’ jeweils zwei Klassenzimmer. Bei der Erweiterung in Holzhybridbauweise werden diese beiden Treppenhäuser aufgegriffen und deren Zwischenpodeste in eine großzügige einläufige Treppe integriert. Die Grundrisstypologie ändert sich somit grundlegend und bildet das neue Herz der Schule, in dem überraschende Blickbeziehungen entstehen. Für die neue Mensa und den Mehrzweckraum wird das freie Erdgeschoss ausgebaut.
Wettbewerb 2022: 1. Preis
Planung: 2023-2024, Ausführung: 2025-2027
Standort: Goethestraße 22, 79379 Müllheim
BGF/BRI: 2254 m² / 8081 m3
Bauherr: Stadt Müllheim
Team: Florian Kaiser, Guobin Shen, Johannes Schreiner, Paul-Christian Wagner, Nadja Probst
Die in den 1960er Jahren erbaute Michael-Friedrich-Wild Grundschule besticht durch eine ungewöhnliche Grundrisskonfiguration. So befinden sich im ersten Obergeschoss des aufgeständerten Schulbaus, ringförmig um Aula und Innenhof angeordnet, alle schulischen Nutzungen. Zudem leiten zwei turmartige Treppenhäuser in das zweite und dritte Obergeschoss und erschließen dort als ,Zweispänner’ jeweils zwei Klassenzimmer. Bei der Erweiterung in Holzhybridbauweise werden diese beiden Treppenhäuser aufgegriffen und deren Zwischenpodeste in eine großzügige einläufige Treppe integriert. Die Grundrisstypologie ändert sich somit grundlegend und bildet das neue Herz der Schule, in dem überraschende Blickbeziehungen entstehen. Für die neue Mensa und den Mehrzweckraum wird das freie Erdgeschoss ausgebaut.
Wettbewerb 2022: 1. Preis
Planung: 2023-2024, Ausführung: 2025-2027
Standort: Goethestraße 22, 79379 Müllheim
BGF/BRI: 2254 m² / 8081 m3
Bauherr: Stadt Müllheim
Team: Florian Kaiser, Guobin Shen, Johannes Schreiner, Paul-Christian Wagner, Nadja Probst
Die in den 1960er Jahren erbaute Michael-Friedrich-Wild Grundschule besticht durch eine ungewöhnliche Grundrisskonfiguration. So befinden sich im ersten Obergeschoss des aufgeständerten Schulbaus, ringförmig um Aula und Innenhof angeordnet, alle schulischen Nutzungen. Zudem leiten zwei turmartige Treppenhäuser in das zweite und dritte Obergeschoss und erschließen dort als ,Zweispänner’ jeweils zwei Klassenzimmer. Bei der Erweiterung in Holzhybridbauweise werden diese beiden Treppenhäuser aufgegriffen und deren Zwischenpodeste in eine großzügige einläufige Treppe integriert. Die Grundrisstypologie ändert sich somit grundlegend und bildet das neue Herz der Schule, in dem überraschende Blickbeziehungen entstehen. Für die neue Mensa und den Mehrzweckraum wird das freie Erdgeschoss ausgebaut.
Wettbewerb 2022: 1. Preis
Planung: 2023-2024, Ausführung: 2025-2027
Standort: Goethestraße 22, 79379 Müllheim
BGF/BRI: 2254 m² / 8081 m3
Bauherr: Stadt Müllheim
Team: Florian Kaiser, Guobin Shen, Johannes Schreiner, Paul-Christian Wagner, Nadja Probst
Die in den 1960er Jahren erbaute Michael-Friedrich-Wild Grundschule besticht durch eine ungewöhnliche Grundrisskonfiguration. So befinden sich im ersten Obergeschoss des aufgeständerten Schulbaus, ringförmig um Aula und Innenhof angeordnet, alle schulischen Nutzungen. Zudem leiten zwei turmartige Treppenhäuser in das zweite und dritte Obergeschoss und erschließen dort als ,Zweispänner’ jeweils zwei Klassenzimmer. Bei der Erweiterung in Holzhybridbauweise werden diese beiden Treppenhäuser aufgegriffen und deren Zwischenpodeste in eine großzügige einläufige Treppe integriert. Die Grundrisstypologie ändert sich somit grundlegend und bildet das neue Herz der Schule, in dem überraschende Blickbeziehungen entstehen. Für die neue Mensa und den Mehrzweckraum wird das freie Erdgeschoss ausgebaut.
Wettbewerb 2022: 1. Preis
Planung: 2023-2024, Ausführung: 2025-2027
Standort: Goethestraße 22, 79379 Müllheim
BGF/BRI: 2254 m² / 8081 m3
Bauherr: Stadt Müllheim
Team: Florian Kaiser, Guobin Shen, Johannes Schreiner, Paul-Christian Wagner, Nadja Probst
In der kleinen Gemeinde Schönaich in Baden-Württemberg wurde ein Modellgebäude für bezahlbaren Wohnraum und Geflüchtete in innovativer Holzbauweise errichtet. Die Idee des Wohnheims basiert auf einer anspruchsvollen Gestaltung, die zukünftige Veränderungen zulässt und durch diese gar bereichert wird. Dabei bildet ein klar gerasterter Grundriss mit tragenden Brettsperrholz-Wandscheiben und ein umschließendes Gerüst die Überlagerung mehrerer Raumprogramme ab und ermöglicht somit eine fluide Umnutzung des Gebäudes. Somit konnten sowohl die vorgeschriebene Wohnfläche pro geflüchtete Person von 7 Quadratmetern als auch die Richtwerte für sozial geförderten Wohnraum eingehalten werden. Durch einfache Umnutzung, hohe Vorfertigung und flexible Strukturen ist das Gebäude als langfristig anpassbares, „unfertiges“ Haus angelegt.
Planung: 2019-2021, Ausführung: 2022-2025
Standort: Im Hasenbühl, 71101 Schönaich
BGF/BRI: 1751 m² / 5909 m3
Bauherr: Gemeinde Schönaich
Team: Florian Kaiser, Guobin Shen, Matthias Stauch, Tim Kölle, Yanghao Shu
Foto: Brigida González
In der kleinen Gemeinde Schönaich in Baden-Württemberg wurde ein Modellgebäude für bezahlbaren Wohnraum und Geflüchtete in innovativer Holzbauweise errichtet. Die Idee des Wohnheims basiert auf einer anspruchsvollen Gestaltung, die zukünftige Veränderungen zulässt und durch diese gar bereichert wird. Dabei bildet ein klar gerasterter Grundriss mit tragenden Brettsperrholz-Wandscheiben und ein umschließendes Gerüst die Überlagerung mehrerer Raumprogramme ab und ermöglicht somit eine fluide Umnutzung des Gebäudes. Somit konnten sowohl die vorgeschriebene Wohnfläche pro geflüchtete Person von 7 Quadratmetern als auch die Richtwerte für sozial geförderten Wohnraum eingehalten werden. Durch einfache Umnutzung, hohe Vorfertigung und flexible Strukturen ist das Gebäude als langfristig anpassbares, „unfertiges“ Haus angelegt.
Planung: 2019-2021, Ausführung: 2022-2025
Standort: Im Hasenbühl, 71101 Schönaich
BGF/BRI: 1751 m² / 5909 m3
Bauherr: Gemeinde Schönaich
Team: Florian Kaiser, Guobin Shen, Matthias Stauch, Tim Kölle, Yanghao Shu
Foto: Brigida González
In der kleinen Gemeinde Schönaich in Baden-Württemberg wurde ein Modellgebäude für bezahlbaren Wohnraum und Geflüchtete in innovativer Holzbauweise errichtet. Die Idee des Wohnheims basiert auf einer anspruchsvollen Gestaltung, die zukünftige Veränderungen zulässt und durch diese gar bereichert wird. Dabei bildet ein klar gerasterter Grundriss mit tragenden Brettsperrholz-Wandscheiben und ein umschließendes Gerüst die Überlagerung mehrerer Raumprogramme ab und ermöglicht somit eine fluide Umnutzung des Gebäudes. Somit konnten sowohl die vorgeschriebene Wohnfläche pro geflüchtete Person von 7 Quadratmetern als auch die Richtwerte für sozial geförderten Wohnraum eingehalten werden. Durch einfache Umnutzung, hohe Vorfertigung und flexible Strukturen ist das Gebäude als langfristig anpassbares, „unfertiges“ Haus angelegt.
Planung: 2019-2021, Ausführung: 2022-2025
Standort: Im Hasenbühl, 71101 Schönaich
BGF/BRI: 1751 m² / 5909 m3
Bauherr: Gemeinde Schönaich
Team: Florian Kaiser, Guobin Shen, Matthias Stauch, Tim Kölle, Yanghao Shu
Foto: Brigida González
In der kleinen Gemeinde Schönaich in Baden-Württemberg wurde ein Modellgebäude für bezahlbaren Wohnraum und Geflüchtete in innovativer Holzbauweise errichtet. Die Idee des Wohnheims basiert auf einer anspruchsvollen Gestaltung, die zukünftige Veränderungen zulässt und durch diese gar bereichert wird. Dabei bildet ein klar gerasterter Grundriss mit tragenden Brettsperrholz-Wandscheiben und ein umschließendes Gerüst die Überlagerung mehrerer Raumprogramme ab und ermöglicht somit eine fluide Umnutzung des Gebäudes. Somit konnten sowohl die vorgeschriebene Wohnfläche pro geflüchtete Person von 7 Quadratmetern als auch die Richtwerte für sozial geförderten Wohnraum eingehalten werden. Durch einfache Umnutzung, hohe Vorfertigung und flexible Strukturen ist das Gebäude als langfristig anpassbares, „unfertiges“ Haus angelegt.
Planung: 2019-2021, Ausführung: 2022-2025
Standort: Im Hasenbühl, 71101 Schönaich
BGF/BRI: 1751 m² / 5909 m3
Bauherr: Gemeinde Schönaich
Team: Florian Kaiser, Guobin Shen, Matthias Stauch, Tim Kölle, Yanghao Shu
Foto: Brigida González
In der kleinen Gemeinde Schönaich in Baden-Württemberg wurde ein Modellgebäude für bezahlbaren Wohnraum und Geflüchtete in innovativer Holzbauweise errichtet. Die Idee des Wohnheims basiert auf einer anspruchsvollen Gestaltung, die zukünftige Veränderungen zulässt und durch diese gar bereichert wird. Dabei bildet ein klar gerasterter Grundriss mit tragenden Brettsperrholz-Wandscheiben und ein umschließendes Gerüst die Überlagerung mehrerer Raumprogramme ab und ermöglicht somit eine fluide Umnutzung des Gebäudes. Somit konnten sowohl die vorgeschriebene Wohnfläche pro geflüchtete Person von 7 Quadratmetern als auch die Richtwerte für sozial geförderten Wohnraum eingehalten werden. Durch einfache Umnutzung, hohe Vorfertigung und flexible Strukturen ist das Gebäude als langfristig anpassbares, „unfertiges“ Haus angelegt.
Planung: 2019-2021, Ausführung: 2022-2025
Standort: Im Hasenbühl, 71101 Schönaich
BGF/BRI: 1751 m² / 5909 m3
Bauherr: Gemeinde Schönaich
Team: Florian Kaiser, Guobin Shen, Matthias Stauch, Tim Kölle, Yanghao Shu
Foto: Brigida González
In der kleinen Gemeinde Schönaich in Baden-Württemberg wurde ein Modellgebäude für bezahlbaren Wohnraum und Geflüchtete in innovativer Holzbauweise errichtet. Die Idee des Wohnheims basiert auf einer anspruchsvollen Gestaltung, die zukünftige Veränderungen zulässt und durch diese gar bereichert wird. Dabei bildet ein klar gerasterter Grundriss mit tragenden Brettsperrholz-Wandscheiben und ein umschließendes Gerüst die Überlagerung mehrerer Raumprogramme ab und ermöglicht somit eine fluide Umnutzung des Gebäudes. Somit konnten sowohl die vorgeschriebene Wohnfläche pro geflüchtete Person von 7 Quadratmetern als auch die Richtwerte für sozial geförderten Wohnraum eingehalten werden. Durch einfache Umnutzung, hohe Vorfertigung und flexible Strukturen ist das Gebäude als langfristig anpassbares, „unfertiges“ Haus angelegt.
Planung: 2019-2021, Ausführung: 2022-2025
Standort: Im Hasenbühl, 71101 Schönaich
BGF/BRI: 1751 m² / 5909 m3
Bauherr: Gemeinde Schönaich
Team: Florian Kaiser, Guobin Shen, Matthias Stauch, Tim Kölle, Yanghao Shu
Foto: Brigida González
In der kleinen Gemeinde Schönaich in Baden-Württemberg wurde ein Modellgebäude für bezahlbaren Wohnraum und Geflüchtete in innovativer Holzbauweise errichtet. Die Idee des Wohnheims basiert auf einer anspruchsvollen Gestaltung, die zukünftige Veränderungen zulässt und durch diese gar bereichert wird. Dabei bildet ein klar gerasterter Grundriss mit tragenden Brettsperrholz-Wandscheiben und ein umschließendes Gerüst die Überlagerung mehrerer Raumprogramme ab und ermöglicht somit eine fluide Umnutzung des Gebäudes. Somit konnten sowohl die vorgeschriebene Wohnfläche pro geflüchtete Person von 7 Quadratmetern als auch die Richtwerte für sozial geförderten Wohnraum eingehalten werden. Durch einfache Umnutzung, hohe Vorfertigung und flexible Strukturen ist das Gebäude als langfristig anpassbares, „unfertiges“ Haus angelegt.
Planung: 2019-2021, Ausführung: 2022-2025
Standort: Im Hasenbühl, 71101 Schönaich
BGF/BRI: 1751 m² / 5909 m3
Bauherr: Gemeinde Schönaich
Team: Florian Kaiser, Guobin Shen, Matthias Stauch, Tim Kölle, Yanghao Shu
Foto: Brigida González
In der kleinen Gemeinde Schönaich in Baden-Württemberg wurde ein Modellgebäude für bezahlbaren Wohnraum und Geflüchtete in innovativer Holzbauweise errichtet. Die Idee des Wohnheims basiert auf einer anspruchsvollen Gestaltung, die zukünftige Veränderungen zulässt und durch diese gar bereichert wird. Dabei bildet ein klar gerasterter Grundriss mit tragenden Brettsperrholz-Wandscheiben und ein umschließendes Gerüst die Überlagerung mehrerer Raumprogramme ab und ermöglicht somit eine fluide Umnutzung des Gebäudes. Somit konnten sowohl die vorgeschriebene Wohnfläche pro geflüchtete Person von 7 Quadratmetern als auch die Richtwerte für sozial geförderten Wohnraum eingehalten werden. Durch einfache Umnutzung, hohe Vorfertigung und flexible Strukturen ist das Gebäude als langfristig anpassbares, „unfertiges“ Haus angelegt.
Planung: 2019-2021, Ausführung: 2022-2025
Standort: Im Hasenbühl, 71101 Schönaich
BGF/BRI: 1751 m² / 5909 m3
Bauherr: Gemeinde Schönaich
Team: Florian Kaiser, Guobin Shen, Matthias Stauch, Tim Kölle, Yanghao Shu
Foto: Brigida González
In der kleinen Gemeinde Schönaich in Baden-Württemberg wurde ein Modellgebäude für bezahlbaren Wohnraum und Geflüchtete in innovativer Holzbauweise errichtet. Die Idee des Wohnheims basiert auf einer anspruchsvollen Gestaltung, die zukünftige Veränderungen zulässt und durch diese gar bereichert wird. Dabei bildet ein klar gerasterter Grundriss mit tragenden Brettsperrholz-Wandscheiben und ein umschließendes Gerüst die Überlagerung mehrerer Raumprogramme ab und ermöglicht somit eine fluide Umnutzung des Gebäudes. Somit konnten sowohl die vorgeschriebene Wohnfläche pro geflüchtete Person von 7 Quadratmetern als auch die Richtwerte für sozial geförderten Wohnraum eingehalten werden. Durch einfache Umnutzung, hohe Vorfertigung und flexible Strukturen ist das Gebäude als langfristig anpassbares, „unfertiges“ Haus angelegt.
Planung: 2019-2021, Ausführung: 2022-2025
Standort: Im Hasenbühl, 71101 Schönaich
BGF/BRI: 1751 m² / 5909 m3
Bauherr: Gemeinde Schönaich
Team: Florian Kaiser, Guobin Shen, Matthias Stauch, Tim Kölle, Yanghao Shu
Foto: Brigida González
In der kleinen Gemeinde Schönaich in Baden-Württemberg wurde ein Modellgebäude für bezahlbaren Wohnraum und Geflüchtete in innovativer Holzbauweise errichtet. Die Idee des Wohnheims basiert auf einer anspruchsvollen Gestaltung, die zukünftige Veränderungen zulässt und durch diese gar bereichert wird. Dabei bildet ein klar gerasterter Grundriss mit tragenden Brettsperrholz-Wandscheiben und ein umschließendes Gerüst die Überlagerung mehrerer Raumprogramme ab und ermöglicht somit eine fluide Umnutzung des Gebäudes. Somit konnten sowohl die vorgeschriebene Wohnfläche pro geflüchtete Person von 7 Quadratmetern als auch die Richtwerte für sozial geförderten Wohnraum eingehalten werden. Durch einfache Umnutzung, hohe Vorfertigung und flexible Strukturen ist das Gebäude als langfristig anpassbares, „unfertiges“ Haus angelegt.
Planung: 2019-2021, Ausführung: 2022-2025
Standort: Im Hasenbühl, 71101 Schönaich
BGF/BRI: 1751 m² / 5909 m3
Bauherr: Gemeinde Schönaich
Team: Florian Kaiser, Guobin Shen, Matthias Stauch, Tim Kölle, Yanghao Shu
Foto: Brigida González
In der kleinen Gemeinde Schönaich in Baden-Württemberg wurde ein Modellgebäude für bezahlbaren Wohnraum und Geflüchtete in innovativer Holzbauweise errichtet. Die Idee des Wohnheims basiert auf einer anspruchsvollen Gestaltung, die zukünftige Veränderungen zulässt und durch diese gar bereichert wird. Dabei bildet ein klar gerasterter Grundriss mit tragenden Brettsperrholz-Wandscheiben und ein umschließendes Gerüst die Überlagerung mehrerer Raumprogramme ab und ermöglicht somit eine fluide Umnutzung des Gebäudes. Somit konnten sowohl die vorgeschriebene Wohnfläche pro geflüchtete Person von 7 Quadratmetern als auch die Richtwerte für sozial geförderten Wohnraum eingehalten werden. Durch einfache Umnutzung, hohe Vorfertigung und flexible Strukturen ist das Gebäude als langfristig anpassbares, „unfertiges“ Haus angelegt.
Planung: 2019-2021, Ausführung: 2022-2025
Standort: Im Hasenbühl, 71101 Schönaich
BGF/BRI: 1751 m² / 5909 m3
Bauherr: Gemeinde Schönaich
Team: Florian Kaiser, Guobin Shen, Matthias Stauch, Tim Kölle, Yanghao Shu
Foto: Brigida González
In der kleinen Gemeinde Schönaich in Baden-Württemberg wurde ein Modellgebäude für bezahlbaren Wohnraum und Geflüchtete in innovativer Holzbauweise errichtet. Die Idee des Wohnheims basiert auf einer anspruchsvollen Gestaltung, die zukünftige Veränderungen zulässt und durch diese gar bereichert wird. Dabei bildet ein klar gerasterter Grundriss mit tragenden Brettsperrholz-Wandscheiben und ein umschließendes Gerüst die Überlagerung mehrerer Raumprogramme ab und ermöglicht somit eine fluide Umnutzung des Gebäudes. Somit konnten sowohl die vorgeschriebene Wohnfläche pro geflüchtete Person von 7 Quadratmetern als auch die Richtwerte für sozial geförderten Wohnraum eingehalten werden. Durch einfache Umnutzung, hohe Vorfertigung und flexible Strukturen ist das Gebäude als langfristig anpassbares, „unfertiges“ Haus angelegt.
Planung: 2019-2021, Ausführung: 2022-2025
Standort: Im Hasenbühl, 71101 Schönaich
BGF/BRI: 1751 m² / 5909 m3
Bauherr: Gemeinde Schönaich
Team: Florian Kaiser, Guobin Shen, Matthias Stauch, Tim Kölle, Yanghao Shu
Foto: Brigida González
In der kleinen Gemeinde Schönaich in Baden-Württemberg wurde ein Modellgebäude für bezahlbaren Wohnraum und Geflüchtete in innovativer Holzbauweise errichtet. Die Idee des Wohnheims basiert auf einer anspruchsvollen Gestaltung, die zukünftige Veränderungen zulässt und durch diese gar bereichert wird. Dabei bildet ein klar gerasterter Grundriss mit tragenden Brettsperrholz-Wandscheiben und ein umschließendes Gerüst die Überlagerung mehrerer Raumprogramme ab und ermöglicht somit eine fluide Umnutzung des Gebäudes. Somit konnten sowohl die vorgeschriebene Wohnfläche pro geflüchtete Person von 7 Quadratmetern als auch die Richtwerte für sozial geförderten Wohnraum eingehalten werden. Durch einfache Umnutzung, hohe Vorfertigung und flexible Strukturen ist das Gebäude als langfristig anpassbares, „unfertiges“ Haus angelegt.
Planung: 2019-2021, Ausführung: 2022-2025
Standort: Im Hasenbühl, 71101 Schönaich
BGF/BRI: 1751 m² / 5909 m3
Bauherr: Gemeinde Schönaich
Team: Florian Kaiser, Guobin Shen, Matthias Stauch, Tim Kölle, Yanghao Shu
Foto: Brigida González
In der kleinen Gemeinde Schönaich in Baden-Württemberg wurde ein Modellgebäude für bezahlbaren Wohnraum und Geflüchtete in innovativer Holzbauweise errichtet. Die Idee des Wohnheims basiert auf einer anspruchsvollen Gestaltung, die zukünftige Veränderungen zulässt und durch diese gar bereichert wird. Dabei bildet ein klar gerasterter Grundriss mit tragenden Brettsperrholz-Wandscheiben und ein umschließendes Gerüst die Überlagerung mehrerer Raumprogramme ab und ermöglicht somit eine fluide Umnutzung des Gebäudes. Somit konnten sowohl die vorgeschriebene Wohnfläche pro geflüchtete Person von 7 Quadratmetern als auch die Richtwerte für sozial geförderten Wohnraum eingehalten werden. Durch einfache Umnutzung, hohe Vorfertigung und flexible Strukturen ist das Gebäude als langfristig anpassbares, „unfertiges“ Haus angelegt.
Planung: 2019-2021, Ausführung: 2022-2025
Standort: Im Hasenbühl, 71101 Schönaich
BGF/BRI: 1751 m² / 5909 m3
Bauherr: Gemeinde Schönaich
Team: Florian Kaiser, Guobin Shen, Matthias Stauch, Tim Kölle, Yanghao Shu
Foto: Brigida González
In der kleinen Gemeinde Schönaich in Baden-Württemberg wurde ein Modellgebäude für bezahlbaren Wohnraum und Geflüchtete in innovativer Holzbauweise errichtet. Die Idee des Wohnheims basiert auf einer anspruchsvollen Gestaltung, die zukünftige Veränderungen zulässt und durch diese gar bereichert wird. Dabei bildet ein klar gerasterter Grundriss mit tragenden Brettsperrholz-Wandscheiben und ein umschließendes Gerüst die Überlagerung mehrerer Raumprogramme ab und ermöglicht somit eine fluide Umnutzung des Gebäudes. Somit konnten sowohl die vorgeschriebene Wohnfläche pro geflüchtete Person von 7 Quadratmetern als auch die Richtwerte für sozial geförderten Wohnraum eingehalten werden. Durch einfache Umnutzung, hohe Vorfertigung und flexible Strukturen ist das Gebäude als langfristig anpassbares, „unfertiges“ Haus angelegt.
Planung: 2019-2021, Ausführung: 2022-2025
Standort: Im Hasenbühl, 71101 Schönaich
BGF/BRI: 1751 m² / 5909 m3
Bauherr: Gemeinde Schönaich
Team: Florian Kaiser, Guobin Shen, Matthias Stauch, Tim Kölle, Yanghao Shu
Foto: Brigida González
In der kleinen Gemeinde Schönaich in Baden-Württemberg wurde ein Modellgebäude für bezahlbaren Wohnraum und Geflüchtete in innovativer Holzbauweise errichtet. Die Idee des Wohnheims basiert auf einer anspruchsvollen Gestaltung, die zukünftige Veränderungen zulässt und durch diese gar bereichert wird. Dabei bildet ein klar gerasterter Grundriss mit tragenden Brettsperrholz-Wandscheiben und ein umschließendes Gerüst die Überlagerung mehrerer Raumprogramme ab und ermöglicht somit eine fluide Umnutzung des Gebäudes. Somit konnten sowohl die vorgeschriebene Wohnfläche pro geflüchtete Person von 7 Quadratmetern als auch die Richtwerte für sozial geförderten Wohnraum eingehalten werden. Durch einfache Umnutzung, hohe Vorfertigung und flexible Strukturen ist das Gebäude als langfristig anpassbares, „unfertiges“ Haus angelegt.
Planung: 2019-2021, Ausführung: 2022-2025
Standort: Im Hasenbühl, 71101 Schönaich
BGF/BRI: 1751 m² / 5909 m3
Bauherr: Gemeinde Schönaich
Team: Florian Kaiser, Guobin Shen, Matthias Stauch, Tim Kölle, Yanghao Shu
Foto: Brigida González
In der kleinen Gemeinde Schönaich in Baden-Württemberg wurde ein Modellgebäude für bezahlbaren Wohnraum und Geflüchtete in innovativer Holzbauweise errichtet. Die Idee des Wohnheims basiert auf einer anspruchsvollen Gestaltung, die zukünftige Veränderungen zulässt und durch diese gar bereichert wird. Dabei bildet ein klar gerasterter Grundriss mit tragenden Brettsperrholz-Wandscheiben und ein umschließendes Gerüst die Überlagerung mehrerer Raumprogramme ab und ermöglicht somit eine fluide Umnutzung des Gebäudes. Somit konnten sowohl die vorgeschriebene Wohnfläche pro geflüchtete Person von 7 Quadratmetern als auch die Richtwerte für sozial geförderten Wohnraum eingehalten werden. Durch einfache Umnutzung, hohe Vorfertigung und flexible Strukturen ist das Gebäude als langfristig anpassbares, „unfertiges“ Haus angelegt.
Planung: 2019-2021, Ausführung: 2022-2025
Standort: Im Hasenbühl, 71101 Schönaich
BGF/BRI: 1751 m² / 5909 m3
Bauherr: Gemeinde Schönaich
Team: Florian Kaiser, Guobin Shen, Matthias Stauch, Tim Kölle, Yanghao Shu
Foto: Brigida González
In der kleinen Gemeinde Schönaich in Baden-Württemberg wurde ein Modellgebäude für bezahlbaren Wohnraum und Geflüchtete in innovativer Holzbauweise errichtet. Die Idee des Wohnheims basiert auf einer anspruchsvollen Gestaltung, die zukünftige Veränderungen zulässt und durch diese gar bereichert wird. Dabei bildet ein klar gerasterter Grundriss mit tragenden Brettsperrholz-Wandscheiben und ein umschließendes Gerüst die Überlagerung mehrerer Raumprogramme ab und ermöglicht somit eine fluide Umnutzung des Gebäudes. Somit konnten sowohl die vorgeschriebene Wohnfläche pro geflüchtete Person von 7 Quadratmetern als auch die Richtwerte für sozial geförderten Wohnraum eingehalten werden. Durch einfache Umnutzung, hohe Vorfertigung und flexible Strukturen ist das Gebäude als langfristig anpassbares, „unfertiges“ Haus angelegt.
Planung: 2019-2021, Ausführung: 2022-2025
Standort: Im Hasenbühl, 71101 Schönaich
BGF/BRI: 1751 m² / 5909 m3
Bauherr: Gemeinde Schönaich
Team: Florian Kaiser, Guobin Shen, Matthias Stauch, Tim Kölle, Yanghao Shu
Foto: Brigida González
In der kleinen Gemeinde Schönaich in Baden-Württemberg wurde ein Modellgebäude für bezahlbaren Wohnraum und Geflüchtete in innovativer Holzbauweise errichtet. Die Idee des Wohnheims basiert auf einer anspruchsvollen Gestaltung, die zukünftige Veränderungen zulässt und durch diese gar bereichert wird. Dabei bildet ein klar gerasterter Grundriss mit tragenden Brettsperrholz-Wandscheiben und ein umschließendes Gerüst die Überlagerung mehrerer Raumprogramme ab und ermöglicht somit eine fluide Umnutzung des Gebäudes. Somit konnten sowohl die vorgeschriebene Wohnfläche pro geflüchtete Person von 7 Quadratmetern als auch die Richtwerte für sozial geförderten Wohnraum eingehalten werden. Durch einfache Umnutzung, hohe Vorfertigung und flexible Strukturen ist das Gebäude als langfristig anpassbares, „unfertiges“ Haus angelegt.
Planung: 2019-2021, Ausführung: 2022-2025
Standort: Im Hasenbühl, 71101 Schönaich
BGF/BRI: 1751 m² / 5909 m3
Bauherr: Gemeinde Schönaich
Team: Florian Kaiser, Guobin Shen, Matthias Stauch, Tim Kölle, Yanghao Shu
Die Christuskirche in Waiblingen wurde 1927 erbaut und zwischenzeitlich mehrfach erweitert und umgebaut. Mit Blick auf das 100-jährige Jubiläum soll nun der Kirchenraum saniert werden. Dabei wird der Bestand größtenteils erhalten und behutsam mit wenigen Maßnahmen ergänzt. Die energetische Sanierung basiert auf einem absoluten Low-Tech-Konzept und bei der Materialwahl wird auf nachwachsende Baustoffe mit reversiblen Fügungen zurückgegriffen.
Planung: 2024–2025, Ausführung: 2026–2027
Standort: Bismarckstraße 1, 71332 Waiblingen
BGF/BRI: 1140 m² / 5079 m3
Bauherr: Evangelisch-methodistische Kirche Waiblingen
Team: Florian Kaiser, Kilian Juraschitz, Emilia Evertz, Liska Langensteiner, Arisa Stiebritz
Modellfoto: Patrick Schneider
Die Christuskirche in Waiblingen wurde 1927 erbaut und zwischenzeitlich mehrfach erweitert und umgebaut. Mit Blick auf das 100-jährige Jubiläum soll nun der Kirchenraum saniert werden. Dabei wird der Bestand größtenteils erhalten und behutsam mit wenigen Maßnahmen ergänzt. Die energetische Sanierung basiert auf einem absoluten Low-Tech-Konzept und bei der Materialwahl wird auf nachwachsende Baustoffe mit reversiblen Fügungen zurückgegriffen.
Planung: 2024–2025, Ausführung: 2026–2027
Standort: Bismarckstraße 1, 71332 Waiblingen
BGF/BRI: 1140 m² / 5079 m3
Bauherr: Evangelisch-methodistische Kirche Waiblingen
Team: Florian Kaiser, Kilian Juraschitz, Emilia Evertz, Liska Langensteiner, Arisa Stiebritz
Die Christuskirche in Waiblingen wurde 1927 erbaut und zwischenzeitlich mehrfach erweitert und umgebaut. Mit Blick auf das 100-jährige Jubiläum soll nun der Kirchenraum saniert werden. Dabei wird der Bestand größtenteils erhalten und behutsam mit wenigen Maßnahmen ergänzt. Die energetische Sanierung basiert auf einem absoluten Low-Tech-Konzept und bei der Materialwahl wird auf nachwachsende Baustoffe mit reversiblen Fügungen zurückgegriffen.
Planung: 2024–2025, Ausführung: 2026–2027
Standort: Bismarckstraße 1, 71332 Waiblingen
BGF/BRI: 1140 m² / 5079 m3
Bauherr: Evangelisch-methodistische Kirche Waiblingen
Team: Florian Kaiser, Kilian Juraschitz, Emilia Evertz, Liska Langensteiner, Arisa Stiebritz
Modellfoto: Patrick Schneider
Das heterogen anmutende EnBW-Areal in Stuttgart-Stöckach hat seine Wurzeln in der industriellen Moderne und erfuhr ab den 1950er Jahren ständige Erweiterungs- und Umbaumaßnahmen. In einer prozesshaften Umgestaltung wurden die identitätsstiftenden Bestandsgebäude sorgfältig kategorisiert und auf eine spätere Umnutzung bewertet. Der Bestand wird behutsam durch Neubauten ergänzt oder wo möglich in Holzbauweise aufgestockt. An anderer Stelle bilden radikale doppelgeschossige Einschnitte im Erdgeschoss neue Zugänge in das zuvor hermetisch abgeriegelte Quartier. Die Entwurfshaltung beim Wettbewerbsbeitrag des Stöckach-Areals verfolgt somit weniger eine Ideologie der Heroisierung des Bestandes, sondern vielmehr eine pragmatische und dennoch radikale Integration der vorgefundenen Bausubstanz und somit die Kontinuität der Stadtgeschichte.
Wettbewerb 2019, 2. Preis
Standort: Hackstraße / Heinrich-Baumann-Straße, 70190 Stuttgart
BGF/BRI: 111.736 m² / 275.335 m3
Bauherr: EnBW Energie Baden-Württemberg AG
Team: Florian Kaiser, Guobin Shen, Kilian Juraschitz, Yannic Schröder, Esther Rodriguez, Ilter Ünal, Sergi Egea Bohn
Beratung nachhaltige Stadtplanung: Prof. Dr. Helmut Bott
Das heterogen anmutende EnBW-Areal in Stuttgart-Stöckach hat seine Wurzeln in der industriellen Moderne und erfuhr ab den 1950er Jahren ständige Erweiterungs- und Umbaumaßnahmen. In einer prozesshaften Umgestaltung wurden die identitätsstiftenden Bestandsgebäude sorgfältig kategorisiert und auf eine spätere Umnutzung bewertet. Der Bestand wird behutsam durch Neubauten ergänzt oder wo möglich in Holzbauweise aufgestockt. An anderer Stelle bilden radikale doppelgeschossige Einschnitte im Erdgeschoss neue Zugänge in das zuvor hermetisch abgeriegelte Quartier. Die Entwurfshaltung beim Wettbewerbsbeitrag des Stöckach-Areals verfolgt somit weniger eine Ideologie der Heroisierung des Bestandes, sondern vielmehr eine pragmatische und dennoch radikale Integration der vorgefundenen Bausubstanz und somit die Kontinuität der Stadtgeschichte.
Wettbewerb 2019, 2. Preis
Standort: Hackstraße / Heinrich-Baumann-Straße, 70190 Stuttgart
BGF/BRI: 111.736 m² / 275.335 m3
Bauherr: EnBW Energie Baden-Württemberg AG
Team: Florian Kaiser, Guobin Shen, Kilian Juraschitz, Yannic Schröder, Esther Rodriguez, Ilter Ünal, Sergi Egea Bohn
Beratung nachhaltige Stadtplanung: Prof. Dr. Helmut Bott
Visualisierung: April Studios
Das heterogen anmutende EnBW-Areal in Stuttgart-Stöckach hat seine Wurzeln in der industriellen Moderne und erfuhr ab den 1950er Jahren ständige Erweiterungs- und Umbaumaßnahmen. In einer prozesshaften Umgestaltung wurden die identitätsstiftenden Bestandsgebäude sorgfältig kategorisiert und auf eine spätere Umnutzung bewertet. Der Bestand wird behutsam durch Neubauten ergänzt oder wo möglich in Holzbauweise aufgestockt. An anderer Stelle bilden radikale doppelgeschossige Einschnitte im Erdgeschoss neue Zugänge in das zuvor hermetisch abgeriegelte Quartier. Die Entwurfshaltung beim Wettbewerbsbeitrag des Stöckach-Areals verfolgt somit weniger eine Ideologie der Heroisierung des Bestandes, sondern vielmehr eine pragmatische und dennoch radikale Integration der vorgefundenen Bausubstanz und somit die Kontinuität der Stadtgeschichte.
Wettbewerb 2019, 2. Preis
Standort: Hackstraße / Heinrich-Baumann-Straße, 70190 Stuttgart
BGF/BRI: 111.736 m² / 275.335 m3
Bauherr: EnBW Energie Baden-Württemberg AG
Team: Florian Kaiser, Guobin Shen, Kilian Juraschitz, Yannic Schröder, Esther Rodriguez, Ilter Ünal, Sergi Egea Bohn
Beratung nachhaltige Stadtplanung: Prof. Dr. Helmut Bott
Um auf immer knapper werdenden Wohnraum zu reagieren, werden beim Haus B neue Wohntypologien untersucht. Hierbei ist das Ziel, die individuelle Wohnfläche radikal zu reduzieren und gleichzeitig durch Gemeinschaftsflächen höhere Wohnqualität zu erreichen. Die beiden Mehrfamilienhäuser teilen sich eine gemeinsame außenliegende Erschließung, wodurch einerseits alle Geschosse barrierefrei erreichbar sind und andererseits ein offener Begegnungs- und Kommunikationsraum entsteht. Die Dachform bildet parallel die Topografie nach und bindet beide Häuser zusammen. Gemeinschaft entsteht und wird nach außen hin sichtbar.
Planung: 2019-2021 Ausführung 2021-2025
Standort: 73776 Altbach
BGF/BRI: 2100 m² / 4900 m3
Bauherr: Privat
Team: Florian Kaiser, Guobin Shen, Mattias Stauch, Esther Rodriguez
Um auf immer knapper werdenden Wohnraum zu reagieren, werden beim Haus B neue Wohntypologien untersucht. Hierbei ist das Ziel, die individuelle Wohnfläche radikal zu reduzieren und gleichzeitig durch Gemeinschaftsflächen höhere Wohnqualität zu erreichen. Die beiden Mehrfamilienhäuser teilen sich eine gemeinsame außenliegende Erschließung, wodurch einerseits alle Geschosse barrierefrei erreichbar sind und andererseits ein offener Begegnungs- und Kommunikationsraum entsteht. Die Dachform bildet parallel die Topografie nach und bindet beide Häuser zusammen. Gemeinschaft entsteht und wird nach außen hin sichtbar.
Planung: 2019-2021 Ausführung 2021-2025
Standort: 73776 Altbach
BGF/BRI: 2100 m² / 4900 m3
Bauherr: Privat
Team: Florian Kaiser, Guobin Shen, Mattias Stauch, Esther Rodriguez
Ein Mikrohaus in der Stadt? Das klingt nach einer schönen Idee, funktioniert jedoch leider in der Realität nicht. Die bisherigen Mikrohäuser können nur dann überleben, wenn sie von der umliegenden Landschaft profitieren. Beispielsweise auf einer grünen Wiese oder direkt am See. Innerhalb einer gewissen städtischen Dichte geht die Wohnqualität des herkömmlichen Mikrohauses verloren. Nicht so beim Mikrohofhaus. Zwar wird der thermisch gedämmte Raum auf ein absolutes Minimum von 7,5 m² reduziert, dafür besitzt es einen großen Wohngarten, der das Haus großzügig wirken lässt. Der Raum wird optisch bis zur Hofmauer wahrgenommen. Bei gutem Wetter verschmilzt das Haus bei geöffneten Türen mit dem Garten, dessen Brunnen eine wirksame Akustikmaßnahme gegen den Straßenlärm darstellt.
Wettbewerb 2017, 1. Preis
Realisierung 2018
Standort: Sternkreuzung Ludwigsburg
NUF: 7,3 m², inkl. Hof 35m²
Bauherr: Stadt Ludwigsburg
Team: Florian Kaiser, Guobin Shen, Hans-Christian Bäcker
Preise: Architizer A+Award: Shortlist; Raumpioniere: Wohnen auf kleinstem Raum, 2017: 1. Preis
Veröffentlichungen: Amber Sayah: Architekturstadt Stuttgart (ISBN-13: 978-3763028030), ArchDaily 18.04.2018, DBZ, 7/8 2018, AIT 7/8 2018, Baumeister 28.05.2018, L’Architecture d’Aujourd’hui 08/2018, Stuttgarter Zeitung 30.11.2017, LKZ 22.03.2018, MD 01/ 2018, LKZ 27.11.2017
Fotos: Nicolai Rapp
Ein Mikrohaus in der Stadt? Das klingt nach einer schönen Idee, funktioniert jedoch leider in der Realität nicht. Die bisherigen Mikrohäuser können nur dann überleben, wenn sie von der umliegenden Landschaft profitieren. Beispielsweise auf einer grünen Wiese oder direkt am See. Innerhalb einer gewissen städtischen Dichte geht die Wohnqualität des herkömmlichen Mikrohauses verloren. Nicht so beim Mikrohofhaus. Zwar wird der thermisch gedämmte Raum auf ein absolutes Minimum von 7,5 m² reduziert, dafür besitzt es einen großen Wohngarten, der das Haus großzügig wirken lässt. Der Raum wird optisch bis zur Hofmauer wahrgenommen. Bei gutem Wetter verschmilzt das Haus bei geöffneten Türen mit dem Garten, dessen Brunnen eine wirksame Akustikmaßnahme gegen den Straßenlärm darstellt.
Wettbewerb 2017, 1. Preis
Realisierung 2018
Standort: Sternkreuzung Ludwigsburg
NUF: 7,3 m², inkl. Hof 35m²
Bauherr: Stadt Ludwigsburg
Team: Florian Kaiser, Guobin Shen, Hans-Christian Bäcker
Preise: Architizer A+Award: Shortlist; Raumpioniere: Wohnen auf kleinstem Raum, 2017: 1. Preis
Veröffentlichungen: Amber Sayah: Architekturstadt Stuttgart (ISBN-13: 978-3763028030), ArchDaily 18.04.2018, DBZ, 7/8 2018, AIT 7/8 2018, Baumeister 28.05.2018, L’Architecture d’Aujourd’hui 08/2018, Stuttgarter Zeitung 30.11.2017, LKZ 22.03.2018, MD 01/ 2018, LKZ 27.11.2017
Fotos: Nicolai Rapp
Ein Mikrohaus in der Stadt? Das klingt nach einer schönen Idee, funktioniert jedoch leider in der Realität nicht. Die bisherigen Mikrohäuser können nur dann überleben, wenn sie von der umliegenden Landschaft profitieren. Beispielsweise auf einer grünen Wiese oder direkt am See. Innerhalb einer gewissen städtischen Dichte geht die Wohnqualität des herkömmlichen Mikrohauses verloren. Nicht so beim Mikrohofhaus. Zwar wird der thermisch gedämmte Raum auf ein absolutes Minimum von 7,5 m² reduziert, dafür besitzt es einen großen Wohngarten, der das Haus großzügig wirken lässt. Der Raum wird optisch bis zur Hofmauer wahrgenommen. Bei gutem Wetter verschmilzt das Haus bei geöffneten Türen mit dem Garten, dessen Brunnen eine wirksame Akustikmaßnahme gegen den Straßenlärm darstellt.
Wettbewerb 2017, 1. Preis
Realisierung 2018
Standort: Sternkreuzung Ludwigsburg
NUF: 7,3 m², inkl. Hof 35m²
Bauherr: Stadt Ludwigsburg
Team: Florian Kaiser, Guobin Shen, Hans-Christian Bäcker
Preise: Architizer A+Award: Shortlist; Raumpioniere: Wohnen auf kleinstem Raum, 2017: 1. Preis
Veröffentlichungen: Amber Sayah: Architekturstadt Stuttgart (ISBN-13: 978-3763028030), ArchDaily 18.04.2018, DBZ, 7/8 2018, AIT 7/8 2018, Baumeister 28.05.2018, L’Architecture d’Aujourd’hui 08/2018, Stuttgarter Zeitung 30.11.2017, LKZ 22.03.2018, MD 01/ 2018, LKZ 27.11.2017
Fotos: Nicolai Rapp
Ein Mikrohaus in der Stadt? Das klingt nach einer schönen Idee, funktioniert jedoch leider in der Realität nicht. Die bisherigen Mikrohäuser können nur dann überleben, wenn sie von der umliegenden Landschaft profitieren. Beispielsweise auf einer grünen Wiese oder direkt am See. Innerhalb einer gewissen städtischen Dichte geht die Wohnqualität des herkömmlichen Mikrohauses verloren. Nicht so beim Mikrohofhaus. Zwar wird der thermisch gedämmte Raum auf ein absolutes Minimum von 7,5 m² reduziert, dafür besitzt es einen großen Wohngarten, der das Haus großzügig wirken lässt. Der Raum wird optisch bis zur Hofmauer wahrgenommen. Bei gutem Wetter verschmilzt das Haus bei geöffneten Türen mit dem Garten, dessen Brunnen eine wirksame Akustikmaßnahme gegen den Straßenlärm darstellt.
Wettbewerb 2017, 1. Preis
Realisierung 2018
Standort: Sternkreuzung Ludwigsburg
NUF: 7,3 m², inkl. Hof 35m²
Bauherr: Stadt Ludwigsburg
Team: Florian Kaiser, Guobin Shen, Hans-Christian Bäcker
Preise: Architizer A+Award: Shortlist; Raumpioniere: Wohnen auf kleinstem Raum, 2017: 1. Preis
Veröffentlichungen: Amber Sayah: Architekturstadt Stuttgart (ISBN-13: 978-3763028030), ArchDaily 18.04.2018, DBZ, 7/8 2018, AIT 7/8 2018, Baumeister 28.05.2018, L’Architecture d’Aujourd’hui 08/2018, Stuttgarter Zeitung 30.11.2017, LKZ 22.03.2018, MD 01/ 2018, LKZ 27.11.2017
Fotos: Nicolai Rapp
Ein Mikrohaus in der Stadt? Das klingt nach einer schönen Idee, funktioniert jedoch leider in der Realität nicht. Die bisherigen Mikrohäuser können nur dann überleben, wenn sie von der umliegenden Landschaft profitieren. Beispielsweise auf einer grünen Wiese oder direkt am See. Innerhalb einer gewissen städtischen Dichte geht die Wohnqualität des herkömmlichen Mikrohauses verloren. Nicht so beim Mikrohofhaus. Zwar wird der thermisch gedämmte Raum auf ein absolutes Minimum von 7,5 m² reduziert, dafür besitzt es einen großen Wohngarten, der das Haus großzügig wirken lässt. Der Raum wird optisch bis zur Hofmauer wahrgenommen. Bei gutem Wetter verschmilzt das Haus bei geöffneten Türen mit dem Garten, dessen Brunnen eine wirksame Akustikmaßnahme gegen den Straßenlärm darstellt.
Wettbewerb 2017, 1. Preis
Realisierung 2018
Standort: Sternkreuzung Ludwigsburg
NUF: 7,3 m², inkl. Hof 35m²
Bauherr: Stadt Ludwigsburg
Team: Florian Kaiser, Guobin Shen, Hans-Christian Bäcker
Preise: Architizer A+Award: Shortlist; Raumpioniere: Wohnen auf kleinstem Raum, 2017: 1. Preis
Veröffentlichungen: Amber Sayah: Architekturstadt Stuttgart (ISBN-13: 978-3763028030), ArchDaily 18.04.2018, DBZ, 7/8 2018, AIT 7/8 2018, Baumeister 28.05.2018, L’Architecture d’Aujourd’hui 08/2018, Stuttgarter Zeitung 30.11.2017, LKZ 22.03.2018, MD 01/ 2018, LKZ 27.11.2017
Fotos: Nicolai Rapp
Ein Mikrohaus in der Stadt? Das klingt nach einer schönen Idee, funktioniert jedoch leider in der Realität nicht. Die bisherigen Mikrohäuser können nur dann überleben, wenn sie von der umliegenden Landschaft profitieren. Beispielsweise auf einer grünen Wiese oder direkt am See. Innerhalb einer gewissen städtischen Dichte geht die Wohnqualität des herkömmlichen Mikrohauses verloren. Nicht so beim Mikrohofhaus. Zwar wird der thermisch gedämmte Raum auf ein absolutes Minimum von 7,5 m² reduziert, dafür besitzt es einen großen Wohngarten, der das Haus großzügig wirken lässt. Der Raum wird optisch bis zur Hofmauer wahrgenommen. Bei gutem Wetter verschmilzt das Haus bei geöffneten Türen mit dem Garten, dessen Brunnen eine wirksame Akustikmaßnahme gegen den Straßenlärm darstellt.
Wettbewerb 2017, 1. Preis
Realisierung 2018
Standort: Sternkreuzung Ludwigsburg
NUF: 7,3 m², inkl. Hof 35m²
Bauherr: Stadt Ludwigsburg
Team: Florian Kaiser, Guobin Shen, Hans-Christian Bäcker
Preise: Architizer A+Award: Shortlist; Raumpioniere: Wohnen auf kleinstem Raum, 2017: 1. Preis
Veröffentlichungen: Amber Sayah: Architekturstadt Stuttgart (ISBN-13: 978-3763028030), ArchDaily 18.04.2018, DBZ, 7/8 2018, AIT 7/8 2018, Baumeister 28.05.2018, L’Architecture d’Aujourd’hui 08/2018, Stuttgarter Zeitung 30.11.2017, LKZ 22.03.2018, MD 01/ 2018, LKZ 27.11.2017
Fotos: Nicolai Rapp
Ein Mikrohaus in der Stadt? Das klingt nach einer schönen Idee, funktioniert jedoch leider in der Realität nicht. Die bisherigen Mikrohäuser können nur dann überleben, wenn sie von der umliegenden Landschaft profitieren. Beispielsweise auf einer grünen Wiese oder direkt am See. Innerhalb einer gewissen städtischen Dichte geht die Wohnqualität des herkömmlichen Mikrohauses verloren. Nicht so beim Mikrohofhaus. Zwar wird der thermisch gedämmte Raum auf ein absolutes Minimum von 7,5 m² reduziert, dafür besitzt es einen großen Wohngarten, der das Haus großzügig wirken lässt. Der Raum wird optisch bis zur Hofmauer wahrgenommen. Bei gutem Wetter verschmilzt das Haus bei geöffneten Türen mit dem Garten, dessen Brunnen eine wirksame Akustikmaßnahme gegen den Straßenlärm darstellt.
Wettbewerb 2017, 1. Preis
Realisierung 2018
Standort: Sternkreuzung Ludwigsburg
NUF: 7,3 m², inkl. Hof 35m²
Bauherr: Stadt Ludwigsburg
Team: Florian Kaiser, Guobin Shen, Hans-Christian Bäcker
Preise: Architizer A+Award: Shortlist; Raumpioniere: Wohnen auf kleinstem Raum, 2017: 1. Preis
Veröffentlichungen: Amber Sayah: Architekturstadt Stuttgart (ISBN-13: 978-3763028030), ArchDaily 18.04.2018, DBZ, 7/8 2018, AIT 7/8 2018, Baumeister 28.05.2018, L’Architecture d’Aujourd’hui 08/2018, Stuttgarter Zeitung 30.11.2017, LKZ 22.03.2018, MD 01/ 2018, LKZ 27.11.2017
Fotos: Nicolai Rapp
Ein Mikrohaus in der Stadt? Das klingt nach einer schönen Idee, funktioniert jedoch leider in der Realität nicht. Die bisherigen Mikrohäuser können nur dann überleben, wenn sie von der umliegenden Landschaft profitieren. Beispielsweise auf einer grünen Wiese oder direkt am See. Innerhalb einer gewissen städtischen Dichte geht die Wohnqualität des herkömmlichen Mikrohauses verloren. Nicht so beim Mikrohofhaus. Zwar wird der thermisch gedämmte Raum auf ein absolutes Minimum von 7,5 m² reduziert, dafür besitzt es einen großen Wohngarten, der das Haus großzügig wirken lässt. Der Raum wird optisch bis zur Hofmauer wahrgenommen. Bei gutem Wetter verschmilzt das Haus bei geöffneten Türen mit dem Garten, dessen Brunnen eine wirksame Akustikmaßnahme gegen den Straßenlärm darstellt.
Wettbewerb 2017, 1. Preis
Realisierung 2018
Standort: Sternkreuzung Ludwigsburg
NUF: 7,3 m², inkl. Hof 35m²
Bauherr: Stadt Ludwigsburg
Team: Florian Kaiser, Guobin Shen, Hans-Christian Bäcker
Preise: Architizer A+Award: Shortlist; Raumpioniere: Wohnen auf kleinstem Raum, 2017: 1. Preis
Veröffentlichungen: Amber Sayah: Architekturstadt Stuttgart (ISBN-13: 978-3763028030), ArchDaily 18.04.2018, DBZ, 7/8 2018, AIT 7/8 2018, Baumeister 28.05.2018, L’Architecture d’Aujourd’hui 08/2018, Stuttgarter Zeitung 30.11.2017, LKZ 22.03.2018, MD 01/ 2018, LKZ 27.11.2017
Fotos: Nicolai Rapp
Ein Mikrohaus in der Stadt? Das klingt nach einer schönen Idee, funktioniert jedoch leider in der Realität nicht. Die bisherigen Mikrohäuser können nur dann überleben, wenn sie von der umliegenden Landschaft profitieren. Beispielsweise auf einer grünen Wiese oder direkt am See. Innerhalb einer gewissen städtischen Dichte geht die Wohnqualität des herkömmlichen Mikrohauses verloren. Nicht so beim Mikrohofhaus. Zwar wird der thermisch gedämmte Raum auf ein absolutes Minimum von 7,5 m² reduziert, dafür besitzt es einen großen Wohngarten, der das Haus großzügig wirken lässt. Der Raum wird optisch bis zur Hofmauer wahrgenommen. Bei gutem Wetter verschmilzt das Haus bei geöffneten Türen mit dem Garten, dessen Brunnen eine wirksame Akustikmaßnahme gegen den Straßenlärm darstellt.
Wettbewerb 2017, 1. Preis
Realisierung 2018
Standort: Sternkreuzung Ludwigsburg
NUF: 7,3 m², inkl. Hof 35m²
Bauherr: Stadt Ludwigsburg
Team: Florian Kaiser, Guobin Shen, Hans-Christian Bäcker
Preise: Architizer A+Award: Shortlist; Raumpioniere: Wohnen auf kleinstem Raum, 2017: 1. Preis
Veröffentlichungen: Amber Sayah: Architekturstadt Stuttgart (ISBN-13: 978-3763028030), ArchDaily 18.04.2018, DBZ, 7/8 2018, AIT 7/8 2018, Baumeister 28.05.2018, L’Architecture d’Aujourd’hui 08/2018, Stuttgarter Zeitung 30.11.2017, LKZ 22.03.2018, MD 01/ 2018, LKZ 27.11.2017
Fotos: Nicolai Rapp
Ein Mikrohaus in der Stadt? Das klingt nach einer schönen Idee, funktioniert jedoch leider in der Realität nicht. Die bisherigen Mikrohäuser können nur dann überleben, wenn sie von der umliegenden Landschaft profitieren. Beispielsweise auf einer grünen Wiese oder direkt am See. Innerhalb einer gewissen städtischen Dichte geht die Wohnqualität des herkömmlichen Mikrohauses verloren. Nicht so beim Mikrohofhaus. Zwar wird der thermisch gedämmte Raum auf ein absolutes Minimum von 7,5 m² reduziert, dafür besitzt es einen großen Wohngarten, der das Haus großzügig wirken lässt. Der Raum wird optisch bis zur Hofmauer wahrgenommen. Bei gutem Wetter verschmilzt das Haus bei geöffneten Türen mit dem Garten, dessen Brunnen eine wirksame Akustikmaßnahme gegen den Straßenlärm darstellt.
Wettbewerb 2017, 1. Preis
Realisierung 2018
Standort: Sternkreuzung Ludwigsburg
NUF: 7,3 m², inkl. Hof 35m²
Bauherr: Stadt Ludwigsburg
Team: Florian Kaiser, Guobin Shen, Hans-Christian Bäcker
Preise: Architizer A+Award: Shortlist; Raumpioniere: Wohnen auf kleinstem Raum, 2017: 1. Preis
Veröffentlichungen: Amber Sayah: Architekturstadt Stuttgart (ISBN-13: 978-3763028030), ArchDaily 18.04.2018, DBZ, 7/8 2018, AIT 7/8 2018, Baumeister 28.05.2018, L’Architecture d’Aujourd’hui 08/2018, Stuttgarter Zeitung 30.11.2017, LKZ 22.03.2018, MD 01/ 2018, LKZ 27.11.2017
Fotos: Nicolai Rapp
Zusammen mit dem Stadtteilzentrum Michaelsplatz sollte das Wettbewerbsgebiet mit dem Hochhaus an der Kreuzung Schillerstraße / Mühlstraße als Knotenpunkt ausgebildet werden und neue Aufenthaltsmöglichkeiten für die Bewohner bieten. Durch Sanierung des Bestandsbaus erhält neben der thermischen Ertüchtigung auch eine neue Fassade. Umlaufende Balkone werten nicht nur die individuellen Wohnungen auf, sondern geben dem Turm auch ein neues Gesicht. Die besondere architektonische Ausformulierung des Obergeschosses schließt den Turm elegant ab.
Bei der Ertüchtigung bietet sich auch die Möglichkeit die Wohngrundrisse zu optimieren, um den neuen Anforderungen an zeitgenössischem Wohnen gerecht zu werden. Durch diese behutsamen Eingriffe erhalten die Grundrisse eine klare Struktur und eine größere Flexibilität und Vielfältigkeit an Wohntypologien. Die Verdrehung des umlaufenden Balkons im Vergleich zum Bestandsbau bietet vielzählige Vorteile. Einerseits entstehen so in jeder Wohneinheit unterschiedlich tiefe Balkone und andererseits kann so das Fluchttreppenhaus elegant integriert werden.
Europan 14 Wettbewerb 2017, 1. Preis
Planung: 2018 –
Standort: Aschaffenburg „Damm“, Mühlstraße
Projektgebiet: ca. 3,3 ha
BGF: 9500m²
Bauherr: GBW Gruppe
Team: Guobin Shen, Kilian Juraschitz
Veröffentlichungen: Bauwelt 1/2018
Zusammen mit dem Stadtteilzentrum Michaelsplatz sollte das Wettbewerbsgebiet mit dem Hochhaus an der Kreuzung Schillerstraße / Mühlstraße als Knotenpunkt ausgebildet werden und neue Aufenthaltsmöglichkeiten für die Bewohner bieten. Durch Sanierung des Bestandsbaus erhält neben der thermischen Ertüchtigung auch eine neue Fassade. Umlaufende Balkone werten nicht nur die individuellen Wohnungen auf, sondern geben dem Turm auch ein neues Gesicht. Die besondere architektonische Ausformulierung des Obergeschosses schließt den Turm elegant ab.
Bei der Ertüchtigung bietet sich auch die Möglichkeit die Wohngrundrisse zu optimieren, um den neuen Anforderungen an zeitgenössischem Wohnen gerecht zu werden. Durch diese behutsamen Eingriffe erhalten die Grundrisse eine klare Struktur und eine größere Flexibilität und Vielfältigkeit an Wohntypologien. Die Verdrehung des umlaufenden Balkons im Vergleich zum Bestandsbau bietet vielzählige Vorteile. Einerseits entstehen so in jeder Wohneinheit unterschiedlich tiefe Balkone und andererseits kann so das Fluchttreppenhaus elegant integriert werden.
Europan 14 Wettbewerb 2017, 1. Preis
Planung: 2018 –
Standort: Aschaffenburg „Damm“, Mühlstraße
Projektgebiet: ca. 3,3 ha
BGF: 9500m²
Bauherr: GBW Gruppe
Team: Guobin Shen, Kilian Juraschitz
Veröffentlichungen: Bauwelt 1/2018
Zusammen mit dem Stadtteilzentrum Michaelsplatz sollte das Wettbewerbsgebiet mit dem Hochhaus an der Kreuzung Schillerstraße / Mühlstraße als Knotenpunkt ausgebildet werden und neue Aufenthaltsmöglichkeiten für die Bewohner bieten. Durch Sanierung des Bestandsbaus erhält neben der thermischen Ertüchtigung auch eine neue Fassade. Umlaufende Balkone werten nicht nur die individuellen Wohnungen auf, sondern geben dem Turm auch ein neues Gesicht. Die besondere architektonische Ausformulierung des Obergeschosses schließt den Turm elegant ab.
Bei der Ertüchtigung bietet sich auch die Möglichkeit die Wohngrundrisse zu optimieren, um den neuen Anforderungen an zeitgenössischem Wohnen gerecht zu werden. Durch diese behutsamen Eingriffe erhalten die Grundrisse eine klare Struktur und eine größere Flexibilität und Vielfältigkeit an Wohntypologien. Die Verdrehung des umlaufenden Balkons im Vergleich zum Bestandsbau bietet vielzählige Vorteile. Einerseits entstehen so in jeder Wohneinheit unterschiedlich tiefe Balkone und andererseits kann so das Fluchttreppenhaus elegant integriert werden.
Europan 14 Wettbewerb 2017, 1. Preis
Planung: 2018 –
Standort: Aschaffenburg „Damm“, Mühlstraße
Projektgebiet: ca. 3,3 ha
BGF: 9500m²
Bauherr: GBW Gruppe
Team: Guobin Shen, Kilian Juraschitz
Veröffentlichungen: Bauwelt 1/2018
Zusammen mit dem Stadtteilzentrum Michaelsplatz sollte das Wettbewerbsgebiet mit dem Hochhaus an der Kreuzung Schillerstraße / Mühlstraße als Knotenpunkt ausgebildet werden und neue Aufenthaltsmöglichkeiten für die Bewohner bieten. Durch Sanierung des Bestandsbaus erhält neben der thermischen Ertüchtigung auch eine neue Fassade. Umlaufende Balkone werten nicht nur die individuellen Wohnungen auf, sondern geben dem Turm auch ein neues Gesicht. Die besondere architektonische Ausformulierung des Obergeschosses schließt den Turm elegant ab.
Bei der Ertüchtigung bietet sich auch die Möglichkeit die Wohngrundrisse zu optimieren, um den neuen Anforderungen an zeitgenössischem Wohnen gerecht zu werden. Durch diese behutsamen Eingriffe erhalten die Grundrisse eine klare Struktur und eine größere Flexibilität und Vielfältigkeit an Wohntypologien. Die Verdrehung des umlaufenden Balkons im Vergleich zum Bestandsbau bietet vielzählige Vorteile. Einerseits entstehen so in jeder Wohneinheit unterschiedlich tiefe Balkone und andererseits kann so das Fluchttreppenhaus elegant integriert werden.
Europan 14 Wettbewerb 2017, 1. Preis
Planung: 2018 –
Standort: Aschaffenburg „Damm“, Mühlstraße
Projektgebiet: ca. 3,3 ha
BGF: 9500m²
Bauherr: GBW Gruppe
Team: Guobin Shen, Kilian Juraschitz
Veröffentlichungen: Bauwelt 1/2018
Künstler unbekannt, Kuriositätenbox des Kaisers Qianlong, Qing-Dynastie
Das experimentelle Projekt lotet die Grenze zwischen einem Wohnhaus und einer zweckbefreiten Skulptur aus. Dazu wird auf eine thermische Hülle und feste Installationen verzichtet. Dennoch kann in der Wohnskulptur temporär gelebt und gearbeitet werden. Die Räume bieten eine größtmögliche Pluralität: Introvertierte, nach Innen gerichtete Räume, stehen im Kontrast zu extrovertierten Räumen mit Blick in den Garten. Die Belichtung erfolgt zenital von oben, seitlich oder von unten. Die Skulptur wurde auf einer Grundfläche von 5,7 x 5,7 Metern entwickelt, ist jedoch in der Größe frei skalierbar.
Planung: 2020, Ausführung: 2021
Standort: Rudolf-Breitscheid-Straße 47, 14482 Potsdam
BGF/BRI: 32 m² / 82 m3
Bauherr: Felix & Tobias Dippner
Team: Florian Kaiser, Guobin Shen, Yanghao Shu, Liwen Zhu
Das experimentelle Projekt lotet die Grenze zwischen einem Wohnhaus und einer zweckbefreiten Skulptur aus. Dazu wird auf eine thermische Hülle und feste Installationen verzichtet. Dennoch kann in der Wohnskulptur temporär gelebt und gearbeitet werden. Die Räume bieten eine größtmögliche Pluralität: Introvertierte, nach Innen gerichtete Räume, stehen im Kontrast zu extrovertierten Räumen mit Blick in den Garten. Die Belichtung erfolgt zenital von oben, seitlich oder von unten. Die Skulptur wurde auf einer Grundfläche von 5,7 x 5,7 Metern entwickelt, ist jedoch in der Größe frei skalierbar.
Planung: 2020, Ausführung: 2021
Standort: Rudolf-Breitscheid-Straße 47, 14482 Potsdam
BGF/BRI: 32 m² / 82 m3
Bauherr: Felix & Tobias Dippner
Team: Florian Kaiser, Guobin Shen, Yanghao Shu, Liwen Zhu
Lehmhaus, Achmas, Marokko
Räuberhöhle, Wuyi-Gebirge, China
Der Doppelkindergarten und die Tagesschule bilden gemeinsam ein 2-geschossiges pavillonartiges Gebäude. Im Obergeschoss befindet sich ausschließlich die Tagesschule, die um einen gemeinsamen Hof angeordnet ist und bildet somit eine eigene Welt. Durch die zusätzliche Belichtung über den Hof erhalten alle Aufenthaltsräume Licht von zwei Seiten. Entweder vom Hof und der außenliegenden Fassade, oder bei den Eckräumen über zwei Fassadenseiten. Der Hof dient nicht nur als Aussenschulzimmer für die kleineren Kinder, sondern auch als Verbindung zu den Außenanlagen im Erdgeschoss. Durch eine großzügige einläufige Treppe gelangt man direkt auf das Erdniveau. Durch geschickte Anordnung sind die Aufenthaltsräume flexibel teilbar und auch optimal miteinander verbunden. Die Schiebetüröffnungen entlang der Fassade liegen exakt gegenüber und bilden eine Enfilade. Im Gebäude ergeben sich somit vielfältige Rundläufe in der Erschließung sowie weite Ausblicke in die Landschaft.
Wettbewerb 2018
Standort: Solothurn, Schweiz
BGF/BRI: 1319 m² / 5014 m3
Bauherr: Stadt Solothurn
Team: Florian Kaiser, Guobin Shen,
Zuzana Chupacova, Kaina Hu
Visualisierung: Hans-Christian Bäcker, Tuan Nguyen
Landschaftsarchitektur: Markus S. Herthneck
Der Doppelkindergarten und die Tagesschule bilden gemeinsam ein 2-geschossiges pavillonartiges Gebäude. Im Obergeschoss befindet sich ausschließlich die Tagesschule, die um einen gemeinsamen Hof angeordnet ist und bildet somit eine eigene Welt. Durch die zusätzliche Belichtung über den Hof erhalten alle Aufenthaltsräume Licht von zwei Seiten. Entweder vom Hof und der außenliegenden Fassade, oder bei den Eckräumen über zwei Fassadenseiten. Der Hof dient nicht nur als Aussenschulzimmer für die kleineren Kinder, sondern auch als Verbindung zu den Außenanlagen im Erdgeschoss. Durch eine großzügige einläufige Treppe gelangt man direkt auf das Erdniveau. Durch geschickte Anordnung sind die Aufenthaltsräume flexibel teilbar und auch optimal miteinander verbunden. Die Schiebetüröffnungen entlang der Fassade liegen exakt gegenüber und bilden eine Enfilade. Im Gebäude ergeben sich somit vielfältige Rundläufe in der Erschließung sowie weite Ausblicke in die Landschaft.
Wettbewerb 2018
Standort: Solothurn, Schweiz
BGF/BRI: 1319 m² / 5014 m3
Bauherr: Stadt Solothurn
Team: Florian Kaiser, Guobin Shen,
Zuzana Chupacova, Kaina Hu
Visualisierung: Hans-Christian Bäcker, Tuan Nguyen
Landschaftsarchitektur: Markus S. Herthneck
Der Doppelkindergarten und die Tagesschule bilden gemeinsam ein 2-geschossiges pavillonartiges Gebäude. Im Obergeschoss befindet sich ausschließlich die Tagesschule, die um einen gemeinsamen Hof angeordnet ist und bildet somit eine eigene Welt. Durch die zusätzliche Belichtung über den Hof erhalten alle Aufenthaltsräume Licht von zwei Seiten. Entweder vom Hof und der außenliegenden Fassade, oder bei den Eckräumen über zwei Fassadenseiten. Der Hof dient nicht nur als Aussenschulzimmer für die kleineren Kinder, sondern auch als Verbindung zu den Außenanlagen im Erdgeschoss. Durch eine großzügige einläufige Treppe gelangt man direkt auf das Erdniveau. Durch geschickte Anordnung sind die Aufenthaltsräume flexibel teilbar und auch optimal miteinander verbunden. Die Schiebetüröffnungen entlang der Fassade liegen exakt gegenüber und bilden eine Enfilade. Im Gebäude ergeben sich somit vielfältige Rundläufe in der Erschließung sowie weite Ausblicke in die Landschaft.
Wettbewerb 2018
Standort: Solothurn, Schweiz
BGF/BRI: 1319 m² / 5014 m3
Bauherr: Stadt Solothurn
Team: Florian Kaiser, Guobin Shen,
Zuzana Chupacova, Kaina Hu
Visualisierung: Hans-Christian Bäcker, Tuan Nguyen
Landschaftsarchitektur: Markus S. Herthneck
Uffizien, Florenz
Sommerpalast, Peking
Der Verkaufsraum der Seeapotheke ist vierseitig in Eichenholz ausgekleidet und vermittelt somit das warme, geborgene Gefühl einer Jahrhunderte alten Apotheke. Gleichwohl ist der gesamte Raum klar geometrisch gegliedert und lebt von einem Wechselspiel aus Symmetrie und Asymmetrie. Die rahmenlosen Fenster lassen die Grenze zwischen Innen und Außen verschwimmen und so den Raum größer wirken. Ein großzügiges Sitzfenster lädt zum Verweilen ein. Besonderes Augenmerk beim Entwurf wurde auf die Abläufe innerhalb der Apotheke gelegt. So hat der Kunde vom Verkaufsraum aus durch ein Fenster direkten Blickkontakt ins Labor.
Planung: 2012-2013
Ausführung: 2013
Standort: Hauptstr. 8, 78351 Ludwigshafen
NUF: 200 m² davon 75 m² Verkaufsfläche
Bauherr: Pinelopi Argiti
Team: Florian Kaiser, Guobin Shen
Bauleitung: Ariel Wagner
Wuyi-Gebirge, China
Lehmhaus, Lamkatra, Marokko
Fujian Tulou, China

Atelier Kaiser Shen BDA
Prof. Florian Kaiser, Kilian Juraschitz
Alexanderstraße 11, 70184 Stuttgart
+49 711 66453020, info@atelierkaisershen.com
Das Stuttgarter Atelier Kaiser Shen wurde 2017 von Florian Kaiser und Guobin Shen gegründet und bearbeitet Projekte in unterschiedlichen Maßstäben. Ihre Arbeiten wurden mehrfach publiziert und ausgezeichnet, so zum Haus des Jahres 2023, dem AR House Award 2024, dem Deutschen Architekturpreis 2025 (Auszeichnung) und zuletzt als Sieger beim Deutschen Nachhaltigkeitspreis Architektur 2025. 2020 erfolgte die Berufung in den Bund Deutscher Architektinnen und Architekten (BDA) und 2022 die erste Einzelausstellung mit dem Titel „Unfertige Häuser“ in der Architekturgalerie am Weißenhof. Seit September 2025 führt Florian Kaiser das Atelier Kaiser Shen gemeinsam mit Kilian Juraschitz. Mit seiner Expertise im ökologischen und kreislaufgerechten Bauen prägt er künftig die Ausrichtung von Atelier Kaiser Shen: regenerative Materialien, Bestandserhalt und Wiederverwendung von Baustoffen stehen dabei im Zentrum.
Prof. Florian Kaiser, freier Architekt BDA (geboren 1987 in Biberach a. d. Riß), studierte Architektur an der Universität Stuttgart und schloss dort 2012 das Diplom mit mehreren Auszeichnungen ab. Während des Studiums Mitarbeit in verschiedenen Büros in Stuttgart, London und Peking. Nach dem Diplom arbeitete er bei Herzog & de Meuron in Basel. 2017 gründete er zusammen mit Guobin Shen das Architekturbüro „Atelier Kaiser Shen“, das er seit September 2025 gemeinsam mit Kilian Juraschitz führt. Parallel zur Tätigkeit im Büro ist Kaiser in Lehre und Forschung aktiv. Von 2016 bis 2020 unterrichtete er am Institut für Baukonstruktion 3, Prof. Jens Ludloff, an der Universität Stuttgart. 2024 erfolgte die Berufung auf die Tenure-Track Professur „Kreislaufgerechter Holzbau“ am Karlsruher Institut für Technologie (KIT).
Guobin Shen, freier Architekt BDA (* 1984 in Zhejiang China; † 2024 in Stuttgart), studierte Architektur an der Universität Stuttgart und schloss dort 2012 das Diplom mit mehreren Auszeichnungen ab. Mitarbeit bei verschiedenen Büros in Stuttgart, Basel und Shanghai, unter anderem bei Herzog & de Meuron und Projektleitung bei kreuger wilkins architekten. 2014–2016 Lehrtätigkeit im Städtebau-Institut Prof. Helmut Bott / Prof. Franz Pesch. 2016—2021 Lehrtätigkeit am Institut für Raumkonzeptionen und Grundlagen des Entwerfens Prof. Markus Allmann an der Universität Stuttgart. Er gründete 2017 gemeinsam mit Florian Kaiser das Architekturbüro „Atelier Kaiser Shen“. Guobin Shen ist nach einem tragischen Kletterunfall am 28. Mai 2024 mit nur 40 Jahren verstorben.
// Nachruf
Kilian Juraschitz, M.Sc. Architekt (geboren 1991 in Oberstdorf), studierte Architektur an der Universität Stuttgart, sowie an der Universidade do Porto und schloss sein Studium 2019 mit dem Master ab. Während des Studiums arbeitete er in Oslo bei Eriksen Skajaa Arkitekter. Die Zusammenarbeit mit Atelier Kaiser Shen begann im Gründungsjahr 2017. Seitdem leitete er mehrere Projekte, darunter das Strohballenhaus Hoinka, die Sanierung der Mehrzweckhalle Ingerkingen und das IBA’27 Projekt Leben in der Vorstadt Schorndorf. Seit 2022 Assoziierter im Atelier. Seit September 2025 leitet er gemeinsam mit Florian Kaiser das Atelier Kaiser Shen.
Johannes Schreiner, M.Sc. Architekt (geboren 1985 in Offenbach a.M.), absolvierte nach dem Abitur zunächst eine Ausbildung zum Veranstaltungskaufmann IHK bei Art Life (individueller Messe- und Veranstaltungsbau). Anschließend Architekturstudium an der TU Darmstadt, das er 2015 mit dem Master abschloss. Während des Studiums Mitarbeit u.a. bei Morger Dettli Architekten in Basel. Von 2015 bis 2023 Mitarbeit bei Lederer Ragnardottir Oei in Stuttgart als Projektleiter und Bauleiter. Seit 2023 Mitarbeit als Projektleiter und seit 2024 Assoziierter im Atelier Kaiser Shen.
Matthias Stauch, M.Sc. Architekt (geboren 1990 in Darmstadt), studierte Architektur an der Universität Stuttgart und schloss dort 2019 den Master mit mehreren Auszeichnungen ab. Während des Studiums Mitarbeit unter anderem bei Foster + Partners in London sowie bei Herzog & de Meuron in Basel. Seit 2018 Zusammenarbeit mit Atelier Kaiser Shen. Matthias Stauch ist als Projektleiter tätig und seit 2022 Assoziierter von Atelier Kaiser Shen.
Team:
Lili Espák
Sophia Güldenpfennig
Silvia Barbosa Kaiser
Patricia Müller
Céline Muller
Paul-Christian
WagnerJakob Wein
Preise/Auszeichnungen:
| 2025 | Deutscher Nachhaltigkeitspreis Architektur 2025 (DGNB und die Stiftung Deutscher Nachhaltigkeitspreis): Mehrzweckhalle Ingerkingen, Sieger |
| 2025 | Bundespreis Umwelt & Bauen 2025 (Bundesumweltministerium BMUV): Mehrzweckhalle Ingerkingen, Finalist |
| 2025 | Deutscher Architekturpreis 2025 (Bundesministerium für Wohnen, Stadtentwicklung und Bauwesen und die Bundesarchitektenkammer e. V.): Mehrzweckhalle Ingerkingen, Auszeichnung |
| 2025 | DAM Preis 2025 für Architektur in Deutschland, Nominierung: Mehrzweckhalle Ingerkingen |
| 2025 | Wettbewerb. Einfach Kauen, Auslober: Smow + USM Haller, 2. Preis |
| 2025 | Wettbewerb Neubau Feuerwehrgerätehaus in Neuenkirchen: 3. Preis |
| 2024 | Häuser-Award 2024 (Bundesstiftung Baukultur): Haus Hoinka, Sonderpreis |
| 2024 | DAM Preis 2024 für Architektur in Deutschland, Nominierung: Haus Hoinka |
| 2023 | Häuser des Jahres 2023 (Deutsches Architekturmuseum und Callwey), Haus Hoinka, 1. Preis |
| 2023 | AR Emerging award (Architectural Review, London), shortlisted: Haus Hoinka |
| 2023 | Wettbewerb Nachverdichtung in Holzbau am Stöckach, Stuttgart, 2. Preis |
| 2023 | Wettbewerb Wohnbebauung Felllbach, 2. Preis |
| 2022 | Wettbewerb Leben in der Vorstadt Schorndorf: 1. Preis |
| 2022 | Wettbewerb Wohnareal Betonwerk Wolf Baienfurt: 1. Preis |
| 2022 | Wettbewerb Schulzentrum Stadt Müllheim: 2. Preis |
| 2021 | Max40 – BDA-Architekturpreis für junge Architektinnen und Architekten, Anerkennung |
| 2020 | BDA Hugo-Häring-Auszeichnung: Mikrohofhaus |
| 2020 | Deutscher Städtebaupreis, Nominierung: Mikrohofhaus |
| 2020 | Sanierung und Erweiterung Mehrzweckhalle Ingerkingen: 1. Rang |
| 2020 | Staatspreis Baukultur Baden-Württemberg, Anerkennung: Mikrohofhaus |
| 2020 | DAM Preis für Architektur in Deutschland, Nominierung: Mikrohofhaus |
| 2019 | Wettbewerb EnBW-Areal. Ein gutes Stück Stuttgart. Der neue Stöckach: 2. Preis |
| 2019 | Beispielhaftes Bauen Landkreis Ludwigsburg 2013-2019: Mikrohofhaus |
| 2019 | Wettbewerb Kindertagesstätte Sonnenäcker in Weilheim: 2. Preis |
| 2018 | Auszeichnung: Architizer A+ Awards: Mikrohofhaus: Shortlist |
| 2017 | Wettbewerb Europan 14: Wohnterrassen am Schillereck: 1. Preis |
| 2017 | Wettbewerb Raumpioniere: Wohnen auf kleinstem Raum, Mikrohofhaus: 1. Preis |
Publikationen:
| 2026 | Florian Kaiser im Gespräch mit Anja Koller: “Unsere Arbeit ist nur eine Momentaufnahme in der Geschichte eines Gebäudes” in competitionline.com, 13.02.2026 |
| 2026 | Kaiser, Florian: „Wer Neues entdecken will, muss mutige Wege gehen“. In: DAB Deutsches Architektenblatt Online, 13.02.2026. URL: https://www.dabonline.de/nachwuchs/wer-neues-entdecken-will-muss-mutige-wege-gehen |
| 2026 | Jacob-Freitag, Susanne: Holzbau rettete Bestandsbau (Mehrzweckhalle Ingerkingen). bauen mit Holz (bmH) 1/2026, S. 14-19. Rudolf Müller Medien GmbH & Co. KG, Köln 2026 |
| 2026 | Herrmann, Eva Maria: Von der Strategie zum Raum. Reparatur als Entwurfshaltung (Mehrzweckhalle Ingerkingen). DAB Deutsches Architektenblatt Q1/2026, S. 25-26. Vogel Corporate Solutions GmbH, Berlin |
| 2025 | Kaiser, Florian: Potenziale im kreislaufgerechten Holzbau. Deutsche Bauzeitschrift (DBZ) 06/2025, S.22-23. Bauverlag BV GmbH, Gütersloh |
| 2025 | Kaiser, Florian; Schreiner, Johannes; Brugger, Karsten: Vom Wald zum Haus. Deutsche Bauzeitschrift (DBZ) 06/2025, S.52-55. Bauverlag BV GmbH, Gütersloh |
| 2025 | Mehrzweckhalle. Sanierung und Erweiterung in Ingerkingen. AIT 5.2025, S.118-121. Verlagsanstalt Alexander Koch GmbH, Leinfelden-Echterdingen |
| 2025 | Teschner, Heide: Mehrzweckhalle Ingerkingen — Von der Ehrlichkeit der Konstruktion. Deutsche Bauzeitschrift (DBZ) 05/2025, S.24-31. Bauverlag BV GmbH, Gütersloh |
| 2025 | Engel, Adrian: Mehr Holz, mehr Zweck (Mehrzweckhalle Ingerkingen). Holzmagazin 04/2025, S.20-25. Fora Strategy & Communications GmbH, Wien |
| 2025 | Kölschbach, Helke: Hallenwandel in Holz (Mehzweckhalle Ingerkingen). Baumeister 03.2025, S. 46-55. Georg GmbH & Co. KG, München |
| 2025 | Golombek, Nicole: Halle mit Haltung (Mehzweckhalle Ingerkingen). Stuttgarter Zeitung vom 19.03.2025, S. 16. Stuttgarter Zeitung Verlagsgesellschaft |
| 2024 | Gunßer, Christoph: Zurückhaltung und Präzision: Wie ein schwäbisch-chinesisches Tüftler-Duo seine Qualitäten im nachhaltigen Bauen ausspielt. DAB Deutsches Architektenblatt 03/2024, S. 18-21. Handelsblatt Media Group, Düsseldorf |
| 2024 | Golombek, Nicole: Nachwachsende Häuser bauen. Florian Kaiser und Guobin Shen erhielten Preise für ein Tiny House und ein Haus aus Holz und Stroh. Stuttgarter Zeitung vom 02.01.2024. Stuttgarter Zeitung Verlagsgesellschaft |
| 2023 | Nathaniel, Krish: Atelier Kaiser Shen. A straw bale house in a German village demonstrates this Stuttgart-based practice‘s theory of incremental domesticity. The Architecutral Review 11/2023, S. 54-57. Ascential, Metropolis International, EMAP Construct, London (UK) |
| 2023 | Mazzoni, Ira: Strohballenhaus (Haus Hoinka). Baumeister 07.2023, S. 20-31. Georg GmbH & Co. KG, München |
| 2023 | Matzig, Gerhard: Hier wohnt man im Stroh. Süddeutsche Zeitung vom 13.10.2023. Südwestdeutsche Medien Holding |
| 2023 | Gunßer, Christoph: Doppelwohnhaus in Pfaffenhofen (Haus Hoinka). db deutsche bauzeitung 10.2023, S. 36-42. konradin Medien GmbH, Leinfelden-Echterdingen |
| 2023 | Kearney, Philip: Ein Doppelhaus aus Stroh und Lehm (Haus Hoinka). Stuttgarter Zeitung vom 18.03.2023. Stuttgarter Zeitung Verlagsgesellschaft |
| 2023 | Doppelhaus aus Baustroh und Lehmputz in Pfaffenhofen. AIT 7/8.2023, S.128-131. Verlagsanstalt Alexander Koch GmbH, Leinfelden-Echterdingen |
| 2023 | Heilmeyer, Florian: Wohnen im Strohballenhaus. Atelier Kaiser Shen in Pfaffenhofen. BauNetz.de 10.03.2023 |
| 2022 | Kaiser, Florian; Shen, Guobin: Unfertige Häuser 未完的建築, Juni 2022, 128 Seiten Verlag: Edition Axel Menges, Stuttgart, ISBN: 978-3-86905-031-7 |
| 2022 | Heißenbüttel, Dietrich: Das Strohballenhaus (Baustellenbericht Haus Hoinka). TAZ vom 17.09.2022. die tageszeitung Verlagsgenossenschaft eG |
| 2021 | Weißmüller, Laura: Chinesische Architektur ist in Deutschland unterschätzt. Wie sehr, kann man an Guobin Shen sehen, der in Stuttgart für Überraschungen sorgt. Süddeutsche Zeitung vom 10.08.2021. Südwestdeutsche Medien Holding |
| 2021 | Liesner, Maximilian: Unfertige Häuser (Bürovorstellung Atelier Kaiser Shen). Die Architekt 3/2021, S.84-87. Res Publica Verlags GmbH, Berlin |
| 2019 | Bampi, Zeno jr.: Wohnen, wo es weh tut. Baumeister 01.2019, S.30-35. Georg GmbH & Co. KG, München |
| 2018 | Sayah, Amber: Architekturstadt Stuttgart – Wegweisende Bauten, aktuelle Debatten: Mikrohofhaus, Belser S. 84-87; ISBN-13: 978-3763028030 |
| 2018 | Kraft, Benedikt: Mikrohofhaus. Deutsche Bauzeitschrift (DBZ) 7/8 2018, S.6, Bauverlag BV GmbH, Gütersloh |
| 2018 | Hortus Conclusus in Ludwigsburg. Minihaus auf einer Verkehrsinsel von Atelier Kaiser Shen. Baunetz.de 23.04.2018 |
| 2018 | Kaiser, Felix: Stille im Verkehr. db deutsche bauzeitung 06/2018. konradin Medien GmbH, Leinfelden-Echterdingen |
| 2018 | Flagner, Beatrix: Die produktiven Städte: Wohnterrassen. Bauwelt 1.2018, S. 19, Bauverlag BV GmbH, Berlin |
Ausstellungen:
| 2022 | Unfertige Häuser. 未完的建築, Die Welt von morgen – Überlegungen von Florian Kaiser und Guobin Shen, Architekturgalerie am Weißenhof, Stuttgart (29.06.2022 – 03.10.2022) |
| 2021 | BDA-Wechselraum, Stuttgart: max40 – Junge Architekten |
| 2020 | Deutsches Architekturmuseum (DAM), Frankfurt: max40 – Junge Architekten |
Vorträge:
| 2026 | Antrittsvorlesung Florian Kaiser (KIT, Karlsruher Institut für Technologie), 28.01.2026 |
| 2025 | Architektur Praxis 2025, Kammergruppe Rems-Murr, 17.10.2025: „ReThink Bau, Kreislaufgerechtes Bauen“ |
| 2025 | Architects, not Architecture. Theaterhaus Stuttgart, 24.09.2025: Florian Kaiser, Atelier Kaiser Shen |
| 2025 | University of Waterloo, Faculty of Engineering, 17.07.2025: „Pragmatic timber extension of a multi-purpose hall“ |
| 2025 | Süddeutscher Holzbau Kongress – SHK 2025 (Forum Holzbau), Fellbach 03.07.2025: „Bauen mit kreislaufgerechten Materialien – Stroh, Lehm, Holz“ |
| 2025 | Auf Holz bauen, Online-Seminar (AKBW/ifbau) 30.06.2025: „Mehrzweckhalle Ingerkingen – neues Gewand für den Bestand“ |
| 2025 | Symposium Bauen mit Stroh: Potenziale der Skalierbarkeit (KIT. Professur Kreislaufgerechter Holzbau, Prof. Florian Kaiser), 27.06.2025: „Bauen mit Stroh: Potenziale und Herausforderungen“ |
| 2025 | Materialwende, Ringvorlesung (TU München / TU Berlin / KIT Karlsruhe), 14.01.25: „Zukünftige Baumaterialien und deren Konstruktionsprinzipien.“ |
| 2024 | IBA’27 und AKBW, Stuttgart, 23.10.2024: Vorstellung von zwei IBA’27-Projekten durch Florian Nagler und Florian Kaiser |
| 2024 | Summer Academy of Sustainability SAS24, BHT Berlin, 06.09.2024: „circularity in wood construction“ |
| 2024 | BDA-Wechselraum, Stuttgart 06.05.2024: „Das Fenster im Raum ohne Eigenschaften“ |
| 2024 | Bautrieb Berlin (Hochschule für Technik Berlin), 12.04.2024: Werkvortrag Atelier Kaiser Shen |
| 2024 | JUNG Elbgespräche Hamburg, 11.04.2024: „Häuser mit Zukunft“ (Haus Hoinka) |
| 2024 | JUNG Talks Podcast, 15.03.2024: „Unfertige Häuser“ – JUNG im Gespräch mit Florian Kaiser & Guobin Shen |
| 2024 | Heilbronner Architekturgespräche, 28.02.2024: Werkvortrag Atelier Kaiser Shen |
| 2023 | Karlsruher Architekturvorträge, KIT-Fakultät für Architektur, 22.11.2023: Werkvortrag mit dem Titel: „Bauen mit einfachen Materialien – Stroh, Lehm, Holz“ |
| 2023 | Wechselzeit im BDA-Wechselraum Stuttgart, 16.11.2023: Podiumsdiskussion mit Buero BB |
| 2023 | db + IBA‘27 Symposium heute! bauen – besser, anders, weniger, Hospitalhof Stuttgart 13.07.2022: Werkvortrag Atelier Kaiser Shen |
| 2023 | JUNG Architekturgespräche 2023, Staatsgalerie Stuttgart 04.05.2023 |
| 2022 | Bauhütte, Hochschule für angewandte Wissenschaften Würzburg 02.11.2022, Werkvortrag Atelier Kaiser Shen |
| 2022 | Fachgespräch „Innovative und nachhaltige Baustoffe“ im Fraktionssitzungssaal B90/Die Grünen, 21.10.2022: „Bauen mit Stroh und Lehm – Haus Hoinka“ |
| 2022 | Atelier-Gespräch #8 / Podiumsdiskussion mit Andreas Hofer in der Architekturgalerie am Weißenhof, 30.09.2022: „Der Raum dazwischen“ |
| 2022 | Strategiedialog Staatsministerium Baden-Württemberg, 29.06.2022: „Bauen mit Stroh und Lehm – Haus Hoinka“ |
| 2022 | HSRM Hochschule RheinMain, Architekturumtrunk, 22.06.2022: „Unfertige Häuser – Überlegungen zum Wohnen“ |
| 2022 | IBA’27 WS#3 Kreislauf und Material, Esslingen 19.01.2022, Inputvortrag: „Einfache Materialien“ |
| 2021 | Architekturgalerie München, 06.05.2021: Werkbericht Mikrohofhaus (online) |
| 2021 | BDA-Wechselraum, Stuttgart 04.10.2021: Vortrag/Podiumsdiskussion „Junge Architekt*innen fördern!“ |
| 2021 | Expertendialog Schmidschen Höfe 24.11.2021, Inputvortrag: „Durchmischen, Vernetzen & Flexibel Wohnen“ |
| 2019 | IBA-Think Tank #2 „Neue Wohnformen“, Backnang 25.10.2019 |
| 2019 | HfWU-Hochschulforum IBA‘27, Geislingen 06.11.2019: Werkvortrag Atelier Kaiser Shen |
| 2019 | Pontifícia Universidade Católica, Rio de Janeiro 26.03.2019: Micro Courtyardhouse |
| 2018 | BDA Architekturforum Thüringen 27.11.2018: „Verdichtung und Aufwertung“ |
| 2018 | Schwarzbrotreihe, Universität Stuttgart 31.10.2018: Mikrohofhaus |
| 2018 | Architekturtag Fa. Roma 14.06.2018: Werkvortrag Atelier Kaiser Shen |
Offene Stelle Projektleitung (m/w/d):
Zum nächstmöglichen Zeitpunkt suchen wir Architekt*innen mit mindestens 5 bis 7 Jahren Berufserfahrung für die Projektleitung im Bereich des öffentlichen Bauens. Sicherheit in den Leistungsphasen 5-8, ein hoher gestalterischer Anspruch, eigenständige Arbeitsweise, sowie die Begeisterung für Holzbau werden vorausgesetzt. Wir freuen uns über aussagekräftige Bewerbungen mit CV, Arbeitsproben und Eintrittstermin. Bitte per E-Mail (max. 10 MB): jobs@atelierkaisershen.com
Offene Stelle Architekt*in (m/w/d):
Zum nächstmöglichen Zeitpunkt suchen wir entwurfsstarke Architekt*innen mit mindestens 3 Jahren Berufserfahrung und Sicherheit in den Leistungsphasen 5 – 8 für Projekte im Bereich des öffentlichen Bauens. Ein hoher gestalterischer Anspruch, eigenständige Arbeitsweise, sowie die Begeisterung für Holzbau werden vorausgesetzt. Wir freuen uns über aussagekräftige Bewerbungen mit CV, Arbeitsproben und Eintrittstermin. Bitte per E-Mail (max. 10 MB): jobs@atelierkaisershen.com
Offene Stelle Praktikum (m/w/d):
Zum nächstmöglichen Zeitpunkt suchen wir motivierte Praktikant*innen für eine Praktikumsdauer von 6 bis 12 Monaten. Wir freuen uns über aussagekräftige Bewerbungen mit CV, Arbeitsproben und Eintrittstermin. Bitte geben Sie im Anschreiben an, ob es sich um Vorpraktikum, ein Pflichtpraktikum oder ein freiweilliges Praktikum handelt. Bitte per E-Mail (max. 10 MB): jobs@atelierkaisershen.com
Inhaber: T.T. Prof. Florian Kaiser, Dipl.-Ing. freier Architekt BDA, AKBW, 126009
Wir legen größten Wert auf den Schutz Ihrer Daten und die Wahrung Ihrer Privatsphäre. Nachstehend informieren wir Sie deshalb über die Erhebung und Verwendung persönlicher Daten bei Nutzung unserer Webseite.
Allgemeiner Hinweis und Pflichtinformationen
Benennung der verantwortlichen Stelle.
Die verantwortliche Stelle für die Datenverarbeitung auf dieser Website ist:
Atelier Kaiser Shen
Alexanderstraße 11,
70184 Stuttgart
Tel.: +49 711 66453020,
Mail: info@atelierkaisershen.com
Die verantwortliche Stelle entscheidet allein oder gemeinsam mit anderen über die Zwecke und Mittel der Verarbeitung von personenbezogenen Daten (z.B. Namen, Kontaktdaten o. Ä.).
Nutzer erhalten mit dieser Datenschutzerklärung Information über die Art, den Umfang und Zweck der Erhebung und Verwendung ihrer Daten durch den verantwortlichen Anbieter.
Erhebung und Speicherung personenbezogener Daten sowie Art und Zweck von deren Verwendung
Beim Aufrufen unserer Website werden durch den auf Ihrem Endgerät zum Einsatz kommenden Browser automatisch Informationen an den Server unserer Website gesendet. Diese Informationen werden temporär in einem sog. Logfile gespeichert. Folgende Informationen werden dabei ohne Ihr Zutun erfasst und bis zur automatisierten Löschung gespeichert:
Die genannten Daten werden durch uns zu folgenden Zwecken verarbeitet:
Die Rechtsgrundlage für die Datenverarbeitung ist Art. 6 Abs. 1 S. 1 lit. f DSGVO. Unser berechtigtes Interesse folgt aus oben aufgelisteten Zwecken zur Datenerhebung. In keinem Fall verwenden wir die erhobenen Daten zu dem Zweck, Rückschlüsse auf Ihre Person zu ziehen.